4 320 000 Р 55 970 $ или 47 100

Информация о квартире

33 м2
Площадь
16 м2
Жилая
5 м2
Кухня
студия
Комнат
8
Этаж
25
Этажность
Развернуть
Агент
+7 (967) 517-36-14
Начать чат с агентом

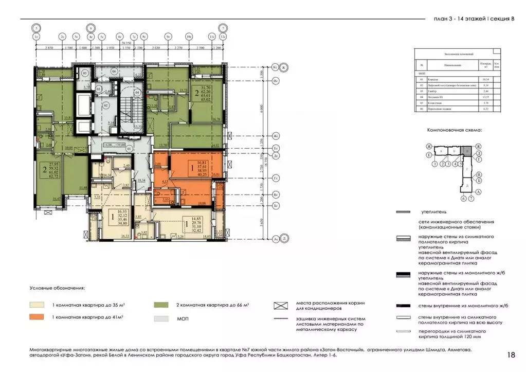
Студия Башкортостан, Уфа Затон-Восточный жилрайон, Новаленд мкр, ...

Студия в ЖК Новаленд— компактно, стильно, продумано Эта квартира — идеальное решение для тех, кто хочет максимум комфорта на продуманной площади. Современная планировка позволяет создать уютное пространство для жизни, работы и отдыха. Почему это предложение стоит вашего внимания: • Продуманная планировка: просторная кухня-гостиная и изолированная спальня делают формат удобным и функциональным. • Инвестиционная привлекательность: рядом Центр фехтования и спортивный комплекс имени Римы Баталовой с бассейнами и реабилитационным центром — сильный будущий магнит для арендаторов. • Высокая доходность: квартира идеально подходит как для долгосрочной аренды, так и для посуточного формата. Потенциальная доходность — 57 годовых. • Район активно развивается: новые дома, магазины, зоны отдыха — стоимость недвижимости стабильно растёт. • Надёжный застройщик — соблюдение сроков и высокое качество строительства. • Совсем скоро сдача дома — ключи уже на подходе • Для семей — рядом школа, детские сады и безопасные дворы, из которых видно, как ребёнок идёт домой. Всего 8 минут до центра города на машине — удобная локация как для жизни, так и для аренды. Классный вариант как первая квартира или как инвестиционный актив с растущей доходностью.

Читать полностью
    Позвонить Написать
    4 320 000 Р55 970 $ или 47 100
    Агент
    +7 (967) 517-36-14
    Начать чат с агентом
    Похожие предложения в Уфе
    Студия Башкортостан, Уфа Затон-Восточный жилрайон, Паруса жилой ... - Фото 1
    Студия Башкортостан, Уфа Затон-Восточный жилрайон, Паруса жилой ... - Фото 2
    студия, общая площадь 33м², жилая 16м², кухня 5м²

    Продаётся студия в строящемся доме (литер 4), срок сдачи: IV-кв. 2026, общей площадью 33.46 кв.м., на 9 этаже. Новый жилой комплекс от застройщика СЗ ИСК г. Уфыасположен по адресу Уфа, проспект Дружбы Народов.
    • 33 м²
    • студия-ком
    • 9/21 эт.
    4 359 838 Р
    Агент
    +7 (977) Показать номер
    Посмотреть контакты
    Студия Башкортостан, Уфа Затон-Восточный жилрайон, Паруса жилой ... - Фото 1
    Студия Башкортостан, Уфа Затон-Восточный жилрайон, Паруса жилой ... - Фото 2
    студия, общая площадь 33м², жилая 16м², кухня 5м²

    Продаётся студия в строящемся доме (литер 4), срок сдачи: IV-кв. 2026, общей площадью 33.46 кв.м., на 7 этаже. Новый жилой комплекс от застройщика СЗ ИСК г. Уфыасположен по адресу Уфа, проспект Дружбы Народов.
    • 33 м²
    • студия-ком
    • 7/21 эт.
    4 359 838 Р
    Агент
    +7 (977) Показать номер
    Посмотреть контакты
    Студия Башкортостан, Уфа Затон-Восточный жилрайон, Паруса жилой ... - Фото 1
    Студия Башкортостан, Уфа Затон-Восточный жилрайон, Паруса жилой ... - Фото 2
    студия, общая площадь 33м², жилая 16м², кухня 5м²

    Продаётся студия в строящемся доме (литер 4), срок сдачи: IV-кв. 2026, общей площадью 33.46 кв.м., на 6 этаже. Новый жилой комплекс от застройщика СЗ ИСК г. Уфыасположен по адресу Уфа, проспект Дружбы Народов.
    • 33 м²
    • студия-ком
    • 6/21 эт.
    4 359 838 Р
    Агент
    +7 (977) Показать номер
    Посмотреть контакты
    Студия Башкортостан, Уфа Затон-Восточный жилрайон, Паруса жилой ... - Фото 1
    Студия Башкортостан, Уфа Затон-Восточный жилрайон, Паруса жилой ... - Фото 2
    студия, общая площадь 33м², жилая 16м², кухня 5м²

    Продаётся студия в строящемся доме (литер 4), срок сдачи: IV-кв. 2026, общей площадью 33.46 кв.м., на 5 этаже. Новый жилой комплекс от застройщика СЗ ИСК г. Уфыасположен по адресу Уфа, проспект Дружбы Народов.
    • 33 м²
    • студия-ком
    • 5/21 эт.
    4 359 838 Р
    Агент
    +7 (977) Показать номер
    Посмотреть контакты
    Студия Башкортостан, Уфа Затон-Восточный жилрайон, Паруса жилой ... - Фото 1
    Студия Башкортостан, Уфа Затон-Восточный жилрайон, Паруса жилой ... - Фото 2
    студия, общая площадь 33м², жилая 16м², кухня 5м²

    Продаётся студия в строящемся доме (литер 4), срок сдачи: IV-кв. 2026, общей площадью 33.46 кв.м., на 8 этаже. Новый жилой комплекс от застройщика СЗ ИСК г. Уфыасположен по адресу Уфа, проспект Дружбы Народов.
    • 33 м²
    • студия-ком
    • 8/21 эт.
    4 359 838 Р
    Агент
    +7 (977) Показать номер
    Посмотреть контакты

    Не нашли подходящего объявления?

    Оставьте заявку, и наши риэлторы подберут квартиру в новостройке в районе Уфы

    (0)