7 606 080 Р 95 870 $ или 81 840

Информация о квартире

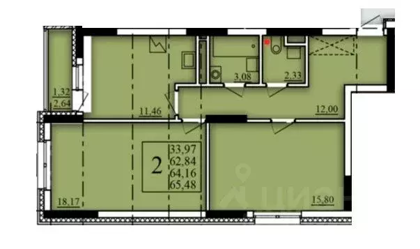
66 м2
Площадь
28 м2
Жилая
19 м2
Кухня
2
Комнаты
1
Этаж
10
Этажность
Развернуть
Агент
+7 (992) 704-70-71
Начать чат с агентом

2-к кв. Башкортостан, Уфа ул. Жуковского, 19А (66.72 м)

Продаётся 2-комнатная квартира в строящемся доме (Дом 3), срок сдачи: IV-кв. 2025, общей площадью 66.72 кв.м., на 1 этаже. О ЖИЛОМ КОМПЛЕКСЕ МАТУРМесторасположение: г.Уфа, Ленинский р-н, мкр-н Затон.Дом полностью из КИРПИЧАДом построен полностью из полнотелого красного кирпича. Толщина стены в 65 см позволяет экономить на отоплении. Зимой в квартире будет тепло, а летом прохладно.Детская игровая площадкаСовременные, безопасные игровые площадки оснащены всем необходимым для детей любых возрастов.Закрытая придомовая территорияДвор Жилого Комплекса будет огорожен, а заезд на автомобиле будет доступен на короткий промежуток времени исключительно для разгрузки и высадки.Современные холлыВсе места общего пользования отделаны в современном стиле в соответствии с дизайн проектом. Подъезды оборудованы местами для колясок и велосипедов, организована доступная среда для людей с ОВЗ, а также присутствует санузел и лапомойка для ваших любимых питомцев.Малое количество квартир на этажеВ жилом комплексе комфорт-класса Матур всего 4-6 квартир на этаже. Меньшее количество соседей по лестничной клетке создает более спокойную обстановку в доме и снижает общий уровень шума. А также, отображает ценности семейного комплекса, в котором жильцы покупают квартиры в первую очередь для жизни.ИнфраструктураЖилой Комплекс Матур расположен в центре Затона в благоустроенном районе. Вокруг в пешей доступности магазины, аптеки, Ozon, WB, Яндекс Маркет.Супермаркеты: Everyday, Пятерочка, Монетка, Байрам.ОбразованиеШкола 4 в 3-х минутах пешком без светофоров.46 лицей через остановку.Детский сад 7 через дорогу.Рядом: центр фехтования, центр спортивной подготовки Римы Баталовой, стадион Водник, центр раннего развития Кораблик .Для прогулок: пляж Водник, парк Волна.Удобная транспортная развязка: до ост. О. Галле 10 минут на авто. Рядом с ЖК Матур остановка им. Пожарского, через которую ходят 12 маршрутных автобусов в разные части города.Рядом улицы: Ахметова, Чкалова, Летчиков, Союзников и проспект Дружбы Народов.ПОЗВОНИТЕ ИЛИ НАПИШИТЕ В ЧАТ ЧТОБЫ ПОЛУЧИТЬ ПЕРСОНАЛЬНУЮ ПОДБОРКУ Семейная ипотека на исходе, успейте пока есть возможность

Читать полностью
    Позвонить Написать
    7 606 080 Р95 870 $ или 81 840
    Агент
    +7 (992) 704-70-71
    Начать чат с агентом
    Похожие предложения в Уфе
    2-к кв. Башкортостан, Уфа ул. Жуковского, 19А (61.28 м) - Фото 1
    2-к кв. Башкортостан, Уфа ул. Жуковского, 19А (61.28 м) - Фото 2
    2-комнатная квартира, общая площадь 61м², жилая 31м², кухня 11м²

    Продаётся 2-комнатная квартира в строящемся доме (Дом 3), срок сдачи: IV-кв. 2025, общей площадью 61.28 кв.м., на 9 этаже. О ЖИЛОМ КОМПЛЕКСЕ МАТУРМесторасположение: г.Уфа, Ленинский р-н, мкр-н Затон.Дом полностью из КИРПИЧАДом построен полностью из полнотелого...
    • 61 м²
    • 2-ком
    • 9/10 эт.
    7 568 080 Р
    Агент
    +7 (992) Показать номер
    Посмотреть контакты
    2-к кв. Башкортостан, Уфа ул. Жуковского, 19А (60.05 м) - Фото 1
    2-к кв. Башкортостан, Уфа ул. Жуковского, 19А (60.05 м) - Фото 2
    2-комнатная квартира, общая площадь 60м², жилая 29м², кухня 8м²

    Продаётся 2-комнатная квартира в строящемся доме (Дом 3), срок сдачи: IV-кв. 2025, общей площадью 60.05 кв.м., на 10 этаже. О ЖИЛОМ КОМПЛЕКСЕ МАТУРМесторасположение: г.Уфа, Ленинский р-н, мкр-н Затон.Дом полностью из КИРПИЧАДом построен полностью из...
    • 60 м²
    • 2-ком
    • 10/10 эт.
    7 686 400 Р
    Агент
    +7 (992) Показать номер
    Посмотреть контакты
    2-к кв. Башкортостан, Уфа ул. Жуковского, 19А (61.28 м) - Фото 1
    2-к кв. Башкортостан, Уфа ул. Жуковского, 19А (61.28 м) - Фото 2
    2-комнатная квартира, общая площадь 61м², жилая 31м², кухня 11м²

    Продаётся 2-комнатная квартира в строящемся доме (Дом 3), срок сдачи: IV-кв. 2025, общей площадью 61.28 кв.м., на 10 этаже. О ЖИЛОМ КОМПЛЕКСЕ МАТУРМесторасположение: г.Уфа, Ленинский р-н, мкр-н Затон.Дом полностью из КИРПИЧАДом построен полностью из...
    • 61 м²
    • 2-ком
    • 10/10 эт.
    7 568 080 Р
    Агент
    +7 (992) Показать номер
    Посмотреть контакты
    2-к кв. Башкортостан, Уфа ул. Жуковского, 19А (61.28 м) - Фото 1
    2-к кв. Башкортостан, Уфа ул. Жуковского, 19А (61.28 м) - Фото 2
    2-комнатная квартира, общая площадь 61м², жилая 31м², кухня 11м²

    Продаётся 2-комнатная квартира в строящемся доме (Дом 3), срок сдачи: IV-кв. 2025, общей площадью 61.28 кв.м., на 8 этаже. О ЖИЛОМ КОМПЛЕКСЕ МАТУРМесторасположение: г.Уфа, Ленинский р-н, мкр-н Затон.Дом полностью из КИРПИЧАДом построен полностью из полнотелого...
    • 61 м²
    • 2-ком
    • 8/10 эт.
    7 568 080 Р
    Агент
    +7 (992) Показать номер
    Посмотреть контакты
    2-к кв. Башкортостан, Уфа ул. Жуковского, 19А (61.28 м) - Фото 1
    2-к кв. Башкортостан, Уфа ул. Жуковского, 19А (61.28 м) - Фото 2
    2-комнатная квартира, общая площадь 61м², жилая 31м², кухня 11м²

    Продаётся 2-комнатная квартира в строящемся доме (Дом 3), срок сдачи: IV-кв. 2025, общей площадью 61.28 кв.м., на 7 этаже. О ЖИЛОМ КОМПЛЕКСЕ МАТУРМесторасположение: г.Уфа, Ленинский р-н, мкр-н Затон.Дом полностью из КИРПИЧАДом построен полностью из полнотелого...
    • 61 м²
    • 2-ком
    • 7/10 эт.
    7 568 080 Р
    Агент
    +7 (992) Показать номер
    Посмотреть контакты

    Не нашли подходящего объявления?

    Оставьте заявку, и наши риэлторы подберут квартиру в новостройке в районе Уфы

    (0)