Реализация объекта недвижимости приостановлена

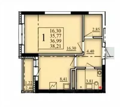
Информация о квартире

35.0 м2
Площадь
1
Комната
18
Этаж
25
Этажность
Развернуть

1-к кв. Башкортостан, Уфа Затон-Восточный жилрайон, Паруса жилой ...

Продаётся 1-комнатная квартира в строящемся доме (Литер 6 (квартал 7)), срок сдачи: IV-кв. 2026, общей площадью 35.95 кв.м., на 18 этаже. Современный жилой комплекс Паруса - Развивающийся квартал на берегу реки с роскошными видами - Масштабный проект с качественной социальной инфраструктурой - Располагается в 5 минутах от Проспекта Октября - Городская набережная с понтонным пляжем - Закрытая территория, двор без машин, паркинг - Разнообразные и функциональные планировки - Благоустроенные зоны отдыха, тропы здоровья, роллер-трассы

Читать полностью

    Реализация объекта недвижимости приостановлена

    Не нашли подходящего объявления?

    Оставьте заявку, и наши риэлторы подберут квартиру в новостройке в районе Уфы

    (0)