8 669 900 Р 106 600 $ или 92 040

Информация о квартире

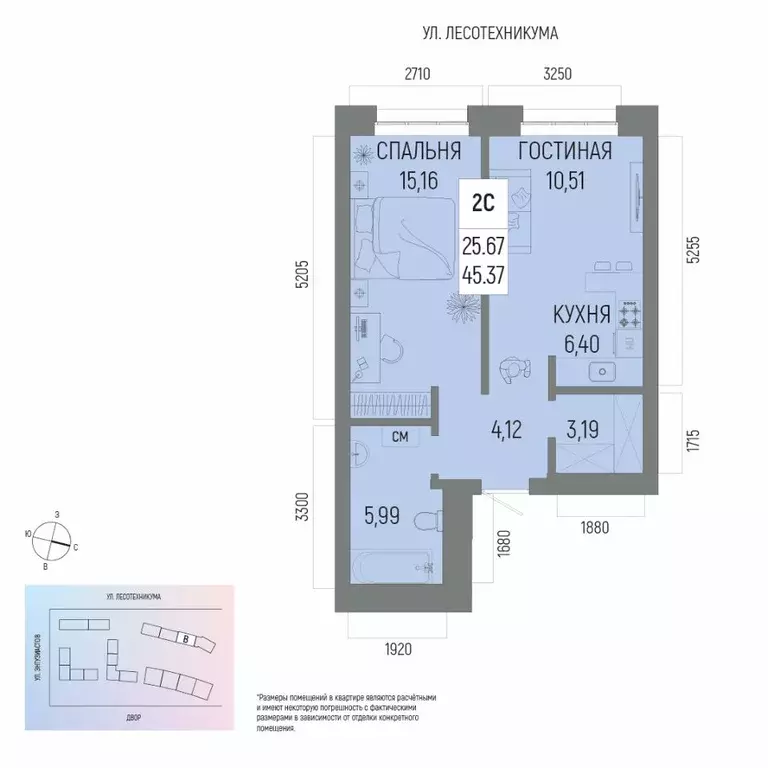
46 м2
Площадь
2
Комнаты
15
Этаж
22
Этажность
Развернуть
Агент
+7 (938) 543-93-44
Начать чат с агентом

2-к кв. Башкортостан, Уфа Глумилино-1 мкр, Новатор жилой комплекс ...

2-к квартира в Новатор; По адресу: ул. Энтузиастов/Рудольфа Нуреева/Мусы Гареева, стр. 5 Литер 5, Секция 3. 15-й этаж 22- этажного жилого дома Общая площадь 46.55кв.м.; Жилая площадь 0.00 кв. м. от ГК Первый Трест . Срок окончания строительства: 1 квартал 2026 года. Просим представителей агентств недвижимости не беспокоить. Квартира с качественной предчистовой отделкой, позволяющей реализовать любые дизайнерские решения: - Стены: выровнены и оштукатурены, готовые под финишную отделку по вашему вкусу. - Пол: выполнена стяжка, обеспечивающая ровное основание для любых напольных покрытий. - Электрика: разводка выполнена до щитка, что обеспечивает безопасность и удобство при дальнейшем монтаже. - Отопление: установлены радиаторы и выполнена полная разводка системы отопления. - Водоснабжение: выведены коммуникации под воду, готовые для установки сантехнического оборудования. Хотите узнать подробнее о планировке или подобрать по вашим параметрам? Свяжитесь с нами Жилой комплекс Новатор - современный комфорт-класс, где каждый элемент продуман для вашего удобства и гармоничной жизни. Преимущества : - Современный комфорт-класс: продуманные планировки и конфигурации комнат позволяют легко обустроить пространство по вашему вкусу, обеспечивая максимальный комфорт проживания. - Централизованная система кондиционирования: чистый и свежий воздух в каждой квартире создаст идеальный микроклимат для здоровья и комфорта. - Удобства на первом этаже: колясочные и велосипедные помещения облегчат повседневные задачи и освободят дополнительное место в квартире. - Безопасность на высшем уровне: закрытый двор и система видеонаблюдения по всему периметру, в холлах и лифтах, обеспечат спокойствие вам и вашей семье. - Подземный паркинг: с возможностью спуститься к автомобилю на лифте прямо из квартиры. - Транспортная доступность: Одним из преимуществ жилого комплекса Новатор является высокая транспортная.В непосредственной близости от ЖК находятся остановки общественного транспорта и две главные магистрали города: пр. Салавата Юлаева и пр.Октября. Инфраструктура: - Активный образ жизни: уникальные детские площадки и зона CrossFit для занятий спортом на свежем воздухе. - Шопинг и развлечения: рядом гипермаркеты, кинотеатр Киномакс, ТРЦ Планета и ипподром Акбузат . - Социальные объекты: в шаговой доступности детские сады, школы, аптеки и офисы ведущих банков РФ. - Отдых и досуг: множество кафе, ресторанов и салонов красоты для приятного времяпровождения. Мы предлагаем различные варианты покупки квартир в нашем жилом комплексе: - Оплата наличными - Рассрочка до 24 мес. - Семейная ипотека от 3,5 - IT Ипотека - Ипотека для всех от 13,9 - Ипотека от 20 ведущих банков страны: наши специалисты помогут подобрать оптимальную программу кредитования. - Использование материнского капитала - Программа Trade-in: Бесплатно поможем продать вашу старую квартиру и подобрать новую в нашем комплексе

Читать полностью
    Позвонить Написать
    8 669 900 Р106 600 $ или 92 040
    Агент
    +7 (938) 543-93-44
    Начать чат с агентом
    Похожие предложения в Уфе
    2-к кв. Башкортостан, Уфа Глумилино-1 мкр, Новатор жилой комплекс ... - Фото 1
    2-к кв. Башкортостан, Уфа Глумилино-1 мкр, Новатор жилой комплекс ... - Фото 2
    2-комнатная квартира, общая площадь 47м²

    2-к квартира в Новатор; По адресу: ул. Энтузиастов/Рудольфа Нуреева/Мусы Гареева, стр. 5 Литер 5, Секция 3. 12-й этаж 22- этажного жилого дома Общая площадь 47.72кв.м.; Жилая площадь 0.00 кв. м. от ГК Первый Трест . Срок окончания строительства: 1 квартал...
    • 47 м²
    • 2-ком
    • 12/22 эт.
    8 782 900 Р
    Агент
    +7 (938) Показать номер
    Посмотреть контакты
    2-к кв. Башкортостан, Уфа Глумилино-1 мкр, Новатор жилой комплекс ... - Фото 1
    2-к кв. Башкортостан, Уфа Глумилино-1 мкр, Новатор жилой комплекс ... - Фото 2
    2-комнатная квартира, общая площадь 47м²

    2-к квартира в Новатор; По адресу: ул. Энтузиастов/Рудольфа Нуреева/Мусы Гареева, стр. 5 Литер 5, Секция 2. 12-й этаж 22- этажного жилого дома Общая площадь 47.55кв.м.; Жилая площадь 0.00 кв. м. от ГК Первый Трест . Срок окончания строительства: 1 квартал...
    • 47 м²
    • 2-ком
    • 12/22 эт.
    8 751 600 Р
    Агент
    +7 (938) Показать номер
    Посмотреть контакты
    2-к кв. Башкортостан, Уфа Глумилино-1 мкр, Новатор жилой комплекс ... - Фото 1
    2-к кв. Башкортостан, Уфа Глумилино-1 мкр, Новатор жилой комплекс ... - Фото 2
    2-комнатная квартира, общая площадь 40м²

    2-к квартира в Новатор; По адресу: ул. Энтузиастов/Рудольфа Нуреева/Мусы Гареева, стр. 5 Литер 5, Секция 3. 21-й этаж 22- этажного жилого дома Общая площадь 40.96кв.м.; Жилая площадь 0.00 кв. м. от ГК Первый Трест . Срок окончания строительства: 1 квартал...
    • 40 м²
    • 2-ком
    • 21/22 эт.
    8 622 100 Р
    Агент
    +7 (938) Показать номер
    Посмотреть контакты
    2-к кв. Башкортостан, Уфа Глумилино-1 мкр, Новатор жилой комплекс ... - Фото 1
    2-к кв. Башкортостан, Уфа Глумилино-1 мкр, Новатор жилой комплекс ... - Фото 2
    2-комнатная квартира, общая площадь 45м²

    2-к квартира в Новатор; По адресу: ул. Энтузиастов/Рудольфа Нуреева/Мусы Гареева, стр. 5 Литер 5, Секция 3. 18-й этаж 22- этажного жилого дома Общая площадь 45.37кв.м.; Жилая площадь 0.00 кв. м. от ГК Первый Трест . Срок окончания строительства: 1 квартал...
    • 45 м²
    • 2-ком
    • 18/22 эт.
    8 627 100 Р
    Агент
    +7 (938) Показать номер
    Посмотреть контакты
    2-к кв. Башкортостан, Уфа Глумилино-1 мкр, Новатор жилой комплекс ... - Фото 1
    2-к кв. Башкортостан, Уфа Глумилино-1 мкр, Новатор жилой комплекс ... - Фото 2
    2-комнатная квартира, общая площадь 46м²

    2-к квартира в Новатор; По адресу: ул. Энтузиастов/Рудольфа Нуреева/Мусы Гареева, стр. 5 Литер 5, Секция 3. 14-й этаж 22- этажного жилого дома Общая площадь 46.55кв.м.; Жилая площадь 0.00 кв. м. от ГК Первый Трест . Срок окончания строительства: 1 квартал...
    • 46 м²
    • 2-ком
    • 14/22 эт.
    8 618 700 Р
    Агент
    +7 (938) Показать номер
    Посмотреть контакты

    Не нашли подходящего объявления?

    Оставьте заявку, и наши риэлторы подберут квартиру в новостройке в районе Уфы

    (0)