Реализация объекта недвижимости приостановлена

Информация о квартире

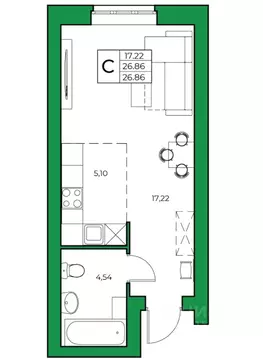
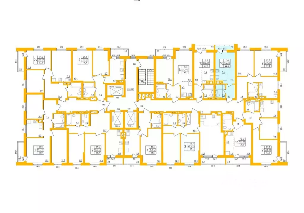
22.0 м2
Площадь
студия
Комнат
23
Этаж
27
Этажность
Развернуть

Студия Башкортостан, Уфа Инорс-4Б мкр, Акварель жилой комплекс (22.2 ...

Продаётся студия в строящемся доме (литер 9), срок сдачи: II-кв. 2027, общей площадью 22.2 кв.м., на 23 этаже. Жилой комплекс Акварель занимает обширную территорию в 25га на живописном изгибе реки Уфа .Квартал располагается в активно развивающемся микрорайоне Инорс и имеет транспортную сеть с выходом на основные магистрали Уфы, благоустроенную среду и развитую инфраструктуру района.Это яркий жизнерадостный квартал для настоящих любителей природы и активной жизни на реке с объемным лесным массивом.Хочется отметить, что проект Акварели предусматривает не только обильную жилую застройку территории, но и уделяет огромное внимание благоустройству и собственной инфраструктуре. Вдохновляясь концепцией город в городе , архитекторы проекта предусмотрели большое количество детских и спортивных площадок, стадион, собственное озеленение, школу, детский сад, торгово-развлекательный центр АкварИн и авторский фитнесс клуб Атлетик на территории квартала. Помимо общих концептуальных решений в оформлении фасадов зданий Акварель может похвастаться и разнообразием планировочных решений квартир. Здесь есть как и небольшие студии, так и полноценные 3-х комнатные квартиры с изолированными спальнями. Инсоляция помещений варьируется от 2-х до 7 часов в день, а вид, простирающийся из окон, на великолепную природу Башкортостана подарит вам поистине удивительные пейзажи в разные времена года. Как и на каждом объекте группы компаний ПСК-6, квартал курирует собственная управляющая компания, отвечающая за своевременную и оперативную работу с запросами населения. В подъездах предусмотрены места для консьержей. Все дома квартала оснащены системой видеонаблюдения и СКУД (система контроля и управления доступом). Представленный комплекс, является правильным решением для тех, кто ищет идеальное соотношение цены и качества. Это настоящий современный комфорт-класс за разумную стоимость. Здесь смогут найти для себя подходящий вариант семейные пары, деловые люди, студенты, молодожены — в комплексе есть планировочные решения на любой вкус.Построено:- 51 производственный объектов- 51 жилых домов, где свое счастье приобрели 22 140 жильцов Представляем жилой комплекс АКВАРЕЛЬ - в шаговой доступности от вашего дома кинотеатр, школы, детский сады, крупный гипермаркет, фитнес клуб для взрослых и детей, детский развлекательный комплекс, а также лесной массив Богатая инфраструктура:- детский сад 262,264 (с бассейном)- лицей 68, лицей 60- спортивная школа 31- центр детского творчества Умелец - поликлиника 4- ТЦ АкварИн (Эльдорадо, Галамаркт, Belwest, Kari, Gloria Jeans, Sinsay, Ташир пицца, Бургер кинг)- гипермаркет Лента- кинотеатр Синема 5- магазин Детский мир

Читать полностью

    Реализация объекта недвижимости приостановлена

    Не нашли подходящего объявления?

    Оставьте заявку, и наши риэлторы подберут квартиру в новостройке в районе Уфы

    (0)