8 470 900 Р 104 700 $ или 90 330

Информация о квартире

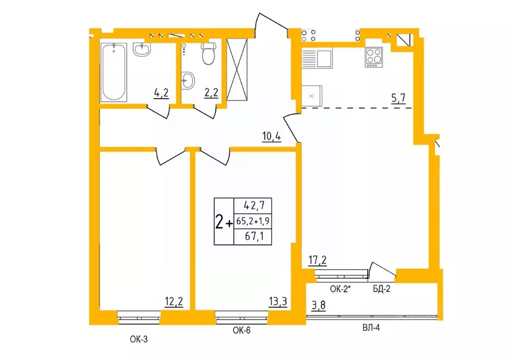
66 м2
Площадь
2
Комнаты
20
Этаж
27
Этажность
Развернуть
Агент
+7 (977) 095-43-45
Начать чат с агентом

2-к кв. Башкортостан, Уфа Инорс-4Б мкр, Акварель жилой комплекс (66.7 ...

Продаётся 2-комнатная квартира в строящемся доме (литер 9), срок сдачи: II-кв. 2027, общей площадью 66.7 кв.м., на 20 этаже. Жилой комплекс Акварель занимает обширную территорию в 25га на живописном изгибе реки Уфа .Квартал располагается в активно развивающемся микрорайоне Инорс и имеет транспортную сеть с выходом на основные магистрали Уфы, благоустроенную среду и развитую инфраструктуру района.Это яркий жизнерадостный квартал для настоящих любителей природы и активной жизни на реке с объемным лесным массивом.Хочется отметить, что проект Акварели предусматривает не только обильную жилую застройку территории, но и уделяет огромное внимание благоустройству и собственной инфраструктуре. Вдохновляясь концепцией город в городе , архитекторы проекта предусмотрели большое количество детских и спортивных площадок, стадион, собственное озеленение, школу, детский сад, торгово-развлекательный центр АкварИн и авторский фитнесс клуб Атлетик на территории квартала. Помимо общих концептуальных решений в оформлении фасадов зданий Акварель может похвастаться и разнообразием планировочных решений квартир. Здесь есть как и небольшие студии, так и полноценные 3-х комнатные квартиры с изолированными спальнями. Инсоляция помещений варьируется от 2-х до 7 часов в день, а вид, простирающийся из окон, на великолепную природу Башкортостана подарит вам поистине удивительные пейзажи в разные времена года. Как и на каждом объекте группы компаний ПСК-6, квартал курирует собственная управляющая компания, отвечающая за своевременную и оперативную работу с запросами населения. В подъездах предусмотрены места для консьержей. Все дома квартала оснащены системой видеонаблюдения и СКУД (система контроля и управления доступом). Представленный комплекс, является правильным решением для тех, кто ищет идеальное соотношение цены и качества. Это настоящий современный комфорт-класс за разумную стоимость. Здесь смогут найти для себя подходящий вариант семейные пары, деловые люди, студенты, молодожены — в комплексе есть планировочные решения на любой вкус.Построено:- 51 производственный объектов- 51 жилых домов, где свое счастье приобрели 22 140 жильцов Представляем жилой комплекс АКВАРЕЛЬ - в шаговой доступности от вашего дома кинотеатр, школы, детский сады, крупный гипермаркет, фитнес клуб для взрослых и детей, детский развлекательный комплекс, а также лесной массив Богатая инфраструктура:- детский сад 262,264 (с бассейном)- лицей 68, лицей 60- спортивная школа 31- центр детского творчества Умелец - поликлиника 4- ТЦ АкварИн (Эльдорадо, Галамаркт, Belwest, Kari, Gloria Jeans, Sinsay, Ташир пицца, Бургер кинг)- гипермаркет Лента- кинотеатр Синема 5- магазин Детский мир

Читать полностью
    Позвонить Написать
    8 470 900 Р104 700 $ или 90 330
    Агент
    +7 (977) 095-43-45
    Начать чат с агентом
    Похожие предложения в Уфе
    2-к кв. Башкортостан, Уфа Инорс-4Б мкр, Акварель жилой комплекс (66.6 ... - Фото 1
    2-к кв. Башкортостан, Уфа Инорс-4Б мкр, Акварель жилой комплекс (66.6 ... - Фото 2
    2-комнатная квартира, общая площадь 66м²

    Продаётся 2-комнатная квартира в строящемся доме (литер 9), срок сдачи: II-кв. 2027, общей площадью 66.6 кв.м., на 27 этаже. Жилой комплекс Акварель занимает обширную территорию в 25га на живописном изгибе реки Уфа .Квартал располагается в активно...
    • 66 м²
    • 2-ком
    • 27/27 эт.
    8 458 200 Р
    Агент
    +7 (977) Показать номер
    Посмотреть контакты
    2-к кв. Башкортостан, Уфа Инорс-4Б мкр, Акварель жилой комплекс (66.6 ... - Фото 1
    2-к кв. Башкортостан, Уфа Инорс-4Б мкр, Акварель жилой комплекс (66.6 ... - Фото 2
    2-комнатная квартира, общая площадь 66м²

    Продаётся 2-комнатная квартира в строящемся доме (литер 9), срок сдачи: II-кв. 2027, общей площадью 66.6 кв.м., на 25 этаже. Жилой комплекс Акварель занимает обширную территорию в 25га на живописном изгибе реки Уфа .Квартал располагается в активно...
    • 66 м²
    • 2-ком
    • 25/27 эт.
    8 458 200 Р
    Агент
    +7 (977) Показать номер
    Посмотреть контакты
    2-к кв. Башкортостан, Уфа Инорс-4Б мкр, Акварель жилой комплекс (66.6 ... - Фото 1
    2-к кв. Башкортостан, Уфа Инорс-4Б мкр, Акварель жилой комплекс (66.6 ... - Фото 2
    2-комнатная квартира, общая площадь 66м²

    Продаётся 2-комнатная квартира в строящемся доме (литер 9), срок сдачи: II-кв. 2027, общей площадью 66.6 кв.м., на 26 этаже. Жилой комплекс Акварель занимает обширную территорию в 25га на живописном изгибе реки Уфа .Квартал располагается в активно...
    • 66 м²
    • 2-ком
    • 26/27 эт.
    8 458 200 Р
    Агент
    +7 (977) Показать номер
    Посмотреть контакты
    2-к кв. Башкортостан, Уфа Инорс-4Б мкр, Акварель жилой комплекс (66.6 ... - Фото 1
    2-к кв. Башкортостан, Уфа Инорс-4Б мкр, Акварель жилой комплекс (66.6 ... - Фото 2
    2-комнатная квартира, общая площадь 66м²

    Продаётся 2-комнатная квартира в строящемся доме (литер 9), срок сдачи: II-кв. 2027, общей площадью 66.6 кв.м., на 24 этаже. Жилой комплекс Акварель занимает обширную территорию в 25га на живописном изгибе реки Уфа .Квартал располагается в активно...
    • 66 м²
    • 2-ком
    • 24/27 эт.
    8 458 200 Р
    Агент
    +7 (977) Показать номер
    Посмотреть контакты
    2-к кв. Башкортостан, Уфа Инорс-4Б мкр, Акварель жилой комплекс (66.7 ... - Фото 1
    2-к кв. Башкортостан, Уфа Инорс-4Б мкр, Акварель жилой комплекс (66.7 ... - Фото 2
    2-комнатная квартира, общая площадь 66м²

    Продаётся 2-комнатная квартира в строящемся доме (литер 9), срок сдачи: II-кв. 2027, общей площадью 66.7 кв.м., на 21 этаже. Жилой комплекс Акварель занимает обширную территорию в 25га на живописном изгибе реки Уфа .Квартал располагается в активно...
    • 66 м²
    • 2-ком
    • 21/27 эт.
    8 470 900 Р
    Агент
    +7 (977) Показать номер
    Посмотреть контакты

    Не нашли подходящего объявления?

    Оставьте заявку, и наши риэлторы подберут квартиру в новостройке в районе Уфы

    (0)