Реализация объекта недвижимости приостановлена

Информация о квартире

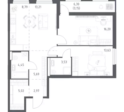
88.0 м2
Площадь
44.0 м2
Жилая
17.0 м2
Кухня
3
Комнаты
13
Этаж
14
Этажность

Дополнительная информация

Тип дома
кирпичный
Развернуть

3-к кв. Башкортостан, Уфа ул. Акназарова, 20 (88.86 м)

3 к. квартира в новом строящемся четырнадцатиэтажном монолитно-кирпичном доме Жилого комплекса Новый Фамильный. В квартале, ограниченном улицами Красноводской, Обской, Менделеева и Акназарова в Советском районе городского округа город Уфа Республики Башкортостан. В микрорайоне активно развита инфраструктура: магазины и супермаркеты, школы и детские сады, кафе, аптеки и поликлиники, больницы республиканского значения. В доме и квартале предусмотрены: консьерж сервис; закрытый двор; система видеонаблюдения за периметром; современная детская площадка с резиновым покрытием и видеонаблюдением с онлайн доступом к камерам; благоустроенная территория; собственная управляющая компания. ДОМ СДАН. Оформление по Договору купли-продажи, регистрация в Росреестре. Возможны ипотека и трейд ин. Бесплатное бронирование квартиры на 14 дней. Первоначальный взнос обязателен. Отделка - черновая, включает в себя: подготовка под штукатурку (простая) несущих стен; подготовка для устройства стяжки пола; окна ПВХ двухкамерные; однослойное остекление лоджий и балконов; входная металлическая дверь; приборы учета: счетчики ХВС, ГВС и электросчетчик; слаботочные сети до квартиры: домофон, Интернет, ТВ. Актуальную стоимость квартиры следует уточнять в офисе продаж по указанному в объявлении номеру телефона.

Читать полностью

    Реализация объекта недвижимости приостановлена

    Не нашли подходящего объявления?

    Оставьте заявку, и наши риэлторы подберут квартиру в новостройке в районе Уфы

    (0)