Реализация объекта недвижимости приостановлена

Информация о квартире

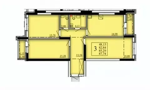
61.0 м2
Площадь
3
Комнаты
14
Этаж
25
Этажность
Развернуть

3-к кв. Башкортостан, Уфа просп. Дружбы Народов, 51 (61.2 м)

Продаётся 3-комнатная квартира в сданном доме (Литер 2, Квартал 21), срок сдачи: IV-кв. 2024, общей площадью 61.2 кв.м., на 14 этаже. NOVALAND - это новый масштабный проект микрорайона на берегу реки с современной архитектурой и развитой инфраструктурой: школами, детскими садами, поликлиниками, банками, магазинами, почтой и пр. Микрорайон расположен в черте города, в 7 минутах от Проспекта Октября, в 10 км от исторической части Уфы. Предусмотрены парковочные места на внутриквартальных дорогах дублерах.Это надежные дома комфорт-класса с оптимальной высотой от 8 до 25 этажей со своими спортивными зонами и детскими площадками. Функциональные планировки квартир и продуманная придомовая территория сделают проживание в микрорайоне NOVALAND максимально комфортным и безопасным.Дворы, закрытые шлагбаумом, исключают выход детей на проезжую часть, в каждом доме консьерж и установлено видеонаблюдение. На окнах домов установлены детские замки.Полы покрыты линолеумом, натяжные потолки, лучевая разводка системы отопления, установлены сантехника, биметаллические радиаторы, на окнах детские замки, лоджии с витражным остеклением.

Читать полностью

    Реализация объекта недвижимости приостановлена

    Не нашли подходящего объявления?

    Оставьте заявку, и наши риэлторы подберут квартиру в новостройке в районе Уфы

    (0)