10 642 100 Р 126 700 $ или 109 400

Информация о квартире

48 м2
Площадь
24 м2
Жилая
14 м2
Кухня
2
Комнаты
5
Этаж
22
Этажность
Развернуть
Агент
+7 (938) 543-93-44
Начать чат с агентом

2-к кв. Башкортостан, Уфа Глумилино-1 мкр, Новатор жилой комплекс ...

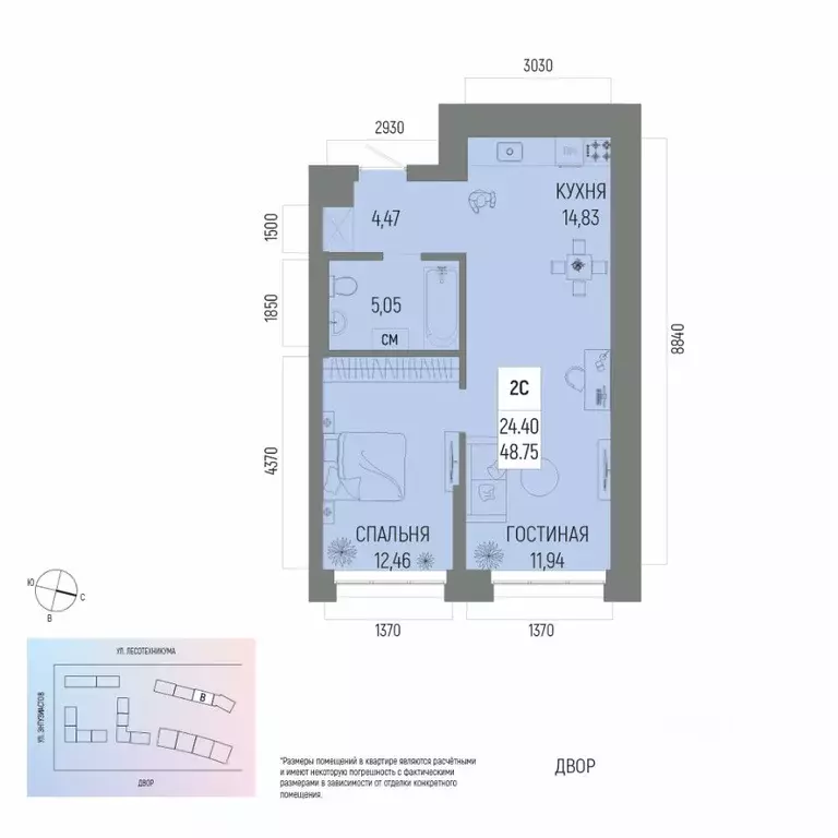
2-к квартира в Новатор; По адресу: ул. Энтузиастов/Рудольфа Нуреева/Мусы Гареева, стр. 5 Литер 5, Секция 3. 5-й этаж 22- этажного жилого дома Общая площадь 48.75кв.м.; Жилая площадь 24.40 кв. м. от ГК Первый Трест . Дом сдан. Просим представителей агентств недвижимости не беспокоить. Квартира с качественной предчистовой отделкой, позволяющей реализовать любые дизайнерские решения: - Стены: выровнены и оштукатурены, готовые под финишную отделку по вашему вкусу. - Пол: выполнена стяжка, обеспечивающая ровное основание для любых напольных покрытий. - Электрика: разводка выполнена до щитка, что обеспечивает безопасность и удобство при дальнейшем монтаже. - Отопление: установлены радиаторы и выполнена полная разводка системы отопления. - Водоснабжение: выведены коммуникации под воду, готовые для установки сантехнического оборудования. Хотите узнать подробнее о планировке или подобрать по вашим параметрам? Свяжитесь с нами Жилой комплекс Новатор - современный комфорт-класс, где каждый элемент продуман для вашего удобства и гармоничной жизни. Преимущества : - Современный комфорт-класс: продуманные планировки и конфигурации комнат позволяют легко обустроить пространство по вашему вкусу, обеспечивая максимальный комфорт проживания. - Централизованная система кондиционирования: чистый и свежий воздух в каждой квартире создаст идеальный микроклимат для здоровья и комфорта. - Удобства на первом этаже: колясочные и велосипедные помещения облегчат повседневные задачи и освободят дополнительное место в квартире. - Безопасность на высшем уровне: закрытый двор и система видеонаблюдения по всему периметру, в холлах и лифтах, обеспечат спокойствие вам и вашей семье. - Подземный паркинг: с возможностью спуститься к автомобилю на лифте прямо из квартиры. - Транспортная доступность: Одним из преимуществ жилого комплекса Новатор является высокая транспортная.В непосредственной близости от ЖК находятся остановки общественного транспорта и две главные магистрали города: пр. Салавата Юлаева и пр.Октября. Инфраструктура: - Активный образ жизни: уникальные детские площадки и зона CrossFit для занятий спортом на свежем воздухе. - Шопинг и развлечения: рядом гипермаркеты, кинотеатр Киномакс, ТРЦ Планета и ипподром Акбузат . - Социальные объекты: в шаговой доступности детские сады, школы, аптеки и офисы ведущих банков РФ. - Отдых и досуг: множество кафе, ресторанов и салонов красоты для приятного времяпровождения. Мы предлагаем различные варианты покупки квартир в нашем жилом комплексе: - Оплата наличными - Семейная ипотека от 3,5 - IT Ипотека - Ипотека для всех от 13,9 - Ипотека от 20 ведущих банков страны: наши специалисты помогут подобрать оптимальную программу кредитования. - Использование материнского капитала - Программа Trade-in: Бесплатно поможем продать вашу старую квартиру и подобрать новую в нашем комплексе Свяжитесь с нами, чтобы узнать подробности Мы раcскaжeм oбо всех

Читать полностью
    Позвонить Написать
    10 642 100 Р126 700 $ или 109 400
    Агент
    +7 (938) 543-93-44
    Начать чат с агентом
    Похожие предложения в Уфе
    2-к кв. Башкортостан, Уфа Глумилино жилрайон, Урман Сити жилой ... - Фото 1
    2-к кв. Башкортостан, Уфа Глумилино жилрайон, Урман Сити жилой ... - Фото 2
    2-комнатная квартира, общая площадь 66м², жилая 36м², кухня 5м²

    Продается квартира в ЖК Urman City с 2 спальнями на 5 этаже 10 этажного дома. Общая площадь: 66 кв.м. Высота потолков 2.95 м. Срок сдачи 1 квартал 2028 г. Эскроу-счет. Застройщик ГК Садовое кольцо . -РасположениеUrman расположен прямо в сердце лесного...
    • 66 м²
    • 2-ком
    • 5/10 эт.
    • монолит
    11 553 168 Р
    Агент
    +7 (984) Показать номер
    Посмотреть контакты
    2-к кв. Башкортостан, Уфа Глумилино жилрайон, Урман Сити жилой ... - Фото 1
    2-к кв. Башкортостан, Уфа Глумилино жилрайон, Урман Сити жилой ... - Фото 2
    2-комнатная квартира, общая площадь 58м², жилая 38м², кухня 6м²

    Продается квартира в ЖК Urman City с 2 спальнями на 6 этаже 30 этажного дома. Общая площадь: 58.6 кв.м. Высота потолков 2.95 м. Срок сдачи 1 квартал 2028 г. Эскроу-счет. Застройщик ГК Садовое кольцо . -РасположениеUrman расположен прямо в сердце лесного...
    • 58 м²
    • 2-ком
    • 6/30 эт.
    • монолит
    10 000 266 Р
    Агент
    +7 (984) Показать номер
    Посмотреть контакты
    3-к кв. Башкортостан, Уфа Глумилино жилрайон, Урман Сити жилой ... - Фото 1
    3-к кв. Башкортостан, Уфа Глумилино жилрайон, Урман Сити жилой ... - Фото 2
    3-комнатная квартира, общая площадь 73м², жилая 48м², кухня 5м²

    Продается квартира в ЖК Urman City с 3 спальнями на 14 этаже 30 этажного дома. Общая площадь: 73.3 кв.м. Высота потолков 2.95 м. Срок сдачи 1 квартал 2028 г. Мастер-спальня. Вид на лес. Эскроу-счет. Застройщик ГК Садовое кольцо . -РасположениеUrman...
    • 73 м²
    • 3-ком
    • 14/30 эт.
    • монолит
    11 891 899 Р
    Агент
    +7 (984) Показать номер
    Посмотреть контакты
    2-к кв. Башкортостан, Уфа Глумилино жилрайон, Урман Сити жилой ... - Фото 1
    2-к кв. Башкортостан, Уфа Глумилино жилрайон, Урман Сити жилой ... - Фото 2
    2-комнатная квартира, общая площадь 56м², жилая 36м², кухня 8м²

    Продается квартира в ЖК Urman City с 2 спальнями на 9 этаже 10 этажного дома. Общая площадь: 56 кв.м. Высота потолков 3.4 м. Срок сдачи 1 квартал 2028 г. Эскроу-счет. Застройщик ГК Садовое кольцо . -РасположениеUrman расположен прямо в сердце лесного...
    • 56 м²
    • 2-ком
    • 9/10 эт.
    • монолит
    10 764 096 Р
    Агент
    +7 (984) Показать номер
    Посмотреть контакты
    2-к кв. Башкортостан, Уфа Бионика Парк жилой комплекс, 3 (64.4 м) - Фото 1
    2-к кв. Башкортостан, Уфа Бионика Парк жилой комплекс, 3 (64.4 м) - Фото 2
    2-комнатная квартира, общая площадь 64м², жилая 41м², кухня 12м²

    Компактная кухня-гостиная с нишей для кухни и с выходом на теплую лоджию - дополнительное место для работы, творчества или отдыха Родительская и детская спальня правильной геометрической формы позволяет легко и функционально расставить мебельДва санузла...
    • 64 м²
    • 2-ком
    • 16/18 эт.
    • монолит
    11 087 165 Р
    Агент
    +7 (967) Показать номер
    Посмотреть контакты

    Не нашли подходящего объявления?

    Оставьте заявку, и наши риэлторы подберут квартиру в новостройке в районе Уфы

    (0)