7 799 328 Р 98 540 $ или 84 920

Информация о квартире

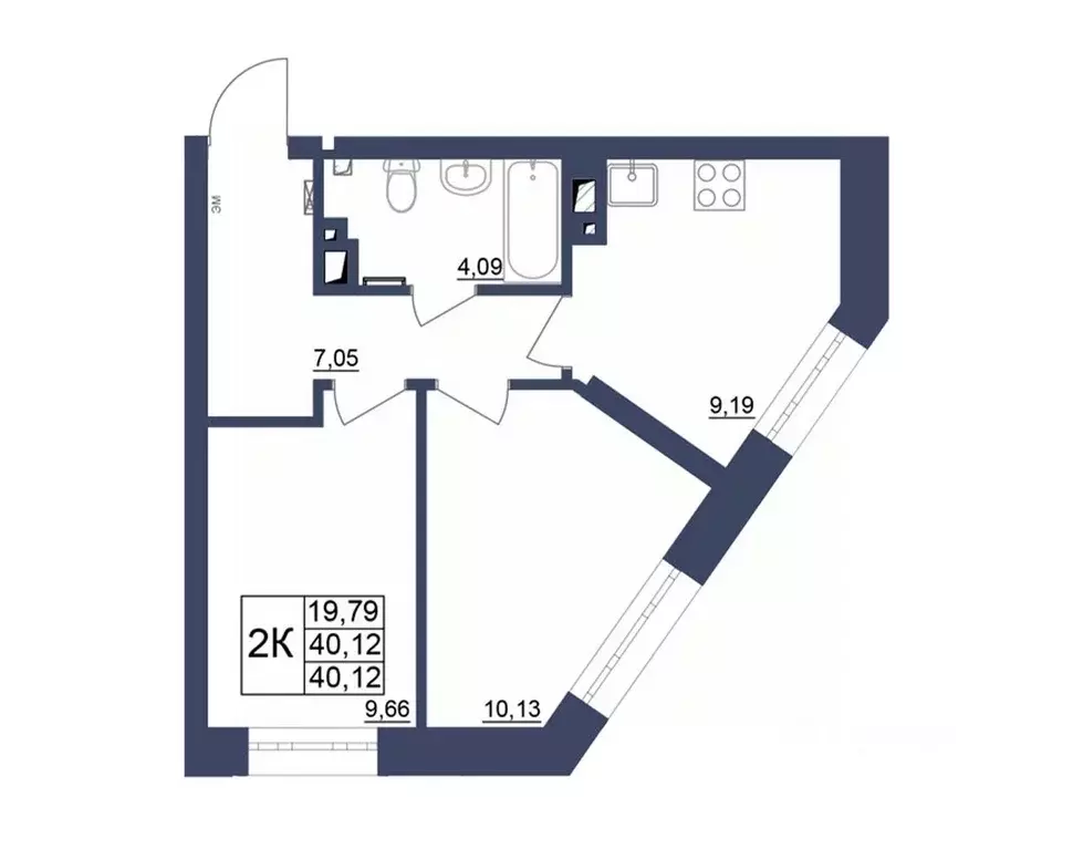
40 м2
Площадь
2
Комнаты
25
Этаж
34
Этажность
Развернуть
Агент
+7 (989) 304-59-02
Начать чат с агентом

2-к кв. Башкортостан, Уфа Космос жилой комплекс, лит1 (40.12 м)

Продаётся 2-комнатная квартира в строящемся доме (Литер 1), срок сдачи: II-кв. 2027, общей площадью 40.12 кв.м., на 25 этаже. За основу застройки ЖК Космос предполагается идея объединения городских противоположностей - периферии и центра, создав типологический гибрид, который вобрал в себя зеленую среду и высокий градус социально-культурной жизни. Космос - это современный жилой комплекс, расположенный в самом центре города. Он может похвастаться элегантным и современным архитектурным дизайном, а также современными удобствами, отвечающими потребностям и желаниям городских жителей. В соответствии с генеральным планом города Уфа проектируемая территория находится в зоне застройки объектами общественно-делового и жилого назначения в самом центре нашего города.Подземный паркинг :Подземный паркинг с видеонаблюдением и охраной, въезд будет осуществляться через пост охраны. Ваш автомобиль под защитой и в тепле - 24/7. Комплекс оснащен как наземным, так и подземным паркингом с прямым выходом в жилую часть дома.Айдентика :Комплекс предлагает изысканное и привлекательное жилое пространство, предоставляя жильцам идеальное сочетание современной роскоши, удобства и космополитической жизни.Территория квартала разделена на 4 основные зоны:- жилая традиционная- коммерческая недвижимость (встройка)- активная (детские и спортивные площадки для разных возрастных групп)- общественно-рекреационная (детский сад и школы)Вы в центре : Благодаря успешному расположению в центре города, жители имеют легкий доступ к широкому спектру ресторанов, магазинов, культурных заведений и парков. Центральное расположение также означает, что общественный транспорт, бизнес-центры и другие необходимые услуги находятся в непосредственной близости, что делает комплекс идеальным местом для тех, кто ищет динамичный городской образ жизни.Благоустройство : Концепция благоустройства включает в себя современный подход к проектированию общих зон отдыха. Основной идеей пространства Космоса является простота и лаконичность форм, достигаемая при помощи изменения ландшафта и нестандартных архитектурных решений.Архитектура : Созданный с точностью и вниманием к эстетике Космос может похвастаться современным дизайном, который органично интегрируется в городской дизайн. Гладкие фасады и инновационное использование пространства меняют облик горизонта, создавая визуально ошеломляющую среду. Благодаря современному дизайну, продуманным дворовым пространством, приверженности принципам устойчивого развития и стратегического расположения Космос предопределяет концепцию городской жизни, предлагая комфортное жилье тем, кто ищет баланс между роскошью и функциональностью.

Читать полностью
    Позвонить Написать
    7 799 328 Р98 540 $ или 84 920
    Агент
    +7 (989) 304-59-02
    Начать чат с агентом
    Похожие предложения в Уфе
    2-к кв. Башкортостан, Уфа Космос жилой комплекс, лит1 (39.87 м) - Фото 1
    2-к кв. Башкортостан, Уфа Космос жилой комплекс, лит1 (39.87 м) - Фото 2
    2-комнатная квартира, общая площадь 39м²

    Продаётся 2-комнатная квартира в строящемся доме (Литер 1), срок сдачи: II-кв. 2027, общей площадью 39.87 кв.м., на 30 этаже. За основу застройки ЖК Космос предполагается идея объединения городских противоположностей - периферии и центра, создав типологический...
    • 39 м²
    • 2-ком
    • 30/34 эт.
    7 750 728 Р
    Агент
    +7 (989) Показать номер
    Посмотреть контакты
    2-к кв. Башкортостан, Уфа Космос жилой комплекс, лит1 (39.96 м) - Фото 1
    2-к кв. Башкортостан, Уфа Космос жилой комплекс, лит1 (39.96 м) - Фото 2
    2-комнатная квартира, общая площадь 39м²

    Продаётся 2-комнатная квартира в строящемся доме (Литер 1), срок сдачи: II-кв. 2027, общей площадью 39.96 кв.м., на 28 этаже. За основу застройки ЖК Космос предполагается идея объединения городских противоположностей - периферии и центра, создав типологический...
    • 39 м²
    • 2-ком
    • 28/34 эт.
    7 768 224 Р
    Агент
    +7 (989) Показать номер
    Посмотреть контакты
    1-к кв. Башкортостан, Уфа Космос жилой комплекс, лит1 (39.75 м) - Фото 1
    1-к кв. Башкортостан, Уфа Космос жилой комплекс, лит1 (39.75 м) - Фото 2
    1-комнатная квартира, общая площадь 39м²

    Продаётся 1-комнатная квартира в строящемся доме (Литер 1), срок сдачи: II-кв. 2027, общей площадью 39.75 кв.м., на 28 этаже. За основу застройки ЖК Космос предполагается идея объединения городских противоположностей - периферии и центра, создав типологический...
    • 39 м²
    • 1-ком
    • 28/34 эт.
    7 727 400 Р
    Агент
    +7 (989) Показать номер
    Посмотреть контакты
    1-к кв. Башкортостан, Уфа Космос жилой комплекс, лит1 (39.7 м) - Фото 1
    1-к кв. Башкортостан, Уфа Космос жилой комплекс, лит1 (39.7 м) - Фото 2
    1-комнатная квартира, общая площадь 39м²

    Продаётся 1-комнатная квартира в строящемся доме (Литер 1), срок сдачи: II-кв. 2027, общей площадью 39.7 кв.м., на 29 этаже. За основу застройки ЖК Космос предполагается идея объединения городских противоположностей - периферии и центра, создав типологический...
    • 39 м²
    • 1-ком
    • 29/34 эт.
    7 717 680 Р
    Агент
    +7 (989) Показать номер
    Посмотреть контакты
    1-к кв. Башкортостан, Уфа Космос жилой комплекс, лит1 (39.75 м) - Фото 1
    1-к кв. Башкортостан, Уфа Космос жилой комплекс, лит1 (39.75 м) - Фото 2
    1-комнатная квартира, общая площадь 39м²

    Продаётся 1-комнатная квартира в строящемся доме (Литер 1), срок сдачи: II-кв. 2027, общей площадью 39.75 кв.м., на 27 этаже. За основу застройки ЖК Космос предполагается идея объединения городских противоположностей - периферии и центра, создав типологический...
    • 39 м²
    • 1-ком
    • 27/34 эт.
    7 727 400 Р
    Агент
    +7 (989) Показать номер
    Посмотреть контакты

    Не нашли подходящего объявления?

    Оставьте заявку, и наши риэлторы подберут квартиру в новостройке в районе Уфы

    (0)