Реализация объекта недвижимости приостановлена

Информация о квартире

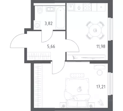
56.0 м2
Площадь
30.0 м2
Жилая
10.0 м2
Кухня
3
Комнаты
7
Этаж
32
Этажность
Развернуть

3-к кв. Башкортостан, Уфа ул. Минигали Губайдуллина, 16 (56.0 м)

УНИКАЛЬНОЕ ПРЕДЛОЖЕНИЕ Секция готова к сдаче Дешевле,чем у застройщика на 2 миллиона Таким планировок больше нет.Отличное инвестиционное вложение.Под сдачу востребованная планировка с арендным платежом от в месяц В продаже по переуступке трехкомнатная квартира европланировки, площадью 56 квадратных метров.Планировка удобная, окна выходят на лес и город.Просторная кухня-гостиная 20,1 кв.м, очень светлая за счёт того, что имеет 3 панорамных окна.В квартире есть ниша под гардероб, 2 санузла 3,9 квадратов и 2,16 квадратов, можно использовать как постирочную, плюсаздельные комнаты правильной формы.ЖК расположен в развитом микрорайоне, с богатой инфраструктурой в шаговой доступности. В 10-ти минутах ходьбы находятся: школьные и дошкольные заведения, парки, торговые центры, спортивные секции, медицинские учреждения, развлечения и многое другое.Прогуляться с детьми, пройтись после работы, наслаждаясь закатом, выйти на утреннюю пробежку, отдохнуть от ритма мегаполиса наслаждаясь тишиной и свежим воздухом - всё это будет доступно жителям ЖК URBANICA, ведь буквально в нескольких минутах ходьбы от дома находится уютный парк Лесоводов .Инфраструктура: 14 д/с : 62,105,129,226,244,251 идр), Школы: 108,110, лицей 94.Фитнес клуб Арена 3000, ТЦ Аркада, Ультра, Два больших парка для прогулок.Описание: 5 Домов переменной этажности с закрытой территорией и современным функционалом.Концепция: Закрытый двор: сочетание площадок для активных игр и спокойных прогулок, занятий спортом и просто приятного время препровождения.Жизнь в ЖК URBANICA - это настоящий рай для тех, кто не представляет своей жизни без спорта.Прямо на территории ЖК для вас будут реализованы спортивные площадки, где вы сможете проводить дружественные матчи по футболу и баскетболу между соседями или устраивать чемпионаты района соревнуясь с жителями других жилых комплексов, а для любителей силовых нагрузок будут установлены современные тренажёры в зоне workout.Парковка: Подземный паркинг.Конструктив: Монолит + красный кирпич + базальтовый утеплитель + вентилируемый фасад из композитных материалов.Содержание и отделка МОП: Дизайнерская отделка входных групп, колясочные и место для консьержа, видео наблюдение.Высота потолков - 6 м. Лифты: 5 лифтов в подъезде, скоростные современные.Отделка: В отделку входит: Штукатурное покрытие стен на гипсовой основе, в с/у на цементной основе. Пол - подготовительная цементно-песчаная стяжка со звукоизоляционной подложкой, в санузлах с гидроизоляционным слоем.Окна из ПВХ-профиля со стеклопакетом, подоконники, откосы.Электроразводка, счетчик, розетки, выключатели. Входная дверь металлическая. Межкомнатные стены отсутствуют.Отопление и разводка: Централизованное, лучевая разводка.

Читать полностью

    Реализация объекта недвижимости приостановлена

    Не нашли подходящего объявления?

    Оставьте заявку, и наши риэлторы подберут квартиру в новостройке в районе Уфы

    (0)