Реализация объекта недвижимости приостановлена

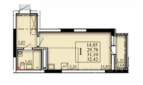
Информация о квартире

37.0 м2
Площадь
10.0 м2
Кухня
2
Комнаты
4
Этаж
25
Этажность
Развернуть

2-к кв. Башкортостан, Уфа просп. Дружбы Народов, 47 (37.3 м)

Двухкомнатная квартира в ЖК Новаленд. На 4 этаже. Общая площадь 37.31 кв.м. Получистовая отделка сдача декабрь 2025 года. Реальному покупателю торг.

Читать полностью

    Реализация объекта недвижимости приостановлена

    Не нашли подходящего объявления?

    Оставьте заявку, и наши риэлторы подберут квартиру в новостройке в районе Уфы

    (0)