Реализация объекта недвижимости приостановлена

Информация о квартире

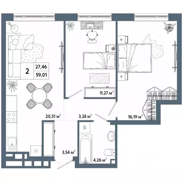
47.0 м2
Площадь
17.0 м2
Жилая
18.0 м2
Кухня
1
Комната
13
Этаж
25
Этажность

Дополнительная информация

Тип дома
кирпичный
Развернуть

1-к кв. Башкортостан, Уфа ул. Султанова, 28 (47.86 м)

1 к. квартира в новом строящемся двадцатипятиэтажном монолитно-кирпичном доме комплекса высотных домов Грани в квартале, ограниченном улицами Гафури, Чернышевского, Султанова. Тихий район в историческом центре Уфы. Полностью развитая инфраструктура района: школы, детские сады, прогулочные зоны, спортивные учреждения, магазины, аптеки находятся в шаговой доступности. Гостиный двор и площадь им. Салавата Юлаева в 15-ти минутах спокойного шага от комплекса. В доме и квартале предусмотрены: консьерж сервис; закрытый двор; система видеонаблюдения за периметром; благоустроенная территория; собственная управляющая компания; детская и спортивная площадки. СДАЧА ДОМА 4 квартал 2026 г. Оформление по Договору долевого участия, регистрация в Росреестре. Возможна рассрочка, ипотека, трейд ин. Бесплатное бронирование квартиры на 14 дней. Продажи осуществляются с использованием эскроу-счетов. Первоначальный взнос обязателен. Отделка - черновая, включает в себя: подготовка под штукатурку несущих стен; подготовка для устройства стяжки пола; окна ПВХ двухкамерные; однослойное остекление лоджий; входная металлическая дверь; щиток с входным автоматом; слаботочные сети до квартиры; корзины для наружного блока кондиционера; система отвода воды. Актуальную стоимость квартиры следует уточнять в офисе продаж по указанному в объявлении номеру телефона.

Читать полностью

    Реализация объекта недвижимости приостановлена

    Не нашли подходящего объявления?

    Оставьте заявку, и наши риэлторы подберут квартиру в новостройке в районе Уфы

    (0)