Узнать последнюю цену

Реализация объекта недвижимости приостановлена

Информация о коттедже

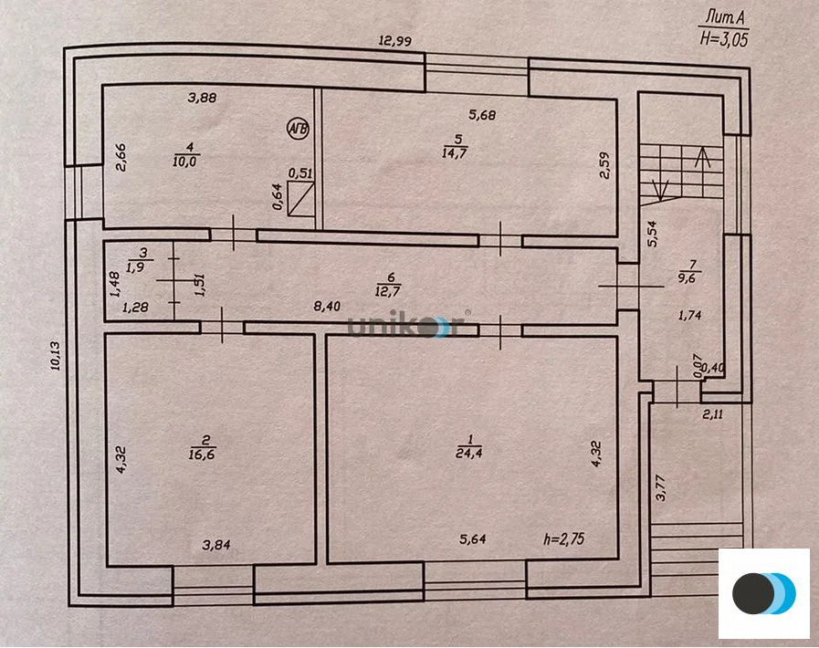
182.5 м2
Площадь
98.1 м2
Жилая
14.7 м2
Кухня
2011
Построен
2
Этажность
4
Количество комнат
15 cоток
Участок

Состояние и оснащение

Год постройки
2011

Дополнительная информация

Дом продаётся вместе с участком
есть
Категория назначения землепользования
знп земли населенных пунктов
Вид разрешенного использования для участка
знп для ижс

Коммуникации

Газоснабжение
имеется
Водоснабжение
центральное
Канализация
есть
Электроснабжение
обеспечено действующим договором с электросбытовой компанией

Оснащённость

Телевизор
жк телевизор
Наличие интернета
подключен
Телефон
отсутствует
Развернуть

Продажа дома, Уфа, ул. Чехова

Объявление №43668. Дом мечты в Максимовке — 182,5 м², 15 соток, баня, гараж, рядом лес и озеро! Ипотека, маткапитал, обмен!
Максимовка, 10 минут до центра Уфы — тишина леса и свежий воздух, но при этом полный городской комфорт рядом!
Продаётся просторный двухэтажный дом 182,5 м² на участке 15 соток (фактически более 20) — идеальное сочетание загородной идиллии и удобства города. Это не просто дом, а готовое семейное гнездо, где продумана каждая деталь для комфортной жизни!
Что вас ждёт:
Дом:

6 комнат: 2 гостиные (24,4 и 36,8 м²) — простор для встреч и праздников
2 светлые спальни (16,6 и 20,3 м²) — уютный отдых
Кухня 14,7 м² с плиткой KERAMA MARAZZI
3 гардеробные — порядок и место для вещей
2 санузла (5,4 и 10 м²) с вентиляцией
Качественная отделка, высокие потолки, много света

Надёжная постройка:

Керамзитобетон + облицовка блоком "Бессер"
Утепление минватой Технониколь (100 мм) — тепло зимой, прохладно летом
Фундамент 4,5 м из армированного бетона М-350
Крыша из профнастила с водостоком и снегозадержателями

Коммуникации — всё автономно и современно:

Газ + резервный электрокотёл Bosch Eurostar Junkers
2 скважины — для дома и полива
Электричество 15 кВт, 380 В
Оптоволоконный интернет и Wi-Fi
Шамбо 5 м — автономная канализация

Участок 15 соток — ваш собственный оазис!

Полностью огорожен (профнастил + лицевая часть из блока "Бессер")
Плодовые деревья, кустарники — свой сад и урожай
Гараж 4,7×11 м — для авто и инструментов
Хозблок 4×6 м
Баня 6×6 м — отдых с семьёй и друзьями
Теплица 3×6 м — свежие овощи круглый год

Инфраструктура рядом:

Детский сад и школа — рядом
Магазины, аптеки, поликлиника, почта
Мечеть "Асия", шиномонтаж и сервисы

Почему стоит купить сейчас?

Один собственник, юридически чисто, без долгов
Возможен торг — продаём в связи с переездом
Ипотека — поможем оформить на выгодных условиях
Приём материнского капитала
Рассмотрим обмен на 3-комнатную квартиру в Уфе + доплата

Домов с таким расположением и качеством — единицы!Жить у озера и леса, но быть в 10 минутах от центра Уфы — это редкая возможность!
Звоните прямо сейчас! Организуем просмотр в удобное для вас время.Не упустите шанс обрести дом своей мечты — начните новую главу жизни уже сегодня!
Пишите в чат или звоните — ответим на все вопросы!

Читать полностью
    Узнать последнюю цену

    Реализация объекта недвижимости приостановлена

    Не нашли подходящего объявления?

    Оставьте заявку, и наши риэлторы подберут купить дом в районе Уфы

    (0)