7 700 000 Р 94 800 $ или 82 060

Информация о коттедже

121 м2
Площадь
1
Этажность
7 cоток
Участок

Дополнительная информация

Дом продаётся вместе с участком
есть
Развернуть
Агент
+7 (987) 100-49-19
Начать чат с агентом

Дом в Башкортостан, Уфа ул. Барбарисовая (121 м)

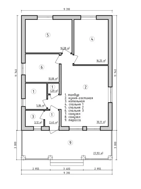
Объявление 44591. Предлагаем вашему вниманию новый дом, 121 м, расположенный на 7 сотках земли в Елкибаево, в Калининском районе г. Уфы по лучшей цене Удаленность от черты города - 10 км.Дом расположен в удобном тихом месте, в 600 метрах асфальт и остановка общественного транспорта. детский сад и школа рядом в Федоровке. Характеристики:- Стены, керамзитоблок облицованный кирпичом;- Фундамент свайно - ленточный, армированный с монолитной плитой;- Пластиковые окна;- Этажность - 1 эт.;- Жилая площадь 100 м;- Высота потолков 2,9 м;- Категория земли - ИЖС; Планировка:- Теплый тамбур;- Санузел;- Кухня - гостинная;- Три спальные комнаты; Коммуникации:- Электричество 220/380;- Вода своя;- Локальная канализация.- Газ по границе участка.Инфраструктура:- Экологически-чистое место, прекрасно подходит для проживания.- Живописные места - вокруг леса (грибы и ягоды).- Асфальтированная дорога, зимой регулярно чистят дороги от снега. Условия приобретения:Наличный расчет;Ипотека;Семейная ипотека;Сертификаты.Документы готовы, никакой комиссии при покупке данного объекта Направление: Уфа - Шакша - Князево - Дорогино - Кириллово - Грибовка - ИглиноЗаписывайтесь на просмотр

Читать полностью

    Для того, чтобы купить 1-этажный коттедж по адресу: Уфа, Калининский, ул. Барбарисовая, позвоните по телефону +7 (987) 100-49-19. Торопитесь! Объявление №50016535052 о продаже одноэтажного коттеджа опубликовано Сегодня.

    Позвонить Написать
    7 700 000 Р94 800 $ или 82 060
    Агент
    +7 (987) 100-49-19
    Начать чат с агентом
    Похожие предложения
    Коттедж в Башкортостан, Уфа Елкибаево-Федоровка-Самохваловка жилрайон, ... - Фото 1
    Коттедж в Башкортостан, Уфа Елкибаево-Федоровка-Самохваловка жилрайон, ... - Фото 2
    общая площадь 100м², участок 6 соток

    Параметры:Общая площадь дома 100 КВ.мОбщая площадь земельного участка 6.5 соток.Преимущества дома: Надёжный фундамент на буро наливных сваях, глубина каждой 3 м., железобетонный ростверк.Планировка:кухня-гостиная, три жилые комнаты, сан Узел, Холл, котельная....
    • 100 м²
    • 6 сот.
    7 600 000 Р
    Агент
    +7 (987) Показать номер
    Посмотреть контакты
    Дом в Башкортостан, Уфа пер. 3-й Звонкий, 3 (140 м) - Фото 1
    Дом в Башкортостан, Уфа пер. 3-й Звонкий, 3 (140 м) - Фото 2
    2 этажа, общая площадь 140м², участок 6 соток

    Продаётся уютный дом в Самохваловке — идеальное место для комфортной жизни Ищете просторный дом недалеко от города? Этот вариант станет отличной находкой Всего 25 минут от Уфы — и вы в тихом, экологически чистом районе, где можно понастоящему отдохнуть...
    • 2 эт.
    • 140 м²
    • 6 сот.
    7 750 000 Р
    Агент
    +7 (987) Показать номер
    Посмотреть контакты
    Дом в Башкортостан, Уфа ул. Нугушская (116 м) - Фото 1
    Дом в Башкортостан, Уфа ул. Нугушская (116 м) - Фото 2
    2 этажа, общая площадь 116м², участок 6 соток

    Продаётся просторный дом с участком — комфорт и практичность по семейной ипотеке Основные характеристики:Площадь дома: 116 кв.м.Площадь участка: 6,62 соток.Стоимость: (предчистовая отделка).Надежная конструкция и энергоэффективностьДом построен с применением...
    • 2 эт.
    • 116 м²
    • 6 сот.
    7 600 000 Р
    Агент
    +7 (987) Показать номер
    Посмотреть контакты
    Коттедж в Башкортостан, Уфа Елкибаево-Федоровка-Самохваловка жилрайон, ... - Фото 1
    Коттедж в Башкортостан, Уфа Елкибаево-Федоровка-Самохваловка жилрайон, ... - Фото 2
    1 этаж, общая площадь 85м², участок 6 соток

    **Продается уютный коттедж 80 м с террасой** **Площадь**: 80 м (жилая) + просторная терраса **Комнаты**: 3 спальни, гостиная, кухня **Отопление**: газовое (экономный обогрев) **Участок**: 6 соток ИЖС **Коммуникации**: вода, канализация, электричество...
    • 1 эт.
    • 85 м²
    • 6 сот.
    7 700 000 Р
    Агент
    +7 (917) Показать номер
    Посмотреть контакты
    Дом в Башкортостан, Уфа Елкибаево-Федоровка-Самохваловка жилрайон, 2З ... - Фото 1
    Дом в Башкортостан, Уфа Елкибаево-Федоровка-Самохваловка жилрайон, 2З ... - Фото 2
    1 этаж, общая площадь 108м², участок 6 соток

    Дом 108 м2 от застройщика На ровном участке 6 соток ИЖС.Дом готов в предчистовой отделке Жилое пространство организовано максимально эффективно:* Просторная кухня - гостиная с выходом на участок.*Три отдельные спальни.* Мастер спальня с собственным сан....
    • 1 эт.
    • 108 м²
    • 6 сот.
    7 700 000 Р
    Агент
    +7 (987) Показать номер
    Посмотреть контакты

    Не нашли подходящего объявления?

    Оставьте заявку, и наши риэлторы подберут купить дом в районе Уфы

    (0)