Реализация объекта недвижимости приостановлена

Информация о квартире

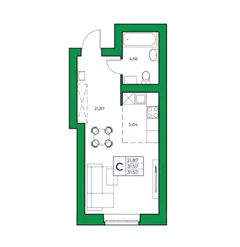
30.0 м2
Площадь
1
Комната
5
Этаж
5
Этажность

Дополнительная информация

Тип дома
кирпичный
Развернуть

1-к кв. Башкортостан, Уфа городской округ, д. Ветошниково Город ...

Продаётся 1-комнатная квартира в строящемся доме (квартал 13 - дом 9), срок сдачи: IV-кв. 2025, общей площадью 30.37 кв.м., на 5 этаже. Жилой комплекс Город природы - крупнейший в Уфе градостроительный проект комплексного развития территории в 8 км от центра города. Свободный от застройки новый район площадью 266 га располагается в экологически благоприятной природной зоне непосредственно на левом берегу старицы реки Белой. Концепция проекта Город природы , разработанная с участием международных архитекторов и крупнейших российских риелторских компаний, предполагает реализацию современного многоформатного проекта с жилой, коммерческой, офисной, спортивной составляющей и комфортным благоустройством. Отличительные черты проекта - уникальность концепции, расположение, масштабность застройки, разнообразие спортивной и социальной инфраструктуры, потенциал развития транспортной сети. Одной из важных составляющих гармоничной жизни в микрорайоне является социальная инфраструктура. Проектом предусмотрено достаточное количество социальных объектов - школ, детских садов, медицинских и спортивных учреждений. Уже в первой очереди строительства будет построен современный детский сад на 190 мест. В Городе природы будет, чем дышать - озелененные территории составляют 30 всей площади застройки, по границам участка протекает два ручья, а на правом берегу старицы реки Белой расположен огромный лесной массив полуострова Козарез площадью 900 га. Основной упор при разработке концепции проекта сделан на создании такой среды обитания, в которой люди всех возрастов будут чувствовать себя комфортно. На данный момент это уникальный продукт, до сих пор не представленный на рынке недвижимости Уфы - пример ценностно-ориентированного девелопмента, когда при разработке проекта во главу угла ставятся ценности более высокого, нематериального порядка, составляющие основу счастливой и гармоничной жизни. Ключевой идеей Города природы является формирование семейного района с развитой спортивной и рекреационной составляющей. Развитие рекреационных зон предоставит не только жителям Города природы , но и всем горожанам уникальное пространство для отдыха, центром притяжения которого станут парк отдыха на территории 50 га с летним театром и благоустроенная набережная с кафе, ресторанами, прогулочной зоной, причалом и собственным пляжем. Для любительского и профессионального спорта в Городе природыазработан уникальный спортивный кластер из спортивно-оздоровительных объектов общей площадью 112 000 кв. м. Он включает в себя футбольные поля, теннисные корты, бассейн, ледовый дворец, крупный спортивный комплекс. Генпланом развития Уфы предусмотрено создание дорожной сети районного значения со строительством хордовой магистрали от шоссе Дема-Затон до центральной части города по незаселенным районам. В рамках общегородской программы развития общественного транспорта будет создан узел автобусного сообщения, а также сформированы районные маршруты троллейбусов. Район обладает по

Читать полностью

    Реализация объекта недвижимости приостановлена

    Не нашли подходящего объявления?

    Оставьте заявку, и наши риэлторы подберут квартиру в новостройке в районе Ветошниково

    (0)