6 900 000 Р 90 680 $ или 77 790

Информация о коттедже

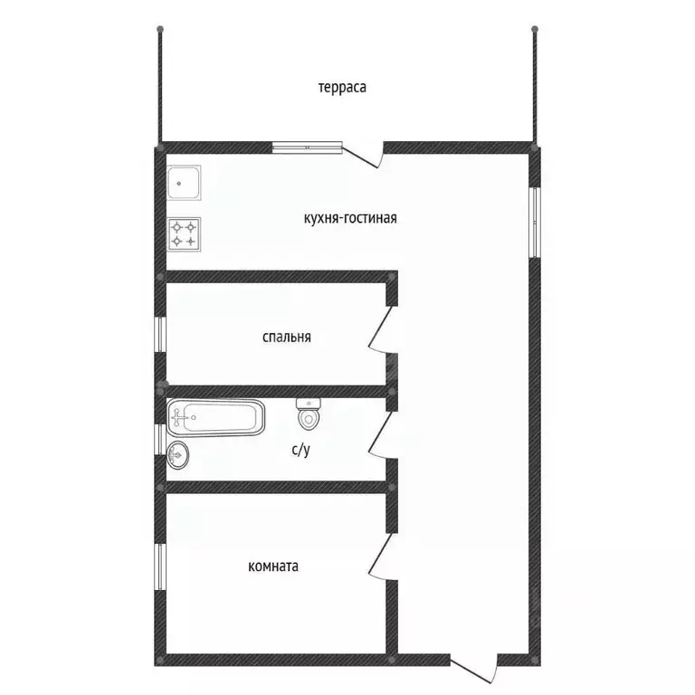
116 м2
Площадь
2025
Построен
1
Этажность
3
Количество комнат
9.6 cоток
Участок

Состояние и оснащение

Дом
из пеноблоков
Год постройки
2025
Ремонт
чистовая отделка

Дополнительная информация

Дом продаётся вместе с участком
есть
Развернуть
Агент
Ахметгареев Руслан Салаватович
+7 (962) 547-70-20
Начать чат с агентом

Продажа дома, Нагаево

Объявление №45201. Предлагаем вашему вниманию уютный одноэтажный дом от надежного застройщика, расположенный в живописном поселке Нагаево.
Это идеальное место для жизни и отдыха , вдали от городской суеты , с удобным доступом к необходимой инфраструктуре. В поселке есть школа и детский сад, сетевые магазины, поликлиника, стоматология, пункты ПВЗ, фитнес-центр.
Описание дома :

Площадь дома : 116 кв.метров
Площадь участка : 9,56 соток
Этажность : этажа
Материал стен : керамзитоблок , утеплитель , облицовочный кирпич
Фундамент : свайно- ростверковый
Кровля : металлочерепица
Коммуникации : электрическое отопление , вода колодец , канализация шамбо
Отделка : получистовая


Просторная кухня-гостинная
3 спальни на первом этаже.
Санузел

Преимущества :

Угловой участок
Спокойное и уютное место для жизни
Экологически чистый район
Удобное транспортное сообщение с городом
Возможность оформить семейную ипотеку под 6%

Для получения дополнительной информации и организации просмотра , звоните по телефону
Не упустите возможность стать владельцем этого замечательного дома!

Читать полностью

    Для того, чтобы купить 1-этажный коттедж по адресу: Нагаево, позвоните по телефону +7 (962) 547-70-20. Торопитесь! Объявление №506735128 о продаже одноэтажного коттеджа опубликовано Вчера.

    Позвонить Написать
    6 900 000 Р90 680 $ или 77 790
    Агент
    Ахметгареев Руслан Салаватович
    +7 (962) 547-70-20
    Начать чат с агентом
    Похожие предложения в Нагаево
    Дом в Башкортостан, Уфа городской округ, с. Нагаево, 29-й кв-л  (80 м) - Фото 1
    Дом в Башкортостан, Уфа городской округ, с. Нагаево, 29-й кв-л  (80 м) - Фото 2
    1 этаж, общая площадь 80м², участок 9 соток

    Ваш ДOM возле Школы и в центре с.НAГАEВOул ЦветочнаяОпиcaние дома:Площадь дома - 80 квмПлощaдь учacтка: 5 coтoкЭтaжность: 1 этaжMатepиaл стен: кeрaмзитоблок, утеплитeль, oблицовoчный киpпич.Фундамент: свaйно-рocтверковыйКpовля: мeталлочeрепицаКоммуникации:...
    • 1 эт.
    • 80 м²
    • 9 сот.
    7 000 000 Р
    Агент
    +7 (987) Показать номер
    Посмотреть контакты
    Дом в Нагаево, Декоративная улица, 67 (116 м) - Фото 1
    Дом в Нагаево, Декоративная улица, 67 (116 м) - Фото 2
    1 этаж, общая площадь 116м², участок 9 соток

    Объявление №45201. Предлагаем вашему вниманию уютный одноэтажный дом от надежного застройщика, расположенный в живописном поселке Нагаево.Это идеальное место для жизни и отдыха , вдали от городской суеты , с удобным доступом к необходимой инфраструктуре....
    • 1 эт.
    • 116 м²
    • 9 сот.
    6 900 000 Р
    Агент
    +7 (906) Показать номер
    Посмотреть контакты
    Коттедж в Башкортостан, Уфа городской округ, с. Нагаево ул. Советская ... - Фото 1
    Коттедж в Башкортостан, Уфа городской округ, с. Нагаево ул. Советская ... - Фото 2
    1 этаж, общая площадь 82м², участок 6 соток

    Объявление 44691. Продается уютный кирпичный дом в НагаевоВозможен обмен на квартиру в Уфе Расположение:Тихая тупиковая улица в центре Нагаево. До магазинов - всего 300 м. Рядом школа, детский сад, остановки. Заезд с Нагаевского шоссе и ул. Правды....
    • 1 эт.
    • 82 м²
    • 6 сот.
    6 800 000 Р
    Агент
    +7 (987) Показать номер
    Посмотреть контакты
    Дом в Башкортостан, Уфа городской округ, с. Нагаево ул. Салютная, 64В ... - Фото 1
    Дом в Башкортостан, Уфа городской округ, с. Нагаево ул. Салютная, 64В ... - Фото 2
    1 этаж, общая площадь 108м², участок 6 соток

    Продам загородный дом 108 кв.м в Федоровке Возможна ипотека без первоначального взносаОдобрение ипотеки бесплатно Конструктив: _площадь дома 108 кв.м _площадь земельного участка 6 соток_этажность 1; материал стен керамзитобетонный блок 300 мм, утеплитель...
    • 1 эт.
    • 108 м²
    • 6 сот.
    6 800 000 Р
    Агент
    +7 (917) Показать номер
    Посмотреть контакты
    Коттедж в Башкортостан, Уфа городской округ, с. Нагаево пер. ... - Фото 1
    Коттедж в Башкортостан, Уфа городской округ, с. Нагаево пер. ... - Фото 2
    1 этаж, общая площадь 101м², участок 6 соток

    Арт.Продаётся просторный коттедж в живописном районе Нагаево с хорошо развитой инфраструктурой. Этот уютный дом на одном этаже площадью 103 кв.м. подойдет для тех, кому важен комфорт и функциональность.Дом имеет 3 просторные комнаты, просторную кухню-гостиную...
    • 1 эт.
    • 101 м²
    • 6 сот.
    6 990 000 Р
    Агент
    +7 (987) Показать номер
    Посмотреть контакты

    Не нашли подходящего объявления?

    Оставьте заявку, и наши риэлторы подберут купить дом в районе Нагаево

    (0)