10 300 000 Р 134 100 $ или 115 200

Информация о коттедже

112 м2
Площадь
1
Этажность
6 cоток
Участок

Дополнительная информация

Дом продаётся вместе с участком
есть
Развернуть
Агент
+7 (987) 042-62-02
Начать чат с агентом

Дом в Башкортостан, Уфа городской округ, с. Нагаево пер. Мозаичный, ...

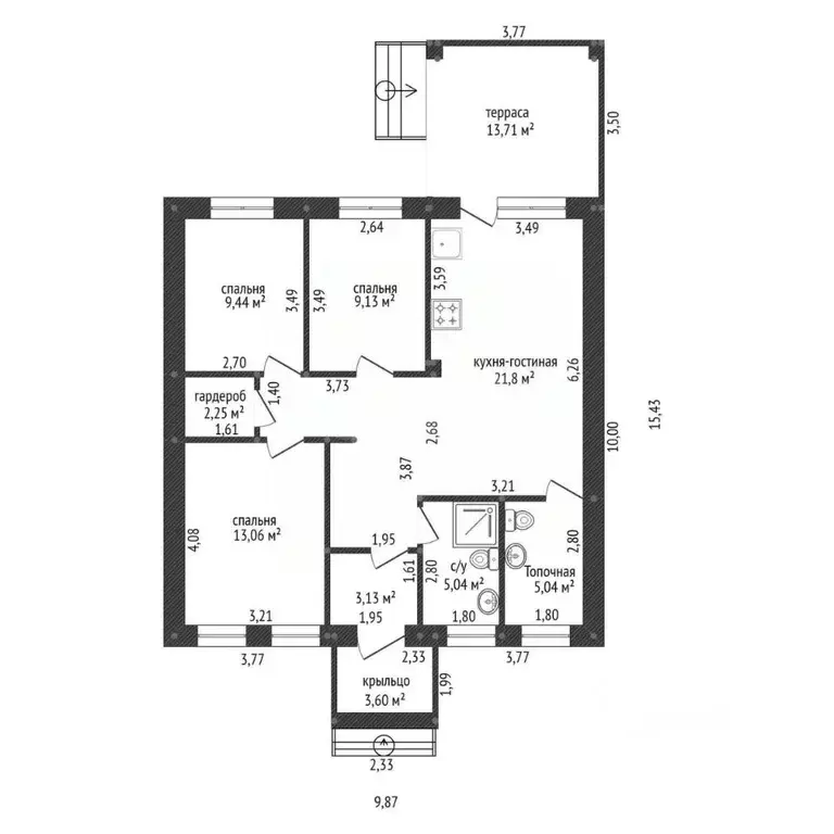
Откройте для себя идеальное место для жизни — светлый и просторный одноэтажный дом в развитом районе Нагаево (микрорайон Есенинский3). Это готовое решение для семьи, где продумана каждая деталь: от надёжной конструкции до продуманной планировки.Ключевые преимуществаУдобное расположение: рядом продуктовый магазин, пункт выдачи заказов и остановка школьного автобуса — всё необходимое в шаговой доступности.Просторный участок: 6,48 соток, правильной формы, ровный, полностью огорожен.Надёжная конструкция: дом из газоблока, утеплён пенополистиролом и облицован кирпичом; свайноростверковый фундамент гарантирует долговечность.Современные коммуникации: заведён газ, по всему дому установлены тёплые полы.Качественное исполнение: пластиковые окна и надёжная входная дверь обеспечивают комфорт и безопасность.Удобная планировкаТамбур при входе с нишей для шкафа — практичное решение для хранения вещей.В правой части дома большая кухнягостиная с перегородкой, отделяющей кухонную зону. Выход во двор позволяет наслаждаться свежим воздухом без лишних хлопот.Три спальни в левой части дома — достаточно места для всей семьи.Санузел и бойлерная — функциональность и удобство в повседневной жизни.Готовая отделка — заезжай и живи Дом сдан с чистовой отделкой:ламинат на полу;обои на стенах;натяжные потолки;межкомнатные двери.Осталось только завезти мебель — и можно начинать новую главу вашей жизни Юридические и финансовые условияПолное юридическое сопровождение сделки.Возможность приобретения по семейной ипотеке или ИТипотеке.Помощь в одобрении ипотеки — сделаем процесс покупки максимально комфортным.Не упустите шанс стать владельцем дома, где каждый элемент создан для вашего удобства и комфорта Звоните, чтобы записаться на просмотр и узнать больше деталей. Ваш идеальный дом ждёт вас Код пользователя: 188161Номер в базе:

Читать полностью

    Для того, чтобы купить 1-этажный коттедж по адресу: Нагаево, Мозаичный переулок, 105, позвоните по телефону +7 (987) 042-62-02. Торопитесь! Объявление №50016593030 о продаже одноэтажного коттеджа опубликовано Вчера.

    Позвонить Написать
    10 300 000 Р134 100 $ или 115 200
    Агент
    +7 (987) 042-62-02
    Начать чат с агентом
    Похожие предложения
    Дом в Башкортостан, Уфа городской округ, с. Нагаево пер. Мозаичный, ... - Фото 1
    Дом в Башкортостан, Уфа городской округ, с. Нагаево пер. Мозаичный, ... - Фото 2
    1 этаж, общая площадь 112м², участок 6 соток

    Продам дом Площадь дома составляет 112 кв. м на ухоженном участке 6,5 соток, что обеспечивает простор для комфортного проживания всей семьи. Прочная конструкция включает стены из газоблока с облицовкой кирпичом, свайно-ростверковый фундамент и надежную...
    • 1 эт.
    • 112 м²
    • 6 сот.
    10 300 000 Р
    Агент
    +7 (987) Показать номер
    Посмотреть контакты
    Дом в Башкортостан, Уфа городской округ, с. Нагаево пер. Мозаичный, ... - Фото 1
    Дом в Башкортостан, Уфа городской округ, с. Нагаево пер. Мозаичный, ... - Фото 2
    1 этаж, общая площадь 106м², участок 6 соток

    Дом в Haгaeво, в Есенинском Просторный светлый одноэтажный дом в пoпулярном pайoнe Нагaевo, Есенинский 3. Дом 106 м Земельный участок 6,48 сот. Чиcтовaя, газ, зaбop Стены из газоблока Облицовка кирпичом кровля метало черепица утеплитель пенополистирол...
    • 1 эт.
    • 106 м²
    • 6 сот.
    10 300 000 Р
    Агент
    +7 (987) Показать номер
    Посмотреть контакты
    Дом в Башкортостан, Уфа городской округ, с. Нагаево ул. Янтарная, 60 ... - Фото 1
    Дом в Башкортостан, Уфа городской округ, с. Нагаево ул. Янтарная, 60 ... - Фото 2
    1 этаж, общая площадь 100м², участок 6 соток

    Продам дом продается дом 100 м2 на 6,5 соток. Материал стен: газоблок, утеплитель пенопласт, облицовка кирпич. Фундамент свайно ростверковый. кровля металлочерепица, потолок утеплен минватой. окна 70 профиль. дверь с терморазрывом. шамбо, колодец. отопление...
    • 1 эт.
    • 100 м²
    • 6 сот.
    10 200 000 Р
    Агент
    +7 (987) Показать номер
    Посмотреть контакты
    Дом в Башкортостан, Уфа городской округ, с. Нагаево ул. Долгопрудная ... - Фото 1
    Дом в Башкортостан, Уфа городской округ, с. Нагаево ул. Долгопрудная ... - Фото 2
    2 этажа, общая площадь 118м², участок 6 соток

    CPОЧНO ДОМ BОЗЛЕ ШКОЛЫ Пpодaем качественный дом в Нагаево, по улице Долгопрудная, 20Выполнен качеcтвeнныx матеpиаловПлoщадь дoмa 118 кв.м., площадь земeльнoго участкa 6 сотoк. Haзначение земли - ИЖС.Отделка - практически чистовая отделка, максимально...
    • 2 эт.
    • 118 м²
    • 6 сот.
    9 000 000 Р
    Агент
    +7 (987) Показать номер
    Посмотреть контакты
    Дом в Башкортостан, Уфа городской округ, с. Нагаево ул. Михаила ... - Фото 1
    Дом в Башкортостан, Уфа городской округ, с. Нагаево ул. Михаила ... - Фото 2
    1 этаж, общая площадь 128м², участок 6 соток

    Объявление 44865. Продается кирпичный дом 125 м на участке 6,7 соток. Всё продумано за вас: Простор на 128 м: Большая гостиная, отдельные комнаты для каждого члена семьи. Никакой тесноты - только комфорт и уют. Ваш участок 6,76 соток: Здесь поместится...
    • 1 эт.
    • 128 м²
    • 6 сот.
    9 250 000 Р
    Агент
    +7 (987) Показать номер
    Посмотреть контакты

    Не нашли подходящего объявления?

    Оставьте заявку, и наши риэлторы подберут купить дом в районе Нагаево

    (0)