Россия, Республика Башкортостан, Нагаево, улица Михаила Дорохова, 119Ж
7 700 000 Р 98 430 $ или 83 610

Информация о коттедже

107 м2
Площадь
2
Этажность
6 cоток
Участок

Дополнительная информация

Дом продаётся вместе с участком
есть
Развернуть
Агент
+7 (987) 042-62-02
Начать чат с агентом

Дом в Башкортостан, Уфа городской округ, с. Нагаево ул. Михаила ...

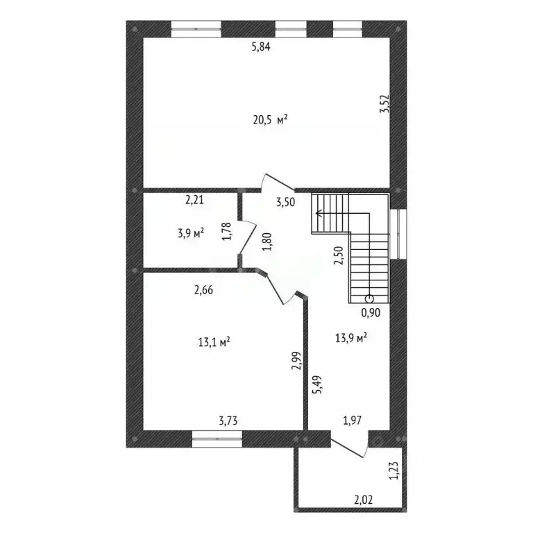
Новый двухэтажный дом общей площадью 112 кв.м, на участке 6сот., расположен в благоустроенном коттеджном поселке с закрытой территорией, управляющей компанией, круглосуточным видеонаблюдением и контролируемым въездом. Школьный автобус ездит до КП. Дом возведен из керамзитоблоков с облицовкой кирпичом и обладает высокими энергоэффективными характеристиками благодаря утеплению потолка минеральной ватой 200 мм и установке современных 70-мм стеклопакетов. Отопление и горячее водоснабжение обеспечиваются двухконтурным котлом.Планировка отличается продуманностью и функциональностью. На первом этаже расположена просторная прихожая 13.9 кв.м, отдельная кухня 12.9 кв.м, санузел и светлая гостиная 20.6 кв.м с выходом на собственную террасу.(терраса под освоение) На второй этаж ведет монолитная лестница, где находятся три изолированные спальни площадью 20.7 кв.м, 10.7 кв.м и 9.8 кв.м, а также вторая ванная комната. Состояние предчистовой отделки предоставляет возможность сразу приступить к финишным работам и создать интерьер, полностью отвечающий вашим личным предпочтениям и потребностям, без необходимости в капитальных вложениях. Объект готов к заселению и представляет собой выгодное решение для тех, кто ищет современное жилье для постоянного проживания с потенциалом для реализации собственных дизайнерских идей. Код пользователя: 188161Номер в базе: 9954484

Читать полностью

    Для того, чтобы купить 2-этажный коттедж по адресу: Нагаево, улица Михаила Дорохова, 119Ж, позвоните по телефону +7 (987) 042-62-02. Торопитесь! Объявление №50016465724 о продаже двухэтажного коттеджа опубликовано 21 декабря 2025.

    Позвонить Написать
    7 700 000 Р98 430 $ или 83 610
    Агент
    +7 (987) 042-62-02
    Начать чат с агентом
    Похожие предложения
    Дом в Башкортостан, Уфа городской округ, с. Нагаево ул. Михаила ... - Фото 1
    Дом в Башкортостан, Уфа городской округ, с. Нагаево ул. Михаила ... - Фото 2
    2 этажа, общая площадь 107м², участок 6 соток

    Дом на закрытой территории коттеджного поселка в НагаевоУчасток - 6 сотокПлощадь дома 107 м2Предчистовая отделкаХАРАКТЕРИСТИКА:Стены: - облицовочный кирпич 125 мм - утеплитель 100 мм - минеральная вата - керамзитоблок 300 мм- штукатурка по маякам под...
    • 2 эт.
    • 107 м²
    • 6 сот.
    7 800 000 Р
    Агент
    +7 (917) Показать номер
    Посмотреть контакты
    Дом в Башкортостан, Уфа городской округ, с. Нагаево ул. Михаила ... - Фото 1
    Дом в Башкортостан, Уфа городской округ, с. Нагаево ул. Михаила ... - Фото 2
    2 этажа, общая площадь 120м², участок 6 соток

    Продаётся двухэтажный коттедж в Нагаево от надежного застройщика Развитая инфраструктуа: дет.сады и школы(организован подвоз детей на школьной автобусе), магазины, аптеки, пвз, кофейни, салоны красоты и др.,всё для Вашей комфортной жизни Планировка:...
    • 2 эт.
    • 120 м²
    • 6 сот.
    7 600 000 Р
    Агент
    +7 (987) Показать номер
    Посмотреть контакты
    Дом в Башкортостан, Уфа городской округ, с. Нагаево 71А (115 м) - Фото 1
    Дом в Башкортостан, Уфа городской округ, с. Нагаево 71А (115 м) - Фото 2
    1 этаж, общая площадь 115м², участок 6 соток

    Продам дом Просторный дом площадью 115 м на участке 6,3 сотки предлагает готовую основу для создания современного жилого пространства под индивидуальные запросы. Качество строительства подтверждается применением надежных материалов: стены из керамзитоблока...
    • 1 эт.
    • 115 м²
    • 6 сот.
    7 800 000 Р
    Агент
    +7 (987) Показать номер
    Посмотреть контакты
    Дом в Башкортостан, Уфа городской округ, с. Нагаево ул. Багровая (125 ... - Фото 1
    Дом в Башкортостан, Уфа городской округ, с. Нагаево ул. Багровая (125 ... - Фото 2
    1 этаж, общая площадь 125м², участок 6 соток

    Продам дом Дом площадью 125 м расположен на благоустроенном участке в 6 соток. Материал стен — керамзитоблок с утеплителем минвата и облицовкой кирпичом, что обеспечивает высокую энергоэффективность. Кровля из металлочерепицы, фундамент — свайно-ростверковый....
    • 1 эт.
    • 125 м²
    • 6 сот.
    7 650 000 Р
    Агент
    +7 (987) Показать номер
    Посмотреть контакты
    Дом в Башкортостан, Уфа городской округ, с. Нагаево пер. Загадочный, ... - Фото 1
    Дом в Башкортостан, Уфа городской округ, с. Нагаево пер. Загадочный, ... - Фото 2
    1 этаж, общая площадь 105м², участок 6 соток

    Дом на полностью закрытой территории:-Автоматические откатные ворота открываются пультом-По периметру — надёжный забор-Фасадная часть и калитка — красивый евроштакетник-Участок 6,8 соток — ровный, ухоженныйДом построен на крепком свайно-ростверковом фундаменте,...
    • 1 эт.
    • 105 м²
    • 6 сот.
    7 700 000 Р
    Агент
    +7 (917) Показать номер
    Посмотреть контакты

    Не нашли подходящего объявления?

    Оставьте заявку, и наши риэлторы подберут купить дом в районе Нагаево

    (0)