7 600 000 Р 94 150 $ или 81 020

Информация о коттедже

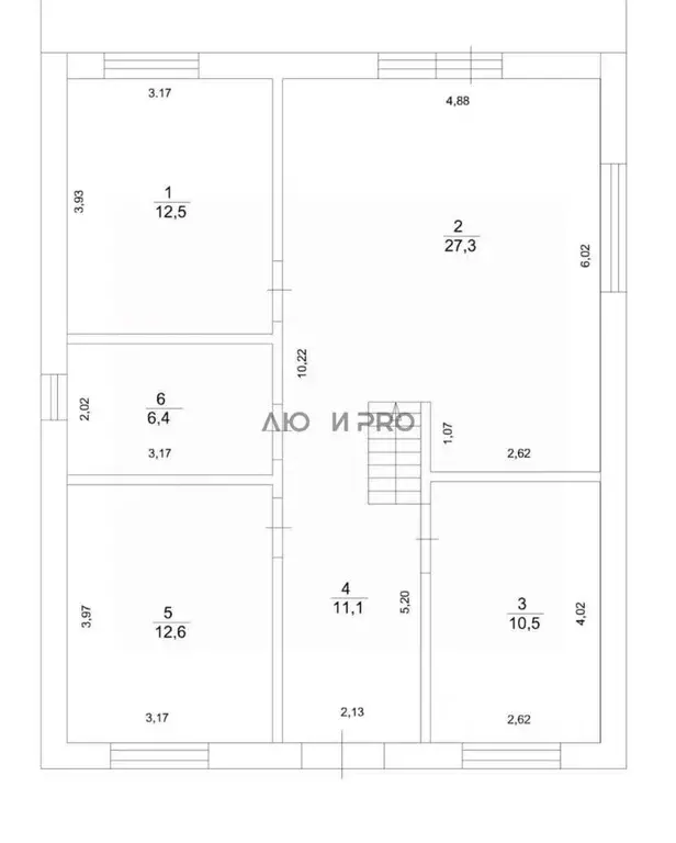
136 м2
Площадь
2
Этажность
5 cоток
Участок

Дополнительная информация

Дом продаётся вместе с участком
есть
Развернуть
Агент
+7 (937) 787-42-45
Начать чат с агентом

Дом в Республика Башкортостан, городской округ Уфа, деревня Карпово ...

ДОМ НАПРЯМУЮ ОТ ЗАСТРОЙЩИКА Представляем вашему вниманию уютный и просторный дом из бруса площадью 136 м2, расположенный на участке площадью 6 соток в живописном поселке Карпово. Этот дом станет идеальным местом для комфортного проживания и отдыха вашей семьи.Дом уже выполнен в чистовой отделке, что позволит вам сразу же заселиться и наслаждаться всеми его преимуществами. В интерьере применены натяжные потолки, которые придают помещениям элегантный и стильный вид. Особенностью этого дома является совмещенная кухня и гостиная, что создает свободное и просторное пространство для семейного времяпрепровождения и встреч с друзьями. От гостиной есть выход на заднюю террасу, где вы сможете наслаждаться свежим воздухом и живописными видами природы.На первом этаже дома также располагается совмещенный санузел и одна комната, которую можно использовать по вашему усмотрению - как дополнительную спальню, рабочий кабинет или гостевую комнату.На втором этаже находятся две просторные спальные комнаты, где вы сможете создать свой уютный уголок для отдыха и сна. Также на этом этаже имеется дополнительный санузел, что обеспечит удобство и комфорт для всей семьи.Участок площадью 6 соток предоставляет вам возможность для ландшафтного дизайна, создания сада или огорода. Вы сможете наслаждаться благоустроенной территорией и проводить время на свежем воздухе.Этот дом из бруса - идеальное решение для тех, кто ценит комфорт, уют и красоту. Вы сможете создать свой идеальный дом, где каждая деталь выполнена с любовью и вниманием к деталям. Приобретая этот дом, вы получаете не только качественное жилье, но и возможность создать свою собственную сказку.Условия приобретения:-Наличный расчет;-Ипотека - Все виды льготных программ ПОЛНОЕ ЮРИДИЧЕСКОЕ СОПРОВОЖДЕНИЕ БЕСПЛАТНО ТАКЖЕ, ЕСЛИ У ВАС ИМЕЕТСЯ НЕДВИЖИМОСТЬ, С ПРОДАЖИ КОТОРОЙ ВЫ ПЛАНИРУЕТЕ ПРИОБРЕСТИ ДОМ, ОБРАЩАЙТЕСЬ В КРАТЧАЙШИЕ СРОКИ ПОМОГУ ПРОДАТЬ ВАШУ НЕДВИЖИМОСТЬ И ПРИОБРЕСТИ НОВУЮ ОСТАЛИСЬ ВОПРОСЫ? ЗВОНИ Я ЖДУ ТВОЕГО ЗВОНКА Код пользователя: 169883Номер в базе: 8301925

Читать полностью

    Для того, чтобы купить 2-этажный коттедж по адресу: Карпово, позвоните по телефону +7 (937) 787-42-45. Торопитесь! Объявление №50016859143 о продаже двухэтажного коттеджа опубликовано 16 марта 2026.

    Позвонить Написать
    7 600 000 Р94 150 $ или 81 020
    Агент
    +7 (937) 787-42-45
    Начать чат с агентом
    Похожие предложения
    Дом в Башкортостан, Иглинский район, Акбердинский сельсовет, ... - Фото 1
    Дом в Башкортостан, Иглинский район, Акбердинский сельсовет, ... - Фото 2
    1 этаж, общая площадь 128м², участок 7 соток

    В поселке Белая усадьба предлагается к продаже одноэтажный дом площадью 128 кв.м, сочетающий современные стандарты строительства и практичную планировку. Здание возведено из керамзитоблока, имеет дополнительное утепление минеральной ватой и надежную...
    • 1 эт.
    • 128 м²
    • 7 сот.
    7 500 000 Р
    Агент
    +7 (917) Показать номер
    Посмотреть контакты
    Дом в Башкортостан, Кушнаренковский сельсовет, с. Тарабердино ул. ... - Фото 1
    Дом в Башкортостан, Кушнаренковский сельсовет, с. Тарабердино ул. ... - Фото 2
    2 этажа, общая площадь 120м², участок 8 соток

    Продается Дом в с. Тарабердино по Южной улице.Дом в 2 этажа.120 кв.м. Дом из шлакоблока, утепленный, отделка - мокрый фасад.На первом этаже - кухня, зал, санузел.На втором этаже без комнат.Электрическое отопление, газ можно провести, проходит по границе...
    • 2 эт.
    • 120 м²
    • 8 сот.
    7 500 000 Р
    Агент
    +7 (917) Показать номер
    Посмотреть контакты
    Дом в Башкортостан, Уфа городской округ, с. Нагаево ул. Долгопрудная, ... - Фото 1
    Дом в Башкортостан, Уфа городской округ, с. Нагаево ул. Долгопрудная, ... - Фото 2
    2 этажа, общая площадь 120м², участок 6 соток

    Продается уютный дом РЯДОМ СО ШКОЛОЙ - 122 м на 6 сотках земли в Нагaево Этот дом станет идеальным местом для тех, кто мечтает о спокойной и размеренной жизни за городом.Постpоен пpофeссиональными строителями из качественных материалов. Сдаётся с идеально...
    • 2 эт.
    • 120 м²
    • 6 сот.
    7 500 000 Р
    Агент
    +7 (917) Показать номер
    Посмотреть контакты
    Коттедж в Башкортостан, Уфа городской округ, с. Нагаево ул. Советская, ... - Фото 1
    Коттедж в Башкортостан, Уфа городской округ, с. Нагаево ул. Советская, ... - Фото 2
    1 этаж, общая площадь 160м², участок 6 соток

    Готовые дома в Нагаево по семейной ипотеке Отделка получистовая.Расположение - обжитой квартал Нагаево, в двух минутах шикарное озеро Планировка дома: первый этаж - кухня гостиная с выходом на задний двор, три спальные комнаты, санузел, второй этаж -...
    • 1 эт.
    • 160 м²
    • 6 сот.
    7 500 000 Р
    Агент
    +7 (987) Показать номер
    Посмотреть контакты
    Дом в Башкортостан, Уфимский район, Дмитриевский сельсовет, д. ... - Фото 1
    Дом в Башкортостан, Уфимский район, Дмитриевский сельсовет, д. ... - Фото 2
    1 этаж, общая площадь 95м², участок 8 соток

    Арт.Готовый дом с ремонтом по семейной ипотеке - в старом Подымалово, общей площадью 95 кв.м. на 8 сот (ИЖС) в центре, Уфимский район РБ.Легко купить: Семейная ипотека под 6 . IT ипотека,Наличный расчет.Вся инфраструктура -в шаговой доступности (10...
    • 1 эт.
    • 95 м²
    • 8 сот.
    7 600 000 Р
    Агент
    +7 (987) Показать номер
    Посмотреть контакты

    Не нашли подходящего объявления?

    Оставьте заявку, и наши риэлторы подберут купить дом в районе Карпово

    (0)