3 996 000 Р 49 500 $ или 43 150

Информация о квартире

33 м2
Площадь
20 м2
Жилая
3 м2
Кухня
1
Комната
13
Этаж
14
Этажность

Дополнительная информация

Тип дома
кирпичный
Развернуть
Агент
+7 (977) 095-45-49
Начать чат с агентом

1-к кв. Башкортостан, Стерлитамакский район, Отрадовский сельсовет, с. ...

Компактная евро-однокомнатная квартира площадью 33,3 кв.м., в которой есть всё необходимое для жизни одного или двоих человек. Светлая кухня-гостиная площадью 15,5 кв.м., в которой воплотились смелые мечты о кухонном гарнитуре перед большим окном, сквозь который проникает много солнечных лучей. Спальня 8,5 кв.мм. с теплой лоджией 2,3 кв.м., которую можно присоединить к площади спальни после ввода дома в эксплуатацию, либо оставить рабочее место, кабинет или место хранения.Совмещенный санузел 3,4 кв.м.Добро пожаловать в жилой дом Тора-Тау Здесь каждый найдёт то, что ценит больше всего: комфорт, безопасность, простор и возможности для обустройства своего идеального жилья. Тора-Тау — часть жилого комплекса Квартал Шиханы , где современные тенденции в строительстве сочетаются с заботой о жителях.Почему стоит выбрать Тора-Тау ?В доме Тора-Тау вы сможете ощутить себя частью большого и дружелюбного сообщества, где ценятся комфорт и забота о близких. Не упустите возможность стать владельцем квартиры в этом прекрасном доме Свяжитесь с нами сегодня, чтобы узнать больше информации и выбрать свою идеальную квартиру в Тора-Тау .

Читать полностью
    Позвонить Написать
    3 996 000 Р49 500 $ или 43 150
    Агент
    +7 (977) 095-45-49
    Начать чат с агентом
    Похожие предложения
    1-к кв. Башкортостан, Стерлитамакский район, Отрадовский сельсовет, с. ... - Фото 1
    1-к кв. Башкортостан, Стерлитамакский район, Отрадовский сельсовет, с. ... - Фото 2
    1-комнатная квартира, общая площадь 33м², жилая 20м², кухня 3м²

    Компактная евро-однокомнатная квартира площадью 33,3 кв.м., в которой есть всё необходимое для жизни одного или двоих человек. Светлая кухня-гостиная площадью 15,5 кв.м., в которой воплотились смелые мечты о кухонном гарнитуре перед большим окном, сквозь...
    • 33 м²
    • 1-ком
    • 12/14 эт.
    • кирпичный
    3 996 000 Р
    Агент
    +7 (977) Показать номер
    Посмотреть контакты
    1-к кв. Башкортостан, Стерлитамакский район, Отрадовский сельсовет, с. ... - Фото 1
    1-к кв. Башкортостан, Стерлитамакский район, Отрадовский сельсовет, с. ... - Фото 2
    1-комнатная квартира, общая площадь 33м², жилая 20м², кухня 3м²

    Компактная евро-однокомнатная квартира площадью 33,3 кв.м., в которой есть всё необходимое для жизни одного или двоих человек. Светлая кухня-гостиная площадью 15,5 кв.м., в которой воплотились смелые мечты о кухонном гарнитуре перед большим окном, сквозь...
    • 33 м²
    • 1-ком
    • 14/14 эт.
    • кирпичный
    3 996 000 Р
    Агент
    +7 (977) Показать номер
    Посмотреть контакты
    1-к кв. Башкортостан, Уфимский район, Зубовский сельсовет, с. Зубово ... - Фото 1
    1-к кв. Башкортостан, Уфимский район, Зубовский сельсовет, с. Зубово ... - Фото 2
    1-комнатная квартира, общая площадь 35м², жилая 14м², кухня 9м²

    Старт продаж квартир в новом литере Рассвет загородного жилого комплекса Зубово Life Garden от застройщика ГК Жилой Квартал . Ваше семейное пространство в Зубово. Продается 1-к квартира 35.27 кв. м.: - 1-й этаж - жилая площадь 14.77 кв. м., кухня...
    • 35 м²
    • 1-ком
    • 1/12 эт.
    • кирпичный
    4 007 025 Р
    Агент
    +7 (989) Показать номер
    Посмотреть контакты
    1-к кв. Башкортостан, Уфимский район, Зубовский сельсовет, с. Зубово ... - Фото 1
    1-к кв. Башкортостан, Уфимский район, Зубовский сельсовет, с. Зубово ... - Фото 2
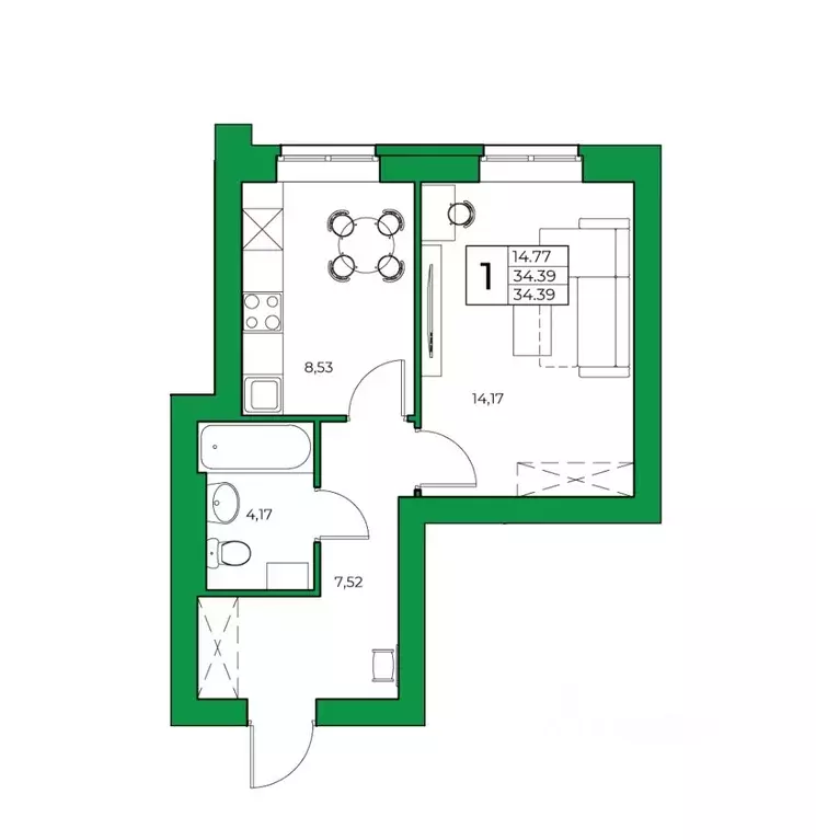
    1-комнатная квартира, общая площадь 34м², жилая 14м², кухня 8м²

    Старт продаж квартир в новом литере Рассвет загородного жилого комплекса Зубово Life Garden от застройщика ГК Жилой Квартал . Ваше семейное пространство в Зубово. Продается 1-к квартира 34.39 кв. м.: - 2-й этаж - жилая площадь 14.17 кв. м., кухня...
    • 34 м²
    • 1-ком
    • 2/12 эт.
    • кирпичный
    4 010 218 Р
    Агент
    +7 (989) Показать номер
    Посмотреть контакты
    1-к кв. Башкортостан, Уфимский район, Зубовский сельсовет, с. Зубово ... - Фото 1
    1-к кв. Башкортостан, Уфимский район, Зубовский сельсовет, с. Зубово ... - Фото 2
    1-комнатная квартира, общая площадь 34м², жилая 14м², кухня 8м²

    Старт продаж квартир в новом литере Рассвет загородного жилого комплекса Зубово Life Garden от застройщика ГК Жилой Квартал . Ваше семейное пространство в Зубово. Продается 1-к квартира 34.39 кв. м.: - 1-й этаж - жилая площадь 14.17 кв. м., кухня...
    • 34 м²
    • 1-ком
    • 1/12 эт.
    • кирпичный
    3 941 438 Р
    Агент
    +7 (989) Показать номер
    Посмотреть контакты

    Не нашли подходящего объявления?

    Оставьте заявку, и наши риэлторы подберут квартиру в новостройке в районе Мариинского

    (0)