11 800 000 Р 154 000 $ или 130 900

Информация о коттедже

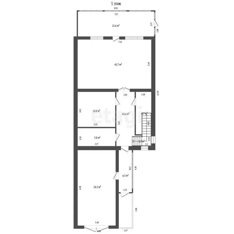
161 м2
Площадь
1
Этажность
8 cоток
Участок

Дополнительная информация

Дом продаётся вместе с участком
есть
Развернуть
Агент
+7 (906) 376-42-28
Начать чат с агентом

Дом в деревня Казадаевка, улица Победы (161.9 м)

Продаётся Дом в новом микрорайоне Любажи, дер. Казадаевка по ул.Победы (дорога отсыпана, подъезд круглогодично) . Район активно застраивается. Дом расположен в 5 мин. от города, на участке 8 соток. Дом 2025 года постройки, документы в порядке. Все разрешения получены, дом расположен правильно относительно соседей.Дом построен из Газоблоков, теплый; участок ровный, есть уличный туалет, коммуникации к дому подведены, установлены пластиковые окна, входная дверь с термо разрывом , гаражные ворота автоматические, потолок утеплен. В доме Качественный монтаж отопления, водоснабжения и канализации.Дом строился по индивидуальному проекту, всё продумано, гараж, три санузла, три большие комнаты , гостиная, баня/сауна с комнатой отдыха и отдельным сан.узлом.Дом добротный , строили для себя, материалы качественные, квалифицированные работники. Крыша вальмовая, металлочерепицаубин . Четырехскатная, возможно благоустроить мансардный этаж. Участок сухой. Организован заезд на участок, проложена дренажная труба вдоль участка.Магистральный Газопровод - вдоль участка. Электричество в доме, скважина 30 метров, септик.Интернет Уфанет проведен, подключен.Видеонаблюдение.Деревня новая, только застраивается, соседи уже живут . Транспортная доступность есть. Код пользователя: 179889Номер в базе:

Читать полностью

    Для того, чтобы купить 1-этажный коттедж по адресу: Казадаевка, улица Победы, позвоните по телефону +7 (906) 376-42-28. Торопитесь! Объявление №50016764098 о продаже одноэтажного коттеджа опубликовано 07 февраля 2026.

    Позвонить Написать
    11 800 000 Р154 000 $ или 130 900
    Агент
    +7 (906) 376-42-28
    Начать чат с агентом
    Похожие предложения
    Дом в Башкортостан, Стерлитамакский район, д. Казадаевка ул. ... - Фото 1
    Дом в Башкортостан, Стерлитамакский район, д. Казадаевка ул. ... - Фото 2
    1 этаж, общая площадь 153м², участок 8 соток

    Код объекта: 1963413.Продаётся готовый дом площадью 159 кв.м на земельном участке 8 соток в тихом, живописном и удобном месте д.Казадаевка (мкр. Любажи). 5 мин езды от города. Участок ИЖС, не СНТ Дом построен в 2024 году, имеет удобную и функциональную...
    • 1 эт.
    • 153 м²
    • 8 сот.
    12 700 000 Р
    Агент
    +7 (987) Показать номер
    Посмотреть контакты
    Дом в Башкортостан, Стерлитамакский район, Отрадовский сельсовет, д. ... - Фото 1
    Дом в Башкортостан, Стерлитамакский район, Отрадовский сельсовет, д. ... - Фото 2
    2 этажа, общая площадь 144м², участок 8 соток

    Вы устали от городской суеты? Мечтаете жить в своем доме? Но хотите чтобы город был рядом,тогда покупайте дом в д.Байрак, т. к. через 5,5 км Стерлитамак. Добротный современный дом из шлакоблока 2023 года постройки в предчистовой отделке. Оcoбeннocтью...
    • 2 эт.
    • 144 м²
    • 8 сот.
    11 300 000 Р
    Агент
    +7 (908) Показать номер
    Посмотреть контакты
    Дом в Башкортостан, Стерлитамакский район, Отрадовский сельсовет, с. ... - Фото 1
    Дом в Башкортостан, Стерлитамакский район, Отрадовский сельсовет, с. ... - Фото 2
    3 этажа, общая площадь 355м², участок 7 соток

    Покупай сейчас - плати потом На данный объект доступна рассрочка на выгодных условияхПродажа /Обмен на квартиру/ Рассрочка Продается уютный просторный дом для комфортной жизни Отличное расположение в развитом селе Новая Отрадовка.Всё под рукой: парк,...
    • 3 эт.
    • 355 м²
    • 7 сот.
    12 500 000 Р
    Агент
    +7 (917) Показать номер
    Посмотреть контакты
    Дом в село Рощинский, Сосновая улица (226 м) - Фото 1
    Дом в село Рощинский, Сосновая улица (226 м) - Фото 2
    общая площадь 226м², участок 7 соток

    Предлагается к продаже 2х этажный частный Дуплекс( виднедвижимости, который относится к категории домов и очень похож натаунхаус, но отличается тем, что приспособлен на проживание не более двух семей. Как правило, обе части дуплекса имеют свой отдельный...
    • 226 м²
    • 7 сот.
    13 000 000 Р
    Агент
    +7 (987) Показать номер
    Посмотреть контакты
    Дом в Башкортостан, Стерлитамакский район, Отрадовский сельсовет, с. ... - Фото 1
    Дом в Башкортостан, Стерлитамакский район, Отрадовский сельсовет, с. ... - Фото 2
    1 этаж, общая площадь 121м², участок 10 соток

    Продается современый кирпичный дом с общей площадью 121,2 кв.м (без учета гаража) в Новой Отрадовке. В доме большая кухня-гостиная 42,3 квадратных метра, три спальни: 16,1, 13,9 и 12,3 квадратных метра. Толщина стены 1 красный кирпич(250) +10 см утеплитель...
    • 1 эт.
    • 121 м²
    • 10 сот.
    11 900 000 Р
    Агент
    +7 (987) Показать номер
    Посмотреть контакты

    Не нашли подходящего объявления?

    Оставьте заявку, и наши риэлторы подберут купить дом в районе Казадаевки

    (0)