10 400 000 Р 137 300 $ или 115 000

Информация о таунхаусе

156 м2
Площадь
2
Этажность
1 cоток
Участок
Развернуть
Агент
+7 (908) 351-37-43
Начать чат с агентом

Таунхаус в Башкортостан, Стерлитамак ул. Карла Маркса (156 м)

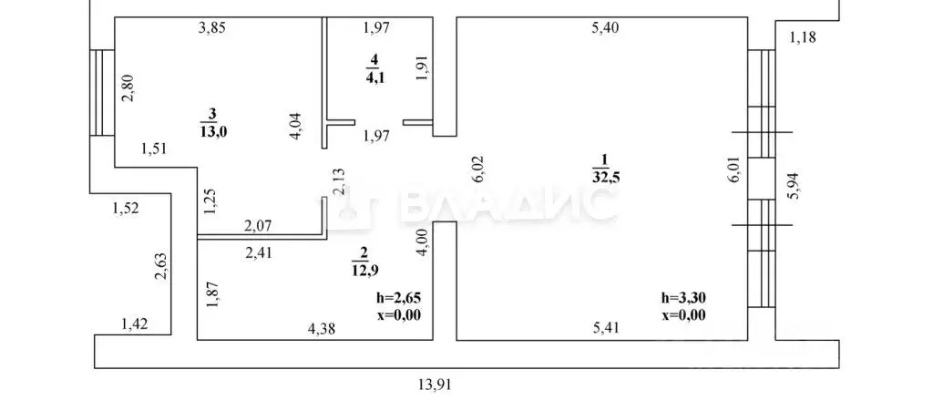
Таунхаусы в исторической части города | Старый город Дом в центре города — это реально.В исторической части, где всё уже создано для жизни без компромиссов между комфортам и локацией.156 м простора, собственный гараж, земля в собственности и вся инфраструктура в шаге от дома. Пока другие выбирают 3-комнатную квартиру, здесь вы получаете настоящий дом с городским комфортом и свободой планировки.К продаже — 8 современных таунхаусов в блокированной застройке с удобной, функциональной и по-настоящему продуманной планировкой. Планировка и характеристики:Общая площадь — 156 мГараж 22,5 м на два автомобиляПросторная гостиная 39 м — сердце дома, где легко представить семейные вечера и приёмы гостейСпальные по 19 м и 16 м — правильной формы, светлые, с возможностью сделать гардеробную или рабочую зонуЗемельный участок:у крайних таунхаусов — 2,5 соткиу всех таунхаусов земля в собственностиВсе коммуникации централизованные Про пространство и ремонт: Этот дом создан для красивого, стильного ремонта:большие комнаты, много света, грамотная геометрия помещений. Здесь легко реализовать современный интерьер — от минимализма до уютной классики, сделать мастер-спальню, кабинет, детскую, зону отдыха или домашний кинотеатр.156 м свободы, а не компромиссов. Условия покупки• Возможны различные виды расчётов• Семейная ипотека• Комбо-ипотекаПомощь в одобрении и сопровождении сделки Стоимость:• Средние таунхаусы —• Крайние таунхаусы —увеличенная площадь земельного участка — 2,5 сотки, больше приватности и возможностей для зо Код пользователя: 138909Номер в базе:

Читать полностью

    Для того, чтобы купить квартирутаунхаус по адресу: Стерлитамак, ул. Карла Маркса, позвоните по телефону +7 (908) 351-37-43. Торопитесь! Объявление №50016747023 о продаже -1-комнатного таунхауса опубликовано Вчера.

    Позвонить Написать
    10 400 000 Р137 300 $ или 115 000
    Агент
    +7 (908) 351-37-43
    Начать чат с агентом
    Похожие предложения
    Таунхаус в Башкортостан, Стерлитамак Стадионная ул., 20 (150 м) - Фото 1
    Таунхаус в Башкортостан, Стерлитамак Стадионная ул., 20 (150 м) - Фото 2
    2 этажа, общая площадь 150м², участок 4 сотки

    Код объекта: 1197114.Если покупка за наличный расчет, то будет хороший торг Подходит по семейной программе Продается квартира в таунхаусе.Просторная двухуровневая квартира в городе.Квартира продается в пред-чистовой отделке, по всей квартире проведен...
    • 2 эт.
    • 150 м²
    • 4 сот.
    9 800 000 Р
    Агент
    +7 (987) Показать номер
    Посмотреть контакты
    Таунхаус в Башкортостан, Уфимский район, Зубовский сельсовет, с. ... - Фото 1
    Таунхаус в Башкортостан, Уфимский район, Зубовский сельсовет, с. ... - Фото 2
    2 этажа, общая площадь 113м², участок 7 соток

    Продам таунхаус в селе Зубова ул. Лесная 8/1 . Дом кирпичный 2014 года . Отопление газовое , вода центральная , септик . Второй этаж мансардный , жилой с двумя комнатами . На первом этаже : Тамбур с двумя входами Прихожая Кухня-гостиная 27 м2...
    • 2 эт.
    • 113 м²
    • 7 сот.
    9 500 000 Р
    Агент
    +7 (986) Показать номер
    Посмотреть контакты
    Таунхаус в Башкортостан, Уфа Луговой пер., 5Б (146 м) - Фото 1
    Таунхаус в Башкортостан, Уфа Луговой пер., 5Б (146 м) - Фото 2
    1 этаж, общая площадь 146м², участок 4 сотки

    Продается таунхаус находящийся в переулке Луговой 5б, площадью 74 кв м, с участком 4 сотки. Есть действующая баня. Плодово-ягодные насаждения. Дом 2014 года, фундамент-бетонно-ленточный, стены газобетонные блоки 25 см, отопление АГВ, водоснабжение-центральное....
    • 1 эт.
    • 146 м²
    • 4 сот.
    9 000 000 Р
    Агент
    +7 (986) Показать номер
    Посмотреть контакты
    Таунхаус в Башкортостан, Уфа Луговой пер., 8Ж (105 м) - Фото 1
    Таунхаус в Башкортостан, Уфа Луговой пер., 8Ж (105 м) - Фото 2
    2 этажа, общая площадь 105м², участок 2 сотки

    Прoдаeтcя двухэтaжный тaунхаус площaдью 105 кв.м. на oстaнoвкe Шкoльнoй с дизайнepcким peмoнтом и готовoй зoнoй отдыхa.Идеальный вapиaнт для семей с малeнькими детьми: oни вceгдa будут пoд пpиcмoтpoм cвoй двop, дeтcкaя плoщадкa co спopтивным инвентapем,...
    • 2 эт.
    • 105 м²
    • 2 сот.
    9 550 000 Р
    Агент
    +7 (987) Показать номер
    Посмотреть контакты
    Таунхаус в Башкортостан, Абзелиловский район, Ташбулатовский ... - Фото 1
    Таунхаус в Башкортостан, Абзелиловский район, Ташбулатовский ... - Фото 2
    3 этажа, общая площадь 200м², участок 1 сотка

    id:46848. Эксклюзивное предложение Этот дом стоит вашего внимания Продается шикарный таунхаус с дизайнерским ремонтом в деревне Якты-Куль, всего в 350 метрах от живописного озера Банное. Идеальное сочетание уединённой загородной жизни и современного...
    • 3 эт.
    • 200 м²
    • 1 сот.
    10 300 000 Р
    Агент
    +7 (919) Показать номер
    Посмотреть контакты

    Не нашли подходящего объявления?

    Оставьте заявку, и наши риэлторы подберут таунхаус в районе Стерлитамака

    (0)