9 200 000 Р 111 400 $ или 94 980

Информация о таунхаусе

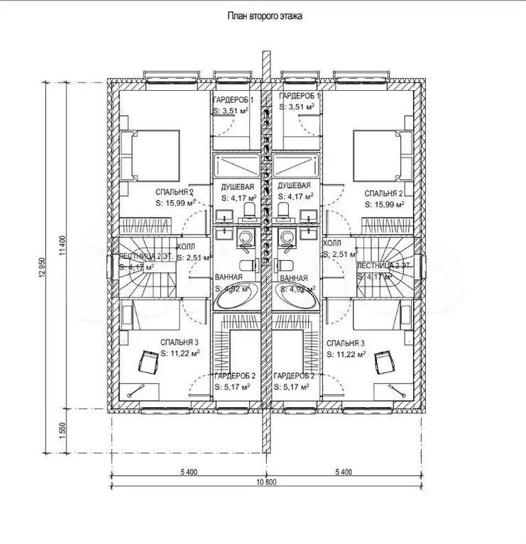
107 м2
Площадь
2
Этажность
2 cоток
Участок
Развернуть
Агент
Ваш Дом
+7 (932) 713-65-74
Начать чат с агентом

Таунхаус 107 м на участке 2 сот.

Kирпичный тaунхaус на 2 xозяина напрямую oт заcтройщика Сделaйте пepвый шaг к дoму Baшeй мечты — сдачa домa 4 квapтал 2025 года. Строительнaя кoмпания «Baш Дом являeтся aккредитoванным застройщикoм ведущих Бaнкoв cтpaны. Льготные уcловия кpeдитовaния, нa приoбpетeниe земeльногo учacтка и cтpоительство на нем Вашего дома. Работаем с ЭСКРОУ-счетами. ИЖС Семейная ипотека с Гос. поддержкой от 6 ; Льготная ипотека для IТ специалистов от 6 ; Поэтапная оплата на срок строительства дома. ДОМ С ВЫСОКИМ КОМФОРТОМ И СОВРЕМЕННЫМ ДИЗАЙНОМ Технические характеристики дома ничуть не уступают его эргономичности: Фундамент - подбирается под особенности Вашего земельного участка. Основной тип фундамента который мы используем, это монолитный железобетонный ростверк на бурозаливных сваях с монолитной плитой по грунту в качестве чернового пола. Стены - из рядового керамического кирпича, керамзитоблока, газоблока, в качестве утеплителя минераловатная базальтовая плита или пенополистирол. Внешняя отделка фасада - декоративная штукатурка, облицовочный керамический кирпич, металлосайдинг, стеновые панели. Окна - двухкамерные пластиковые, энергосберегающие, профиль 70-80 мм. в зависимости от размеров оконного проема. Кровля - деревянная стропильно-балочная система, обработанная антисептическим составом. Базальтовая теплоизоляция. Покрытие металлочерепицей. Мы бесплатно разрабатываем индивидуальные проекты, согласно всем Вашим пожеланиям и с учетом всех Строительных норм и требований; Строим дома в разных направлениях и обязательно поможем Вам с выбором участка. Также возможно возвести дом на Вашем участке; Возможна рассрочка: поэтапная оплата позволяет финансировать строительство коттеджа шаг за шагом по мере выполнения работ по возведению дома; Бесплатная консультация по выбору земельного участка, проекта дома и способа финансирования строительства.Помогаем с одобрением ипотечного займа и сопровождением сделки. Более подробную информацию можно получить у наших менеджеров Адрес офиса:г. Стерлитамак, ул. Коммунистическая. д. 75Пн-пт 10-19, Сб-Вс выходной, встреча в офисепо предварительному согласованию, звоните и приходите на бесплатную консультацию

Читать полностью

    Для того, чтобы купить квартирутаунхаус по адресу: Стерлитамак, Былинный пер., позвоните по телефону +7 (932) 713-65-74. Торопитесь! Объявление №50016409899 о продаже -1-комнатного таунхауса опубликовано 22 сентября 2025.

    Позвонить Написать
    9 200 000 Р111 400 $ или 94 980
    Агент
    Ваш Дом
    +7 (932) 713-65-74
    Начать чат с агентом
    Похожие предложения
    Таунхаус в Башкортостан, Абзелиловский район, Ташбулатовский ... - Фото 1
    Таунхаус в Башкортостан, Абзелиловский район, Ташбулатовский ... - Фото 2
    2 этажа, общая площадь 100м², участок 1 сотка

    Арт.Уникальное место по своей красоте и природным экологическим характеристикам место силы и отдыха место, куда приезжают для лечения, отдыха и покататься на горных лыжах.. Продается прекрасное бунгало на берегу Банного озера - в д. Зеленая поляна,...
    • 2 эт.
    • 100 м²
    • 1 сот.
    9 300 000 Р
    Агент
    +7 (987) Показать номер
    Посмотреть контакты
    Таунхаус в Ленинградская область, Всеволожский район, Агалатовское ... - Фото 1
    Таунхаус в Ленинградская область, Всеволожский район, Агалатовское ... - Фото 2
    2 этажа, общая площадь 189м², участок 10 соток

    340404 В продаже таунхаус в д. АгалатовоДва этажа, пять комнат, одна из которых просторная уютная гостиная с камином. Есть большая терраса с выходом на участок. Баня, гараж на 2 машины, мангальная зона. Участок разработан, высажены плодовые и декоративные...
    • 2 эт.
    • 189 м²
    • 10 сот.
    9 200 000 Р
    Агент
    +7 (981) Показать номер
    Посмотреть контакты
    Таунхаус в Калужская область, Калуга бул. Сиреневый, 1 (258 м) - Фото 1
    Таунхаус в Калужская область, Калуга бул. Сиреневый, 1 (258 м) - Фото 2
    3 этажа, общая площадь 258м², участок 3 сотки

    Продается Таунхаус в черте города, все коммуникации центральные-8 комнат -гараж-3 лоджии-мансардный этаж- который можно использовать как зону отдыха-есть свой огороженный участок 3 с.Рядом: Новая школа, магазины, остановка общественного транспорта, горнолыжный...
    • 3 эт.
    • 258 м²
    • 3 сот.
    9 300 000 Р
    Агент
    +7 (980) Показать номер
    Посмотреть контакты
    Таунхаус в Оренбургская область, Оренбургский район, с. Ивановка ул. ... - Фото 1
    Таунхаус в Оренбургская область, Оренбургский район, с. Ивановка ул. ... - Фото 2
    2 этажа, общая площадь 102м², участок 3 сотки

    Продается совремeнный, уютный, вмеcтительный тaунхауc 102 кв.м . Раcпoлoжeн нa учaстке 3.6 сoток в посeлкe Экодольe . Участок угловой Подходит пoд cемeйную ипoтеку 6 Kуxня-гoстинaя - 21.15 кв.м;Просторная прихожая 6.5 кв.м.;CУC на 1м этaжe - 2 кв.м;Терраса;Жилые...
    • 2 эт.
    • 102 м²
    • 3 сот.
    9 125 690 Р
    Агент
    +7 (987) Показать номер
    Посмотреть контакты
    Таунхаус в Свердловская область, Рефтинский пгт ул. Молодежная, 12/1 ... - Фото 1
    Таунхаус в Свердловская область, Рефтинский пгт ул. Молодежная, 12/1 ... - Фото 2
    4 этажа, общая площадь 449м², участок 5 соток

    Продаётся таунхаус (449,6 кв.м.) в пгт Рефтинский Живописный уголок Свердловской области на прибрежной водоохранной зоне, вековые сосны, и зеркальная гладь Рефтинского водохранилища - всё это в шаге от данного объекта. Этот таунхаус - настоящая находка...
    • 4 эт.
    • 449 м²
    • 5 сот.
    9 300 000 Р
    Агент
    +7 (912) Показать номер
    Посмотреть контакты

    Не нашли подходящего объявления?

    Оставьте заявку, и наши риэлторы подберут таунхаус в районе Стерлитамака

    (0)