Реализация объекта недвижимости приостановлена

Информация о квартире

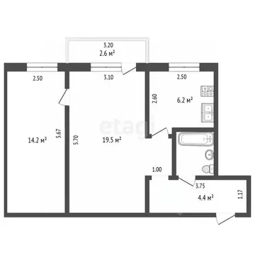
42.0 м2
Площадь
29.0 м2
Жилая
5.0 м2
Кухня
2
Комнаты
6
Этаж
9
Этажность
Развернуть

2-комнатная квартира: Стерлитамак, проспект Ленина, 53 (42.3 м)

Солнечная двухкомнатная квартира в кирпичном доме в центре Чистая продажа, 1 собственникПродается светлая и теплая квартира в престижном кирпичном доме в самом центре города Идеальный вариант как для проживания, так и для выгодных инвестиций.О квартире:• Светлая, теплая, уютная планировка.• Большой зал с выходом из зала — очень удобно и просторно.• Полная юридическая чистота: один взрослый собственник, никто не прописан и не проживает.• Документы полностью готовы к сделке, обременений нет.О доме и соседях:• Тихий кирпичный дом.• Соседи — спокойные, дружные, приятные люди.• Дружелюбная атмосфера, никаких конфликтов.Местоположение (все в шаговой доступности):• Школа, детские сады, поликлиника — буквально рядом с домом.• 2 драматических театра, университет, лучшие рестораны города.• Развитая инфраструктура для жизни.• Остановка общественного транспорта в 2 минутах ходьбы.Почему стоит купить эту квартиру:Это не просто квартира — это готовая среда для жизни. Вам не нужно ждать, пока построят садик или школу — они уже работают рядом. Отличная локация для сдачи в аренду или для собственного проживания.Звоните сейчас Покажу квартиру в любое удобное для вас время. Код пользователя: 179889Номер в базе:

Читать полностью

    Реализация объекта недвижимости приостановлена

    Не нашли подходящего объявления?

    Оставьте заявку, и наши риэлторы подберут квартиру в районе Стерлитамака

    (0)