Реализация объекта недвижимости приостановлена

Информация о квартире

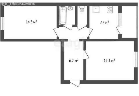
51.0 м2
Площадь
30.0 м2
Жилая
8.0 м2
Кухня
2
Комнаты
4
Этаж
9
Этажность
Развернуть

2-комнатная квартира: Стерлитамак, улица Артёма, 21А (51.1 м)

Продается двухкомнатная квартира общей площадью 51,1 кв. м на четвертом этаже в кирпичном доме. Квартира характеризуется выгодной планировкой: изолированные комнаты, просторная кухня 8,1 кв. м и застекленная лоджия. Высота потолков 2,7 метра и окна, выходящие на солнечную сторону во двор, обеспечивают помещение большим количеством естественного света в течение всего дня. Объект находится в отличном состоянии: установлены новые пластиковые окна, проведен качественный косметический ремонт, что позволяет новым владельцам заехать сразу после покупки.Ключевым преимуществом является исключительная локация. Дом расположен в спокойном, ухоженном дворе без магистралей и шума. В шаговой доступности сосредоточена вся необходимая инфраструктура: остановка общественного транспорта, торговый центр «Сити Молл , фитнес-клуб, рестораны, детский сад, а также здания городской администрации и налоговой службы. Район идеально подходит для комфортной жизни с полным набором услуг в непосредственной близости.Объект предлагается к продаже от единственного собственника, что гарантирует юридическую чистоту и безопасность предстоящей сделки. Для покупателей доступны все варианты расчетов, включая оформление ипотеки с сопровождением на всех этапах. Это рациональное предложение для тех, кто ищет качественное жилье в развитом районе без необходимости вложения средств в ремонт и с мгновенным заселением. Код пользователя: 179889Номер в базе: 9835851

Читать полностью

    Реализация объекта недвижимости приостановлена

    Не нашли подходящего объявления?

    Оставьте заявку, и наши риэлторы подберут квартиру в районе Стерлитамака

    (0)