4 900 000 Р 60 580 $ или 52 470

Информация о коттедже

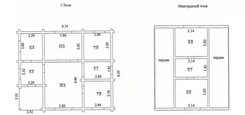
97 м2
Площадь
1
Этажность
8 cоток
Участок

Дополнительная информация

Дом продаётся вместе с участком
есть
Развернуть
Агент
+7 (917) 480-70-79
Начать чат с агентом

Дом в Башкортостан, Стерлитамак Белорецкий тракт (97 м)

Продается уютный и тёплый дом в спокойном, тихом районе города Идеальное предложение для тех, кто ценит комфорт загородной жизни с городскими удобствами.О доме: Площадь дома: 97 кв.м. Участок: 8 соток, ухоженный, есть место для сада, огорода и зоны отдыха. Коммуникации: Все необходимое для жизни уже подключено Газ (основное отопление — экономично и комфортно) Скважина (собственный источник чистой воды) Электричество Канализация — выгребная яма. ИнтернетКлючевые преимущества: Полная инфраструктура на участке: Вам не нужно ничего достраивать Большой кирпичный гараж. Баня — место для отдыха в любое время года. Сарай — для хранения инструмента и урожая. Тихий и спокойный район с доброжелательными соседями. Отсутствие шума и суеты, идеально для семей с детьми.Район с развитой инфраструктурой, спокойный и зелёный. Рядом школа, детский сад, магазины и аптеки.Звоните, чтобы назначить просмотр и оценить все преимущества этого жилья Торг уместен.Площадь дома 97 кв.м.Площадь участка 8 сотокКоммуникации Газ, электричество, скважина, выгребная ямаДоп. постройки Гараж, баня, сарайРайон Тихий, спокойный. Код пользователя: 190426Номер в базе: 9958358

Читать полностью

    Для того, чтобы купить 1-этажный коттедж по адресу: Стерлитамак, Белорецкий тракт, позвоните по телефону +7 (917) 480-70-79. Торопитесь! Объявление №50016510685 о продаже одноэтажного коттеджа опубликовано 31 октября 2025.

    Позвонить Написать
    4 900 000 Р60 580 $ или 52 470
    Агент
    +7 (917) 480-70-79
    Начать чат с агентом
    Похожие предложения
    Дом в Башкортостан, Стерлитамак пер. Юсупова (110 м) - Фото 1
    Дом в Башкортостан, Стерлитамак пер. Юсупова (110 м) - Фото 2
    1 этаж, общая площадь 109м², участок 5 соток

    Дом в микрорайоне Сайгановка по ул. Юсупова расположен на берегу реки Стерли. Общая площадь дома — 110 кв. м, высота потолков — 2,8 м, что создает ощущение простора. Здание построено вгодах, стены выполнены из бревна с кирпичной облицовкой, что гарантирует...
    • 1 эт.
    • 109 м²
    • 5 сот.
    4 900 000 Р
    Агент
    +7 (917) Показать номер
    Посмотреть контакты
    Дом в Башкортостан, Стерлитамак Ромашка СНТ, 74 (80 м) - Фото 1
    Дом в Башкортостан, Стерлитамак Ромашка СНТ, 74 (80 м) - Фото 2
    2 этажа, общая площадь 80м², участок 5 соток

    Код объекта: 1736866. Срочно продаём уютный и тёплый дом за Ашкадаром Этот двухэтажный блочный дом 5*5,5+2м построен в 2024 году. Здесь уже выполнен качественный чистовой ремонт, что позволит вам сразу заселиться и наслаждаться комфортом. Дом оснащён...
    • 2 эт.
    • 80 м²
    • 5 сот.
    5 000 000 Р
    Агент
    +7 (917) Показать номер
    Посмотреть контакты
    Дом в Башкортостан, Уфимский район, Зубовский сельсовет, Яшма дп ул. ... - Фото 1
    Дом в Башкортостан, Уфимский район, Зубовский сельсовет, Яшма дп ул. ... - Фото 2
    2 этажа, общая площадь 90м², участок 10 соток

    Арт.ДОМ ОТ ЗАСТРОЙЩИКА Зубовский с/с, Уфимский район РБ. ДНП Яшма .Готовый дом в предчистовой отделке. покупка за наличный расчет.Дом в Русском стиле, из оцилиндрованного бревна, как для постоянного проживания, так и дом выходного дня..Одноэтажный дом...
    • 2 эт.
    • 90 м²
    • 10 сот.
    5 000 000 Р
    Агент
    +7 (986) Показать номер
    Посмотреть контакты
    Дом в Башкортостан, Иглинский сельсовет, с. Иглино ул. Железнодорожная ... - Фото 1
    Дом в Башкортостан, Иглинский сельсовет, с. Иглино ул. Железнодорожная ... - Фото 2
    1 этаж, общая площадь 80м², участок 6 соток

    Продается дом в с.Иглино в чистовой отделкеДом построен теплоблока, стоит на ленточном бетонном монолитном фундаментеПлощадь дома: 80 кв. м.Комнаты: 2 спальные комнаты, кухня гостиная с выходом на террасу. Совмещенный санузел.Площадь участка 6 соток,...
    • 1 эт.
    • 80 м²
    • 6 сот.
    4 900 000 Р
    Агент
    +7 (917) Показать номер
    Посмотреть контакты
    Дом в Абзелиловский район, Краснобашкирский сельсовет, село Красная ... - Фото 1
    Дом в Абзелиловский район, Краснобашкирский сельсовет, село Красная ... - Фото 2
    2 этажа, общая площадь 130м², участок 5 соток

    Доступна Сельская ипотека под 3 К реализации предлагается проект дома 130 кв.м . Данный проект строится под заказ Срок возведения объекта 3-6 месяцев. с. Красная Башкирия в настоящий момент времени активно застраивается и уже сейчас имеет всю необходимую...
    • 2 эт.
    • 130 м²
    • 5 сот.
    5 000 000 Р
    Агент
    +7 (982) Показать номер
    Посмотреть контакты

    Не нашли подходящего объявления?

    Оставьте заявку, и наши риэлторы подберут купить дом в районе Стерлитамака

    (0)