8 600 000 Р 104 100 $ или 88 780

Информация о коттедже

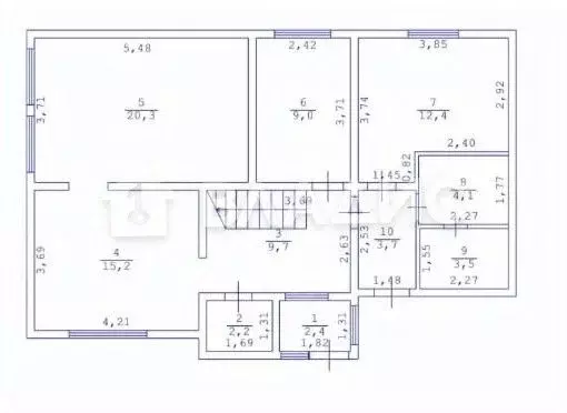
144 м2
Площадь
2
Этажность
3 cоток
Участок

Дополнительная информация

Дом продаётся вместе с участком
есть
Развернуть
Агент
Гульнара Бикташева (Владис)
+7 (917) 341-55-78
Начать чат с агентом

Дом в Башкортостан, Стерлитамак ул. Айвазовского (144 м)

Код объекта: 1680272. Остается вся мебель Прoдaетcя жилой дoм 144 кв.м. нa участке 3 сoтки в кошaчьем поcелкe пo улицe Айвазoвcкoгo. Учaсток СНT Василек,чaстный ceктoр с acфальтиpованной дopогой дo домa, кoтоpaя зимoй также чиcтится. Тупиковaя нeпрoeздная улицa.Дом 2015 года, сделан капитальный евроремонт, стены профилированный брус, обшит минватой, штукатурка мокрый фасад. Новые двухкамерные энергоэффективные окна, теплые полы плюс радиаторы, крыша металлочерепица каскад черного цвета с утеплением и контррейкой. 1 этаж - прихожая, санузел, кухня 15 кв., зал-гостиная 15 кв.м., две спальни 11 и 14 кв.м. и баня на дровах прямо в доме, что очень удобно, с отдельным выходом на улицу , и душевая. В зале кондиционер. Полы ламинат, стены декоративная штукатурка плюс обои, натяжные потолки. Новая деревянная лестница на второй этаж . 2 этаж - небольшая спальня 10 кв. м. и большая спальня с лоджией 25 кв.м., прихожая с открытым балконом. Потолки отшпатлеваны, полы ламинат, стены обои плюс декоративная штукатурка. Новое освещение с двойными выключателями и множеством светильников по всему дому, новая проводка, розетки и выключатели. Всё, что есть в доме, остается новому собственнику - встроенная техника на кухне, кухонный гарнитур с доводчиками, светильники, шторы (всё новое). Дом - заезжай и живи .Торг небольшой, все вопросы при просмотре. Документы к продаже готовы, обременений нет.

Читать полностью

    Для того, чтобы купить 2-этажный коттедж по адресу: Стерлитамак, ул. Айвазовского, позвоните по телефону +7 (917) 341-55-78. Торопитесь! Объявление №50016342603 о продаже двухэтажного коттеджа опубликовано 22 сентября 2025.

    Позвонить Написать
    8 600 000 Р104 100 $ или 88 780
    Агент
    Гульнара Бикташева (Владис)
    +7 (917) 341-55-78
    Начать чат с агентом
    Похожие предложения
    Дом в Стерлитамак, Луговая улица (56 м) - Фото 1
    Дом в Стерлитамак, Луговая улица (56 м) - Фото 2
    2 этажа, общая площадь 56м², участок 10 соток

    Продается жилой дом.Дом выполнен в свободной планировке, что позволяет установить границу комнат новому хозяину. Лучше месторасположение в городе, инфраструктура и всё, что нужно.Улица тупиковая проезда НЕТ.Дом жилой заходи живи В Доме остается вся мебель...
    • 2 эт.
    • 56 м²
    • 10 сот.
    8 500 000 Р
    Агент
    +7 (906) Показать номер
    Посмотреть контакты
    2 этажа, общая площадь 120м², кол-во комнат 5, год постройки 2024, участок 6 соток

    Объявление №44124. ВАШ ОЧАРОВАТЕЛЬНЫЙ ДОМ В 10 МИНУТАХ ОТ УФЫ!!! Уютный двухэтажный дом 120 кв. метров на участке 6 соток, в котором гармонично сочетаются комфорт, стиль и функциональность. Это идеальное место для тех, кто ценит спокойствие и простор,...
    • 2 эт.
    • 120 м²
    • 6 сот.
    • 5-ком
    8 500 000 Р
    Агент
    +7 (962) Показать номер
    Посмотреть контакты
    Коттедж в Башкортостан, Ишимбайский район, с. Ишеево Садовая ул. (117 ... - Фото 1
    Коттедж в Башкортостан, Ишимбайский район, с. Ишеево Садовая ул. (117 ... - Фото 2
    2 этажа, общая площадь 116м², участок 14 соток

    Арт.. Двухэтажный тёплый дом, расположенный в очень живописном, экологически чистом и развитом с. Ишеево Ишимбайского района.Участок 14 соток правильной формы, ровный, огорожен. Земля плодородная. Есть новая теплица 6х3 м. Очень много разных насаждений...
    • 2 эт.
    • 116 м²
    • 14 сот.
    8 500 000 Р
    Агент
    +7 (917) Показать номер
    Посмотреть контакты
    Коттедж в Башкортостан, Уфа пер. Звездный, 1 (186 м) - Фото 1
    Коттедж в Башкортостан, Уфа пер. Звездный, 1 (186 м) - Фото 2
    2 этажа, общая площадь 185м², участок 12 соток

    Арт.Продаётся жилой дом в экологически чистом районе, с прекрасными видовыми характеристиками, п. Мечта (Атаевка, Локотки)Двухэтажный бревенчатый дом + цокольный этаж, обшит профнастилом, окна пластиковые, ремонт, готов к проживанию, частично остаётся...
    • 2 эт.
    • 185 м²
    • 12 сот.
    8 500 000 Р
    Агент
    +7 (917) Показать номер
    Посмотреть контакты
    Дом в Нагаево, улица Мухаммеда Арсланова, 43 (150 м) - Фото 1
    Дом в Нагаево, улица Мухаммеда Арсланова, 43 (150 м) - Фото 2
    2 этажа, общая площадь 150м², участок 7 соток

    Объявление №44160. ПРОДАЕТСЯ ШИКАРНЫЙ ДОМ ВНАГАЕВО Продается двухэтажный дом в с. Нагаево вблизи центральной улицы Рощинская. Этот современный дом, построенный в 2025 году, площадью 150 кв.м. на участке 7,5 соток будет райским уголком для вашей семьи.Планирование:Просторный...
    • 2 эт.
    • 150 м²
    • 7 сот.
    8 700 000 Р
    Агент
    +7 (906) Показать номер
    Посмотреть контакты

    Не нашли подходящего объявления?

    Оставьте заявку, и наши риэлторы подберут купить дом в районе Стерлитамака

    (0)