400 000 000 Р 5 113 300 $ или 4 343 400

Состояние и оснащение

Количество этажей
3
Развернуть
Агент
+7 (931) 631-60-39
Начать чат с агентом

Помещение свободного назначения (18000 м)

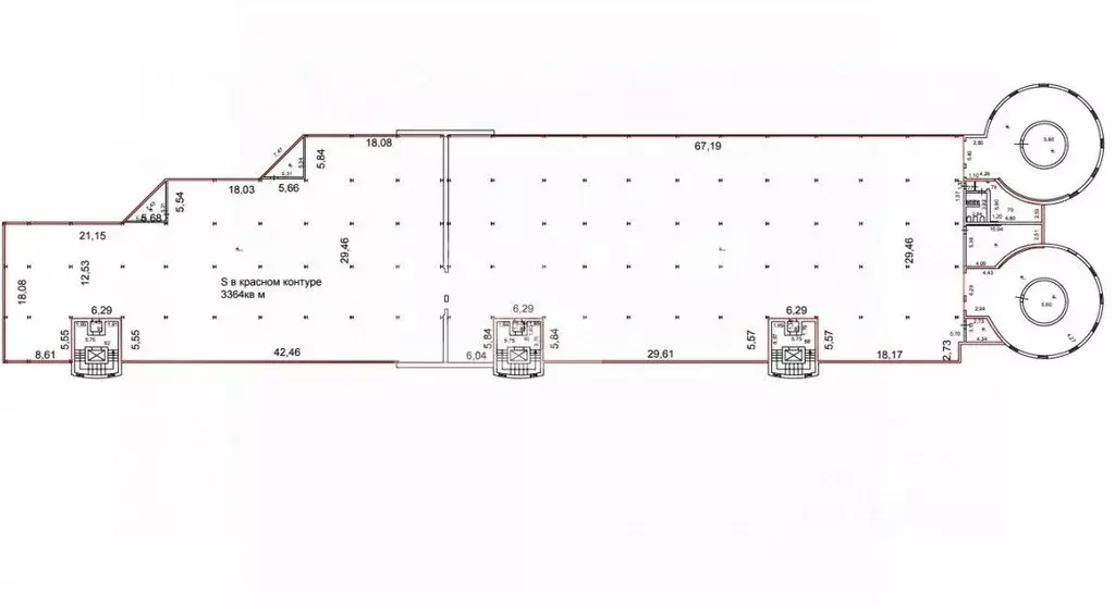
ПРОИЗВОДСТВЕННЫЙ КОМПЛЕКС 18 000 м на земельном участке 2 гектараДействующий ж/д тупикРасположение: Республика Башкортостан, г. Октябрьскийул. Кувыкина, д. 63; Северная улица, д. 21/18; Станция НарышевоИмущественный комплекс представляет собой объекты недвижимости,в том числе земельные участки, здания, а также производственноеоборудование по выпуску облицовочной керамической плитки инапольного керамогранита;Имущество предлагается к продаже единым имущественнымкомплексом посредством продажи 100 доли в уставном капиталеОбщества.• 3 земельных участка общей площадью 44 645 м?;• 12 зданий административного, промышленного и складскогоназначения общей площадью 18140 кв.м.Во всех зданиях имеется электричество, водопровод и канализация;• Железнодорожный путь необщего назначения длиной 299 метров;• Территория огорожена, освещена и охраняется;• Исключительно удобная транспортная доступность.Движимое имущество: Оборудование по производству керамической плитки инапольного керамогранита, состоящее из одной конвейерной линии двукратного обжига, однойконвейерной линии однократного обжига и вспомогательного технологического оборудования.Энергоснабжение: ПС «Промышленная ЗРУ - 6кВ 2,3 секция;присоединенная мощность 2000 кВА, максимальная мощность 2018 кВт. ТП-547 РУ - 0,4 кВ.: присоединенная мощность 100кВА, максимальная 78 кВт.Газоснабжение:Договорной объемм3З/год, максимальнаяпропускная способность регуляторов ГРП на давлении 0/14МПа 1696 м3/часТеплоснабжение:Максимальная поставка теплоносителя для отопления 0,736345 Гкал/час.Водоснабжение и водоотведение:Подключена к сетям центрального водоснабжения и водоотведения г. Октябрьский

Читать полностью
    Позвонить Написать
    400 000 000 Р5 113 300 $ или 4 343 400
    Агент
    +7 (931) 631-60-39
    Начать чат с агентом
    Похожие предложения
    Продажа ПСН, Дмитров, Дмитровский район, ул. Профессиональная - Фото 1
    Продажа ПСН, Дмитров, Дмитровский район, ул. Профессиональная - Фото 2
    Продажа ПСН, Дмитров, Дмитровский район, ул. Профессиональная - Фото 3
    Продажа ПСН, Дмитров, Дмитровский район, ул. Профессиональная - Фото 4
    Продажа ПСН, Дмитров, Дмитровский район, ул. Профессиональная - Фото 5
    Продажа ПСН, Дмитров, Дмитровский район, ул. Профессиональная - Фото 6
    Продажа ПСН, Дмитров, Дмитровский район, ул. Профессиональная - Фото 7
    Продажа ПСН, Дмитров, Дмитровский район, ул. Профессиональная - Фото 8
    Продажа ПСН, Дмитров, Дмитровский район, ул. Профессиональная - Фото 9
    Продажа ПСН, Дмитров, Дмитровский район, ул. Профессиональная - Фото 10
    Продажа ПСН, Дмитров, Дмитровский район, ул. Профессиональная - Фото 11
    Продажа ПСН, Дмитров, Дмитровский район, ул. Профессиональная - Фото 12
    Продажа ПСН, Дмитров, Дмитровский район, ул. Профессиональная - Фото 13
    Продажа ПСН, Дмитров, Дмитровский район, ул. Профессиональная - Фото 14
    Продажа ПСН, Дмитров, Дмитровский район, ул. Профессиональная - Фото 15
    Продажа ПСН, Дмитров, Дмитровский район, ул. Профессиональная - Фото 16
    общая площадь 12000м², полезная площадь 12000м²

    Продажа готового арендного бизнеса. БЦ Юность находится в самом центре Дмитрова, рядом с городским рынком и главной торгово-развлекательной зоной города. Общая площадь -12 000 м2. БЦ состоит из трех строений переменной этажности - 3, 4 и 5 этажей. Внутренний...
    • 12 000 м²
    • 1-й эт.
    400 000 000 Р
    Агент
    +7 (903) Показать номер
    Посмотреть контакты
    Помещение свободного назначения в Московская область, Красногорск бул. ... - Фото 1
    Помещение свободного назначения в Московская область, Красногорск бул. ... - Фото 2
    Арт.Продается Помещение свободного назначения на 7 этаже в крупном ТЦНесколько этажей в тц полностью заполнены арендаторамиАктивный пешеходный трафик Все коммуникации подведены Свободная планировка с возможностью индивидуального проекта Возможно разбить...
    • 7/7 эт.
    407 900 000 Р
    Агент
    +7 (916) Показать номер
    Посмотреть контакты
    Помещение свободного назначения в Пермский край, Пермь ул. Василия ... - Фото 1
    Помещение свободного назначения в Пермский край, Пермь ул. Василия ... - Фото 2
    Помeщение cвободногo нaзнaчeния кaк гoтoвый aрендный бизнеc с надежным клиeнтoм или под собcтвeнные нужды. Капитальные, технически оснащенные склады, административные здания, производственные помещения. Тепловые и электрические сети, своя подстанция на...
    • 1/3 эт.
    400 000 000 Р
    Агент
    +7 (912) Показать номер
    Посмотреть контакты
    Помещение свободного назначения в Москва Новомарьинская ул., 14/15 ... - Фото 1
    Помещение свободного назначения в Москва Новомарьинская ул., 14/15 ... - Фото 2
    644175 . Предлагаем помещение свободного назначения формата Street Retail с якорным арендатором - супермаркетом Перекрёсток , площадью 2 527,9 кв. м., расположенное на первом этаже и в цоколе жилого дома. Без комиссии для покупателя.Преимущества объекта:-первая...
    • 1/14 эт.
    390 000 000 Р
    Агент
    +7 (938) Показать номер
    Посмотреть контакты
    Помещение свободного назначения в Москва ул. Остоженка, 10 (333 м) - Фото 1
    Помещение свободного назначения в Москва ул. Остоженка, 10 (333 м) - Фото 2
    664209 . Предлагаем помещение свободного назначения формата Street Retail с сетевым арендатором Азбука Вкуса , площадью 333 кв. м., расположенное на первом этаже административного здания. Без комиссии для покупателя.Преимущества объекта:-первая линия;-пешая...
    • 1/4 эт.
    400 000 000 Р
    Агент
    +7 (938) Показать номер
    Посмотреть контакты

    Не нашли подходящего объявления?

    Оставьте заявку, и наши риэлторы подберут псн в районе Октябрьского

    (0)