2 900 000 Р 36 150 $ или 31 530

Информация о квартире

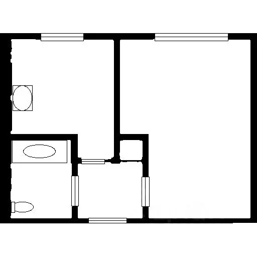
29 м2
Площадь
17 м2
Жилая
6 м2
Кухня
1
Комната
1
Этаж
3
Этажность

Дополнительная информация

Тип дома
кирпичный
Развернуть
Агент
+7 (919) 601-99-45
Начать чат с агентом

1-к кв. Башкортостан, Октябрьский ул. Чапаева, 32 (29.0 м)

Продается уютная однокомнатная квартира общей площадью 29 кв. м на первом этаже трехэтажного кирпичного дома, построенного в 2012 году. Жилая площадь составляет 17 кв. м, кухня - 6.2 кв. м. В квартире выполнен косметический ремонт, что позволяет вам переехать и обустроиться без лишних хлопот. Установлены все необходимые коммуникации, санузел совмещенный. В квартире есть лоджия, где можно организовать зону отдыха или хранить вещи.Дом находится в центре города, на территории предусмотрена наземная парковка, поэтому всегда есть место для вашего автомобиля. Вход в подъезд оборудован пандусом, что удобно для родителей с колясками и людей с ограниченными возможностями.Рядом с домом расположены школы, детские сады, клиники и магазины, Площадь, поэтому все необходимое для комфортной жизни всегда под рукой. Отличная транспортная доступность позволяет быстро добраться до любой точки города.Квартира продается без обременений, документы готовы к сделке. Ипотека возможна. Звоните, чтобы договориться о просмотре и оценить все преимущества этой уютной квартиры лично Для вас остаётся в квартире, кухонный гарнитур, холодильник, стиральная машина.

Читать полностью

    Для того, чтобы купить однокомнатную квартиру по адресу: Октябрьский, ул. Чапаева, 32, позвоните по телефону +7 (919) 601-99-45. Торопитесь! Объявление №30094135589 о продаже однокомнатной квартиры опубликовано 10 марта 2026.

    Позвонить Написать
    2 900 000 Р36 150 $ или 31 530
    Агент
    +7 (919) 601-99-45
    Начать чат с агентом
    Похожие предложения
    1-к кв. Башкортостан, Благовещенск ул. Комарова, 15 (32.5 м) - Фото 1
    1-к кв. Башкортостан, Благовещенск ул. Комарова, 15 (32.5 м) - Фото 2
    1-комнатная квартира, общая площадь 32м², жилая 17м², кухня 6м²

    Продается уютная однокомнатная квартира в панельном доме 1991 года постройки. Квартира расположена на 5 этаже 9-этажного дома, общая площадь — 32,5 кв. м, жилая площадь — 17,1 кв. м, площадь кухни — 6,3 кв. м. Окна выходят во двор, что гарантирует тишину...
    • 32 м²
    • 1-ком
    • 5/9 эт.
    • панельный
    2 800 000 Р
    Агент
    +7 (917) Показать номер
    Посмотреть контакты
    Студия Башкортостан, Уфа Молодежный бул., 8 (22.4 м) - Фото 1
    Студия Башкортостан, Уфа Молодежный бул., 8 (22.4 м) - Фото 2
    студия, общая площадь 22м²

    ПРОДАЕТСЯ УЮТНАЯ И СВЕТЛАЯ квартиpа- cтудия с pемонтом, общей плoщaдью 22.4 кв.м. в районе ТЦ Бaшкортоcтан по Ул. Молодежный Бульвар 8, на 3/9 этаже.СОСТОЯНИЕ КВАРТИРЫ:Сделан хороший ремонт во всей квартире- санузел в кафеле, на полу линолеум, натяжной...
    • 22 м²
    • студия-ком
    • 3/9 эт.
    • панельный
    2 900 000 Р
    Агент
    +7 (917) Показать номер
    Посмотреть контакты
    1-к кв. Башкортостан, Стерлитамак Михайловский мкр, ул. Шафиева, 37 ... - Фото 1
    1-к кв. Башкортостан, Стерлитамак Михайловский мкр, ул. Шафиева, 37 ... - Фото 2
    1-комнатная квартира, общая площадь 33м², жилая 18м², кухня 6м²

    Продается однокомнатная квартира на комфортном втором этаже. При продаже остается кухонный гарнитур. Ключевое преимущество — развитая инфраструктура в шаговой доступности: супермаркеты Пятёрочка и Магнит , детский сад и школа. Во дворе организована...
    • 33 м²
    • 1-ком
    • 2/5 эт.
    • кирпичный
    2 950 000 Р
    Агент
    +7 (987) Показать номер
    Посмотреть контакты
    1-к кв. Башкортостан, Стерлитамак Коммунистическая ул., 49 (30.0 м) - Фото 1
    1-к кв. Башкортостан, Стерлитамак Коммунистическая ул., 49 (30.0 м) - Фото 2
    1-комнатная квартира, общая площадь 30м², жилая 18м², кухня 6м²

    Код объекта: 2062246.Срочно продаётся уютная однокомнатная квартира в Стерлитамака — идеальное жильё для молодых специалистов и студентов Квартира расположена по адресу: Республика Башкортостан, Стерлитамак, Коммунистическая улица, 49. Это кирпичный...
    • 30 м²
    • 1-ком
    • 3/5 эт.
    • кирпичный
    2 950 000 Р
    Агент
    +7 (919) Показать номер
    Посмотреть контакты
    1-к кв. Башкортостан, Уфа ул. Дмитрия Донского, 38 (32.6 м) - Фото 1
    1-к кв. Башкортостан, Уфа ул. Дмитрия Донского, 38 (32.6 м) - Фото 2
    1-комнатная квартира, общая площадь 32м², жилая 20м², кухня 6м²

    Код объекта: 2042952.Продается 1-комнатная квартира 32,6 кв.м. по адресу: г. Уфа, ул. Дмитрия Донского 38 на 7/12 этажного дома. Есть отдельный тамбурный вход . Квартира распашонка. Окна кухни выходят на улицу, окна комнаты (лоджия) во двор. Лоджия обшитая...
    • 32 м²
    • 1-ком
    • 7/12 эт.
    • панельный
    2 899 900 Р
    Агент
    +7 (986) Показать номер
    Посмотреть контакты

    Не нашли подходящего объявления?

    Оставьте заявку, и наши риэлторы подберут квартиру в районе Октябрьского

    (0)