3 680 000 Р 47 620 $ или 40 310

Информация о квартире

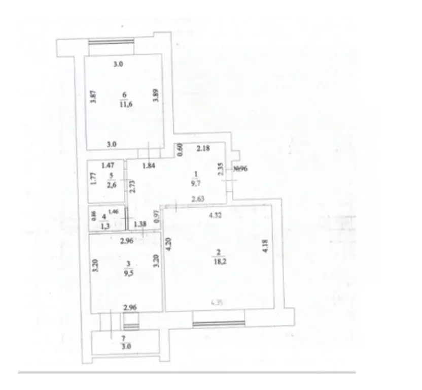
59 м2
Площадь
40 м2
Жилая
7 м2
Кухня
3
Комнаты
8
Этаж
9
Этажность
Развернуть
Агент
+7 (937) 850-02-14
Начать чат с агентом

3-комнатная квартира: Октябрьский, проспект Ленина, 57 (59.2 м)

Арт.Представляем вашему вниманию уютную 3-комнатную квартиру, расположенную на 8-м этаже в 9-этажном кирпичном доме. Этот вариант идеально подойдет для семьи, ценящей комфорт и надежность. В квартире выполнен свежий косметический ремонт, что позволяет новым владельцам сразу заехать и жить, не тратя время и силы на дополнительные работы. Комнаты имеют смежно-изолированную планировку, предлагая гибкие возможности для организации пространства и обеспечивая приватность каждого члена семьи. Кирпичный дом гарантирует отличную звукоизоляцию и сохранение тепла, создавая приятный микроклимат в любое время года. Расположение на предпоследнем этаже (8 из 9) обеспечивает прекрасный вид из окон и минимум шума от соседей сверху. Не упустите возможность приобрести эту светлую и просторную квартиру, которая станет идеальным домом для вас и вашей семьи

Читать полностью

    Для того, чтобы купить трехкомнатную квартиру по адресу: Октябрьский, Ленина пр-кт., 57, позвоните по телефону +7 (937) 850-02-14. Торопитесь! Объявление №30093884841 о продаже трехкомнатной квартиры опубликовано 2 дня назад.

    Позвонить Написать
    3 680 000 Р47 620 $ или 40 310
    Агент
    +7 (937) 850-02-14
    Начать чат с агентом
    Похожие предложения
    2-к кв. Башкортостан, Октябрьский 34-й мкр, 13В (52.9 м) - Фото 1
    2-к кв. Башкортостан, Октябрьский 34-й мкр, 13В (52.9 м) - Фото 2
    2-комнатная квартира, общая площадь 52м², жилая 29м², кухня 9м²

    Арт.Не упустите свой шанс стать обладателем этой замечательной квартиры Здесь вас ждет уют и комфорт, а удобное расположение позволит наслаждаться всеми преимуществами развитой инфраструктуры.Вы сможете прогуляться по парку, посетить торговый центр,...
    • 52 м²
    • 2-ком
    • 5/5 эт.
    • кирпичный
    3 800 000 Р
    Агент
    +7 (986) Показать номер
    Посмотреть контакты
    1-к кв. Башкортостан, Октябрьский ул. Рахимьяна Насырова, 3 (34.4 м) - Фото 1
    1-к кв. Башкортостан, Октябрьский ул. Рахимьяна Насырова, 3 (34.4 м) - Фото 2
    1-комнатная квартира, общая площадь 34м², жилая 16м², кухня 9м²

    Арт.Продажа однокомнатной квартиры в самом востребованном районе города, Р. Насырова 9Общая площадь 34,4 м, находится квартира на 2 этажеБольшая лоджия, где можно разместить летнюю мебель и отдохнуть вечерамиПарковка во дворе, солнечная сторона Звоните...
    • 34 м²
    • 1-ком
    • 2/5 эт.
    • кирпичный
    3 600 000 Р
    Агент
    +7 (986) Показать номер
    Посмотреть контакты
    3-к кв. Башкортостан, Октябрьский 35-й мкр, 29 (60.5 м) - Фото 1
    3-к кв. Башкортостан, Октябрьский 35-й мкр, 29 (60.5 м) - Фото 2
    3-комнатная квартира, общая площадь 60м², жилая 42м², кухня 6м²

    Арт.В продаже Видовая, просторная и светлая квартира в развитом районе города, на 9м этаже, большой плюс что нет соседей над головой.Есть остекленная лоджия с видом на природуПланировка ЛенПроектаспашенкаДом кирпичный, хороший и современный лифтВсе документы...
    • 60 м²
    • 3-ком
    • 9/9 эт.
    • кирпичный
    3 800 000 Р
    Агент
    +7 (986) Показать номер
    Посмотреть контакты
    2-к кв. Башкортостан, Октябрьский 34-й мкр, 13В (53.0 м) - Фото 1
    2-к кв. Башкортостан, Октябрьский 34-й мкр, 13В (53.0 м) - Фото 2
    2-комнатная квартира, общая площадь 53м², жилая 30м², кухня 10м²

    Продается уютная 2-х комнатная квартира в г. Октябрьский РБ.Дом кирпичный, 2009 года постройки.Планировка- распашонка, большая кухня с выходом на лоджию, просторная прихожая с встроенным шкафом-купе, сан.узел раздельный. Развитая инфраструктура, в шаговой...
    • 53 м²
    • 2-ком
    • 5/5 эт.
    • кирпичный
    3 800 000 Р
    Агент
    +7 (917) Показать номер
    Посмотреть контакты
    3-к кв. Башкортостан, Октябрьский Северная ул., 14 (58.4 м) - Фото 1
    3-к кв. Башкортостан, Октябрьский Северная ул., 14 (58.4 м) - Фото 2
    3-комнатная квартира, общая площадь 58м², жилая 47м², кухня 6м²

    Арт.Данную квартиру ВЫ можете приобрести в ипотеку по ставке 12,9 Продается светлая и уютная трехкомнатная квартира, расположенная в спальном районе города. Чистый подъезд, хорошие соседи. Во дворе оборудована детская площадка, разбиты клумбы, растут...
    • 58 м²
    • 3-ком
    • 4/5 эт.
    • кирпичный
    3 600 000 Р
    Агент
    +7 (987) Показать номер
    Посмотреть контакты

    Не нашли подходящего объявления?

    Оставьте заявку, и наши риэлторы подберут квартиру в районе Октябрьского

    (0)