8 700 000 Р 110 700 $ или 94 360

Информация о коттедже

180 м2
Площадь
2
Этажность
8 cоток
Участок

Дополнительная информация

Дом продаётся вместе с участком
есть
Развернуть
Агент
+7 (986) 904-74-70
Начать чат с агентом

Дом в Башкортостан, Октябрьский пл. Имени Ленина (180 м)

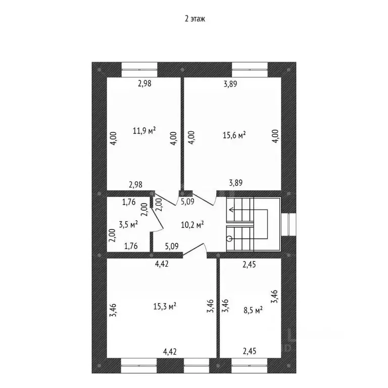
Арт.Продается красивый дом. На 1 этаже гостиная, кухня, санузел. На 2 этаже: 3 спальни, санузел, в цокольном этаже сауна, душевая, прачечная, хоз блок. На ровном участке 8 соток находится хозяйственное помещение, гараж на 2 автомобиля. Дом находится на улице с асфальтированным покрытием. В 2 минутах ходьбы находится автобусная остановка. Продается за наличный расчет, ипотеку и любые формы сертификатов. Год постройки 2017.

Читать полностью

    Для того, чтобы купить 2-этажный коттедж по адресу: Октябрьский, пл. Имени Ленина, позвоните по телефону +7 (986) 904-74-70. Торопитесь! Объявление №50016605126 о продаже двухэтажного коттеджа опубликовано Вчера.

    Позвонить Написать
    8 700 000 Р110 700 $ или 94 360
    Агент
    +7 (986) 904-74-70
    Начать чат с агентом
    Похожие предложения
    Дом в Башкортостан, Октябрьский Озерная ул., 18 (190 м) - Фото 1
    Дом в Башкортостан, Октябрьский Озерная ул., 18 (190 м) - Фото 2
    2 этажа, общая площадь 190м², участок 12 соток

    Арт.Продается просторный и светлый дом, в тихом районе нашего города в Муллино. Дом для большой и дружной семьи. В доме все удобства. Планировка дома очень удобна продумана. В доме имеются: три спальни, большой просторный гостевой зал, кухня, терраса....
    • 2 эт.
    • 190 м²
    • 12 сот.
    8 700 000 Р
    Агент
    +7 (986) Показать номер
    Посмотреть контакты
    Дом в Башкортостан, Уфа городской округ, с. Нагаево ул. Лимонная (90 ... - Фото 1
    Дом в Башкортостан, Уфа городской округ, с. Нагаево ул. Лимонная (90 ... - Фото 2
    1 этаж, общая площадь 90м², участок 6 соток

    Продам дом расположенный в экологически чистом месте с.Нагаево : Полностью готов к проживанию: отопление, вода, электричество подключены. Имеется место для гаража и парковки автомобиля . Спокойствие и безопасность обеспечиваются благодаря удалённости...
    • 1 эт.
    • 90 м²
    • 6 сот.
    8 800 000 Р
    Агент
    +7 (919) Показать номер
    Посмотреть контакты
    Дом в Башкортостан, Уфимский район, Зубовский сельсовет, с. Зубово ул. ... - Фото 1
    Дом в Башкортостан, Уфимский район, Зубовский сельсовет, с. Зубово ул. ... - Фото 2
    2 этажа, общая площадь 205м², участок 7 соток

    Продается уютный 2-этажный коттедж, расположенный по адресу Уфимский район, с. Зубово, ул. Луганская.Общая площадь дома 205,4 кв.м., расположен на участке площадью 7,5 соток земли. На первом этаже: кухня-гостиная, 2 жилые комнаты, санузел, просторный...
    • 2 эт.
    • 205 м²
    • 7 сот.
    8 800 000 Р
    Агент
    +7 (986) Показать номер
    Посмотреть контакты
    Дом в Башкортостан, Уфа городской округ, с. Нагаево ул. Михаила ... - Фото 1
    Дом в Башкортостан, Уфа городской округ, с. Нагаево ул. Михаила ... - Фото 2
    1 этаж, общая площадь 120м², участок 6 соток

    Одноэтажный дом площадью 120 м в коттеджном поселке с закрытой территорией и круглосуточным видеонаблюдением. Безопасность и порядок обеспечивает управляющая компания, которая обслуживает территорию и осуществляет уборку снега в зимний период. Планировка...
    • 1 эт.
    • 120 м²
    • 6 сот.
    8 800 000 Р
    Агент
    +7 (987) Показать номер
    Посмотреть контакты
    Дом в Башкортостан, Уфа городской округ, с. Нагаево ул. 65-летия ... - Фото 1
    Дом в Башкортостан, Уфа городской округ, с. Нагаево ул. 65-летия ... - Фото 2
    2 этажа, общая площадь 150м², участок 7 соток

    Продается отличный 2-этажный кирпичный дом площадью 136м2 на участке 7 соток в экологически чистом районе с выгодным расположением вблизи леса и реки. Дом с продуманной планировкой: - просторная гостиная, совмещенная с кухней с выходом под террасу, -...
    • 2 эт.
    • 150 м²
    • 7 сот.
    8 700 000 Р
    Агент
    +7 (917) Показать номер
    Посмотреть контакты

    Не нашли подходящего объявления?

    Оставьте заявку, и наши риэлторы подберут купить дом в районе Октябрьского

    (0)