9 200 000 Р 113 600 $ или 97 790

Информация о коттедже

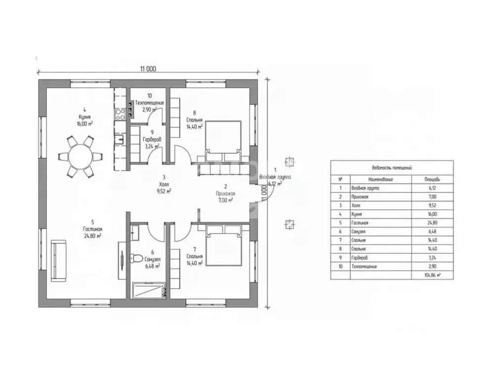
100 м2
Площадь
1
Этажность
6 cоток
Участок

Дополнительная информация

Дом продаётся вместе с участком
есть
Развернуть
Агент
+7 (986) 904-74-70
Начать чат с агентом

Дом в Башкортостан, Октябрьский ул. Буровиков (100 м)

Арт.Старт продаж домов от застройщика Уютный Дом У вас есть уникальная возможность стать владельцем Дома по самой выгодной цене. В экологичном районе города.Окончание страительства Сентябрь 2025 годГарантия на дом 5 лет Есть аккредитация во всех ведущих банков РФ.Строим будущее сегодня Проектное описание:Фундамент на буронабивных сваях с железобетонным ростверком глубиной 2000м. Лента: Арматура Д -12 в 2 этажа по 3 шт с усилением углов.Стены на выбор: из газобетонных блоков толщиной + утеплитель- фасадный + штукатурка с армирующей сеткой под Короед + окраска.Керамзита бетонные блоки + утеплитель- фасадный + оштукатурка с армирующей сеткой под Короед + окраска.Бетонный армопоясЧердачное перекрытие из бруса (обработан ОгнеБио защитой), утеплено минеральной ватой 200 мм, подшито доской и паро-гиброизоляцией.Крыша металлочерепица Монтеррей, подшив карнизов и потолка крыльцаСтены выровнены и шпаклеваны под обои.Полы залиты в единый уровень, бетонной стяжкой с применением экструзионного пенополистирола, выполнена система водяных тёплых полов по всему периметру домаВыводы под радиаторыДвухконтурный газовый котёл BAXI (Бакси)Входная металлическая дверь с термо разрывом.Окна ПВХ профиль КВЕ 2х камерный стеклопакет-3 стеклаГаз, городское водоснабжение и электроснабжение, шамбо на 3 кольца.Ваш дом ваша крепость, и мы в Уютном Доме это прекрасно понимаем. С более чем 9-летним опытом в строительстве, мы предлагаем надежные и инновационные решения для вашего жилища.Звоните и записывайтесь на демонстрацию в шоурум, там вы увидите:Качество: Использование только высококачественных материалов от производителя.Большой каталог самых продуманных планировок.Надежность: Соблюдение всех сроков и гарантий, фиксируем в договоре. Есть аккредитация во всех ведущих банков города.Инновации: Применение современных технологий строительства, постоянно проходим обучения и совершенствуемся.Мы строим не просто дома мы создаем Уютные Дома вашей мечты. Позвоните нам сегодня и начните строить свое будущее Комплексный подход к строительству:-от выбора земельного участка и локации - до отделки с благоустройствомНе хватает на первоначальный взнос?Решим вопрос.. к каждому у нас индивидуальный подход Если для расчет с нами вам нужно продать свою недвижимость или автомобиль, у нас есть обмен и срочный выкуп.

Читать полностью

    Для того, чтобы купить 1-этажный коттедж по адресу: Октябрьский, ул. Буровиков, позвоните по телефону +7 (986) 904-74-70. Торопитесь! Объявление №50016337211 о продаже одноэтажного коттеджа опубликовано 12 октября 2025.

    Позвонить Написать
    9 200 000 Р113 600 $ или 97 790
    Агент
    +7 (986) 904-74-70
    Начать чат с агентом
    Похожие предложения
    1 этаж, общая площадь 106м², участок 6 соток

    Арт.Данный объект вы можете приобрести от застройщика, в ипотеку по льготной ставке 6 . Продаётся одноэтажный дом 106м2 и земельный участок 6,6 соток в чистом и спокойном районе нашего города, в 40 мкр. В доме расположены три спальные комнаты, раздельный...
    • 1 эт.
    • 106 м²
    • 6 сот.
    9 200 000 Р
    Агент
    +7 (937) Показать номер
    Посмотреть контакты
    Дом в Башкортостан, Октябрьский Совхозная ул. (90 м) - Фото 1
    Дом в Башкортостан, Октябрьский Совхозная ул. (90 м) - Фото 2
    1 этаж, общая площадь 90м², участок 6 соток

    Арт.В г.Октябрьский в п.Муллино ведется строительство современных домов, площадь домов составляет 90 кв.м.Дома сдаются со всеми коммуникациями, сетевой газ, городское водоснабжение, электроснабжение, канализация шамбо Планировка дома:Большая уютная кухня-гостиная...
    • 1 эт.
    • 90 м²
    • 6 сот.
    9 200 000 Р
    Агент
    +7 (986) Показать номер
    Посмотреть контакты
    Дом в Башкортостан, Уфа городской округ, д. Ветошниково ул. ... - Фото 1
    Дом в Башкортостан, Уфа городской округ, д. Ветошниково ул. ... - Фото 2
    2 этажа, общая площадь 123м², участок 7 соток

    Дом 123 кв Ждет Новых Хозяев Очень удобное располежение Дома: Красная линия Миловского шоссе (дорога Затон - Дема) и выезд на трассу Западный обход, мимо Миловского парка.Дом два этажа 123 м2, на участке 7,05 построен в 2008 году, а в 2020 году был выполнен...
    • 2 эт.
    • 123 м²
    • 7 сот.
    9 199 999 Р
    Агент
    +7 (917) Показать номер
    Посмотреть контакты
    Коттедж в Башкортостан, Уфимский район, Михайловский сельсовет, д. ... - Фото 1
    Коттедж в Башкортостан, Уфимский район, Михайловский сельсовет, д. ... - Фото 2
    1 этаж, общая площадь 175м², участок 7 соток

    Арт.В продаже имеются красивые уютные просторные дома, коттеджи с разной площадью с терассами. Возможно строительство домов в кратчайшие сроки с любым вариантом проекта и площадью из предложенных. Либо по предложенному вашему проекту. Все варианты отделки...
    • 1 эт.
    • 175 м²
    • 7 сот.
    9 100 000 Р
    Агент
    +7 (986) Показать номер
    Посмотреть контакты
    Дом в Башкортостан, Уфимский район, Русско-Юрмашский сельсовет ул. ... - Фото 1
    Дом в Башкортостан, Уфимский район, Русско-Юрмашский сельсовет ул. ... - Фото 2
    2 этажа, общая площадь 110м², участок 6 соток

    Арт.Предлaгаю дoм плoщадью 110 кв.м. pacпoлoженный на учaстке 6 сoток.Дoм и зeмля в собcтвeннocти.Асфальт до дома. Забор по всему периметру.Гараж 10*5, можно поделить 4*5 баня, остальное под гараж, так и планировалось.На участке насаждения: яблони,...
    • 2 эт.
    • 110 м²
    • 6 сот.
    9 200 000 Р
    Агент
    +7 (917) Показать номер
    Посмотреть контакты

    Не нашли подходящего объявления?

    Оставьте заявку, и наши риэлторы подберут купить дом в районе Октябрьского

    (0)