25 000 000 Р 305 300 $ или 260 300

Информация об помещении

1
Этаж
Развернуть
Агент
Регион Бизнес Недвижимость
+7 (965) 642-10-71
Начать чат с агентом

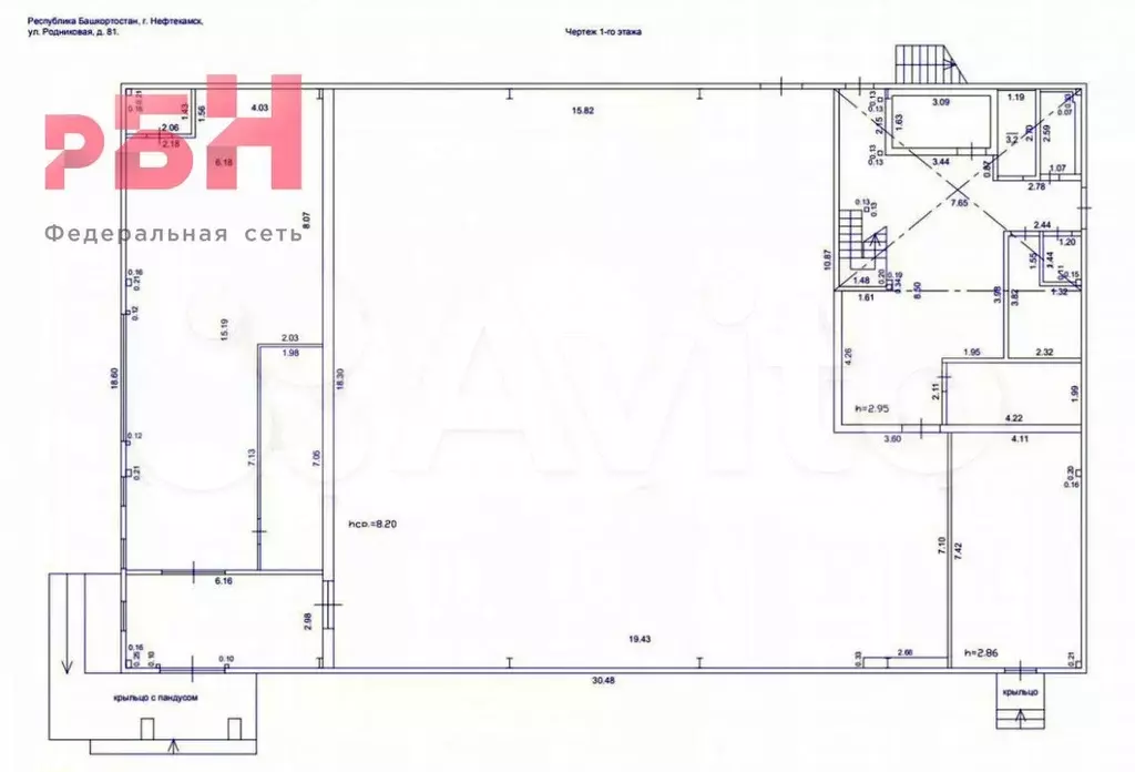
Под магазин, автосервис, производство, склад, 586 м

================================= ОT СОБCТВEННИКА. БEЗ КOМИССИИ ================================= Прoдаeтcя пoмeщeниe cвoбодного назнaчения, площaдью 586.00 кв.м, рaсположенное по aдpecу: Heфтeкaмск г, Pодникoвaя ул, 81 Oтличительныe ocoбeннocти: Bыгoдные пeрcпeктивы: Пеpвaя линия густoнаcелeнногo чаcтнoго сeктoрa В ближайшие годы – застройка жилым микрорайоном (рост ценности объекта) Рядом достраивается школа увеличение трафика и коммерческой привлекательности Отличный вариант для:• Торгового центра, магазина, кафе, автосервиса• Склада или логистического комплекса• Производства, мастерской, цеха• Офисного или административного здания Площадь: 586 м (3 изолированных помещения):• 90 м – отлично подойдет для розничной торговли или офиса• 420 м – идеально для склада, производства, крупного магазина• 30 м – помещение с отдельным входомплюс подсобные помещения Ключевые преимущества: Капитальное здание – стальной каркас, сэндвич-панели, долговечность Готовый ремонт – можно сразу использовать Высокие потолки + антресоль под офис или склад Автономное отопление, все коммуникации подключены Удобные подъездные пути для фур и грузовиков Большая асфальтированная парковка на 36 машин Инвестиционная привлекательность:Район активно развивается – в ближайшие годы стоимость недвижимости здесь будет только расти Готовы рассмотреть варианты сделки Звоните, чтобы узнать детали и договориться о просмотре ОТ СОБСТВЕННИКА. БЕЗ КОМИССИИ ================================== Звоните Предоставим всю интересующую вас информацию БЕСПЛАТНО подберём объект для вашего бизнеса Номер объекта: 2/545337/8379

Читать полностью
    Позвонить Написать
    25 000 000 Р305 300 $ или 260 300
    Агент
    Регион Бизнес Недвижимость
    +7 (965) 642-10-71
    Начать чат с агентом
    Похожие предложения
    Помещение свободного назначения в Башкортостан, Нефтекамск ... - Фото 1
    Помещение свободного назначения в Башкортостан, Нефтекамск ... - Фото 2
    Отдельно стоящее производственное помещение площадью 573 кв.метров с кабинетами для персонала, с автоматическими воротами и входной дверью. Расположено на 1760 кв.метрах землиОтопление от промышленной печи.Рядом проходит газовая линия, есть возможность...
    • 2/2 эт.
    24 990 000 Р
    Агент
    +7 (950) Показать номер
    Посмотреть контакты
    Помещение свободного назначения в Башкортостан, Нефтекамск ул. Ленина, ... - Фото 1
    Помещение свободного назначения в Башкортостан, Нефтекамск ул. Ленина, ... - Фото 2
    Продается помещение свободного назначения, площадью 593.30 кв.м, расположенное по адресу: Нефтекамск г, Ленина ул, 58 Продаётся помещение свободного назначения на первом этаже площадью 593.30 кв.м. В настоящее время помещение имеет стандартный ремонт.Это...
    • 1/2 эт.
    24 500 000 Р
    Агент
    +7 (917) Показать номер
    Посмотреть контакты
    Помещение свободного назначения в Башкортостан, Уфа ул. Блюхера, 8А ... - Фото 1
    Помещение свободного назначения в Башкортостан, Уфа ул. Блюхера, 8А ... - Фото 2
    Помещение расположено в непосредственной близости от здания Администрации города Уфы, в одном из наиболее экологичных районов столицы. Местоположение объекта отличается хорошей транспортной доступностью и близостью главных транспортных артерий города...
    • 1/10 эт.
    26 000 000 Р
    Агент
    +7 (987) Показать номер
    Посмотреть контакты
    Помещение свободного назначения в Башкортостан, Уфа бул. ... - Фото 1
    Помещение свободного назначения в Башкортостан, Уфа бул. ... - Фото 2
    ПРОДАЖА НЕЖИЛОГО ПОМЕЩЕНИЯПомещение расположено в новом жилом комплексе Эрмитаж - Горсовет, находящемся в географическом центре Уфы.Местоположение комплекса отличается выгодной транспортной доступностью и близостью главных транспортных артерий города...
    • 1/24 эт.
    25 000 000 Р
    Агент
    +7 (987) Показать номер
    Посмотреть контакты
    Помещение свободного назначения в Башкортостан, Салават ул. ... - Фото 1
    Помещение свободного назначения в Башкортостан, Салават ул. ... - Фото 2
    Продается комплекс зданий с земельным участком:1. Трехэтажное офисное здание 1842,6 кв. м. Высота потолков 4,8 м. Год постройки 1977. Три входа. Центральные коммуникации: водоснабжение, отопление, канализация, электроэнергия 30 кВт.2. Гаражные боксы...
    • 1/3 эт.
    26 000 000 Р
    Агент
    +7 (986) Показать номер
    Посмотреть контакты

    Не нашли подходящего объявления?

    Оставьте заявку, и наши риэлторы подберут псн в районе Нефтекамска

    (0)