2 525 000 Р 31 950 $ или 27 880

Информация о квартире

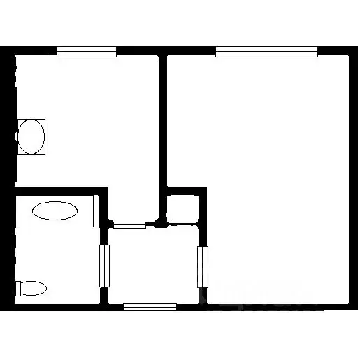
30 м2
Площадь
18 м2
Жилая
6 м2
Кухня
1
Комната
4
Этаж
9
Этажность

Дополнительная информация

Тип дома
кирпичный
Развернуть
Агент
+7 (917) 431-74-87
Начать чат с агентом

1-к кв. Башкортостан, Нефтекамск Юбилейный просп., 3 (30.1 м)

Продается уютная и теплая квартира в самом центре города на 4 этаже 9-этажного кирпичного дома. Совмещенный сан-узел в кафеле , 6-ти м. Лоджия застеклена.Это отличное предложение для тех, кому важен комфорт и удобство.Так как Рядом с домом расположены школы, детские сады, тропа здоровья,столовая Съем Слона, МФЦ, и парк, что делает местоположение квартиры еще более привлекательным. В шаговой доступности находятся супермаркеты Пятерочка,Магнит ,Красно-Белое, что обеспечивает удобство в повседневных покупках. Квартира подойдет как для молодых пар, так и для пожилых людей. Она также может стать отличным вариантом для инвестиций в недвижимость.Также стоит отметить, что ипотека и использование материнского капитала возможны в данном случае.Не упустите свой шанс приобрести идеальное жилье по отличной цене. Уют, функциональность и прекрасное месторасположение ждут вас Номер объекта: 1/538837/22099

Читать полностью

    Для того, чтобы купить однокомнатную квартиру по адресу: Нефтекамск, Юбилейный пр-кт., 3, позвоните по телефону +7 (917) 431-74-87. Торопитесь! Объявление №30091359577 о продаже однокомнатной квартиры опубликовано 21 ноября 2025.

    Позвонить Написать
    2 525 000 Р31 950 $ или 27 880
    Агент
    +7 (917) 431-74-87
    Начать чат с агентом
    Похожие предложения
    1-к кв. Башкортостан, Нефтекамск Социалистическая ул., 75В (30.2 м) - Фото 1
    1-к кв. Башкортостан, Нефтекамск Социалистическая ул., 75В (30.2 м) - Фото 2
    1-комнатная квартира, общая площадь 30м², жилая 18м², кухня 6м²

    Просторная и уютная однокомнатная квартира на 4 этаже 5-этажного дома площадью 30.2 кв.м. Это отличный вариант для тех, кто ценит экономичное жилье. В квартире есть уютная кухня площадью 6 кв.м. Сейчас в квартире стандартный ремонт, что позволит вам сразу...
    • 30 м²
    • 1-ком
    • 4/5 эт.
    • панельный
    2 570 000 Р
    Агент
    +7 (917) Показать номер
    Посмотреть контакты
    1-к кв. Башкортостан, Нефтекамск ул. Дзержинского, 6 (39.9 м) - Фото 1
    1-к кв. Башкортостан, Нефтекамск ул. Дзержинского, 6 (39.9 м) - Фото 2
    1-комнатная квартира, общая площадь 39м², жилая 18м², кухня 7м²

    Продается уютная 1 квартира улучшенной планировки , просторный зал и большая кухня , просторный балкон с видом на лес . Окна смотрят на юг , что позволяет наблюдать рассвет и закат с видом на природу На балконе хорошие деревянные полы , застеклен окнами...
    • 39 м²
    • 1-ком
    • 6/9 эт.
    • панельный
    2 590 000 Р
    Агент
    +7 (986) Показать номер
    Посмотреть контакты
    1-к кв. Башкортостан, Нефтекамск Социалистическая ул., 67 (30.0 м) - Фото 1
    1-к кв. Башкортостан, Нефтекамск Социалистическая ул., 67 (30.0 м) - Фото 2
    1-комнатная квартира, общая площадь 30м², жилая 18м², кухня 6м²

    Прекрасное предложение для тех, кто ищет жилье в центре города со всей необходимой инфраструктурой в шаговой доступности. Эта уютная однокомнатная квартира на 5 этаже 5-этажного дома площадью 30 кв.м. идеально подойдет как для семьи, так и для студентов.Квартира...
    • 30 м²
    • 1-ком
    • 5/5 эт.
    • кирпичный
    2 500 000 Р
    Агент
    +7 (917) Показать номер
    Посмотреть контакты
    1-комнатная квартира: Нефтекамск, Социалистическая улица, 75В (30.2 м) - Фото 1
    1-комнатная квартира: Нефтекамск, Социалистическая улица, 75В (30.2 м) - Фото 2
    1-комнатная квартира, общая площадь 30м², жилая 18м², кухня 6м²

    Просторная и уютная однокомнатная квартира на 4 этаже 5-этажного дома площадью 30.2 кв.м. Это отличный вариант для тех, кто ценит экономичное жилье. В квартире есть уютная кухня площадью 6 кв.м. Сейчас в квартире стандартный ремонт, что позволит вам сразу...
    • 30 м²
    • 1-ком
    • 4/5 эт.
    2 600 000 Р
    Агент
    +7 (937) Показать номер
    Посмотреть контакты
    1-комнатная квартира: Нефтекамск, Социалистическая улица, 67 (30 м) - Фото 1
    1-комнатная квартира: Нефтекамск, Социалистическая улица, 67 (30 м) - Фото 2
    1-комнатная квартира, общая площадь 30м², жилая 18м², кухня 6м²

    Прекрасное предложение для тех, кто ищет жилье в центре города со всей необходимой инфраструктурой в шаговой доступности. Эта уютная однокомнатная квартира на 5 этаже 5-этажного дома площадью 30 кв.м. идеально подойдет как для семьи, так и для студентов.Квартира...
    • 30 м²
    • 1-ком
    • 5/5 эт.
    2 500 000 Р
    Агент
    +7 (937) Показать номер
    Посмотреть контакты

    Не нашли подходящего объявления?

    Оставьте заявку, и наши риэлторы подберут квартиру в районе Нефтекамска

    (0)