2 760 000 Р 34 020 $ или 29 020

Информация о квартире

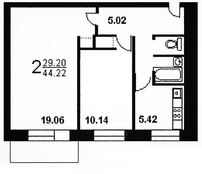
48 м2
Площадь
2
Комнаты
5
Этаж
5
Этажность
Развернуть
Агент
+7 (986) 700-79-98
Начать чат с агентом

2-комнатная квартира: Кумертау, улица Салавата, 1 (48.3 м)

Продается 2-комнатная квартира — 48,3 м, 5 этаж* Уютная и светлая двухкомнатная квартира в отличном районе Общая площадь — 48,3 м Этаж — 5 В подарок остаётся *современная кухонная мебель* Просторный *6-метровый балкон* — идеален для отдыха или хранения Рядом расположены *школы, детские сады*, магазины и остановки общественного транспорта Соседи — *доброжелательные и спокойные* люди Квартира готова к заселению — всё необходимое уже есть Отличный вариант для семьи или как первое жильё.

Читать полностью

    Для того, чтобы купить двухкомнатную квартиру по адресу: Кумертау, ул. Салавата, 1, позвоните по телефону +7 (986) 700-79-98. Торопитесь! Объявление №30091622635 о продаже двухкомнатной квартиры опубликовано 06 ноября 2025.

    Позвонить Написать
    2 760 000 Р34 020 $ или 29 020
    Агент
    +7 (986) 700-79-98
    Начать чат с агентом
    Похожие предложения
    2-к кв. Башкортостан, Кумертау Логовая ул. (45.3 м) - Фото 1
    2-к кв. Башкортостан, Кумертау Логовая ул. (45.3 м) - Фото 2
    2-комнатная квартира, общая площадь 45м², жилая 27м², кухня 7м²

    Арт.Продаётся уютная двухкомнатная квартира по ул.Логовая общей площадью 45.3 кв.м., расположенная на втором этаже пятиэтажного кирпичного дома, построенного в 1977 году. Жилая площадь составляет 27 кв.м, а кухня 8 кв.м.Состояние квартиры позволит новым...
    • 45 м²
    • 2-ком
    • 2/5 эт.
    • кирпичный
    2 800 000 Р
    Агент
    +7 (917) Показать номер
    Посмотреть контакты
    2-к кв. Башкортостан, Кумертау ул. Дзержинского (45.5 м) - Фото 1
    2-к кв. Башкортостан, Кумертау ул. Дзержинского (45.5 м) - Фото 2
    2-комнатная квартира, общая площадь 45м², жилая 34м², кухня 6м²

    Арт.Продам отличную 2х комнатную квартиру на 2 этаже, общей площадью 45,5кв.м, в центре города.
    • 45 м²
    • 2-ком
    • 2/5 эт.
    • кирпичный
    2 780 000 Р
    Агент
    +7 (917) Показать номер
    Посмотреть контакты
    3-к кв. Башкортостан, Кумертау ул. Худайбердина (58.1 м) - Фото 1
    3-к кв. Башкортостан, Кумертау ул. Худайбердина (58.1 м) - Фото 2
    3-комнатная квартира, общая площадь 58м², жилая 42м², кухня 5м²

    Арт.Продается 3-комнатная квартира в востребованном районе города по ул.Худайбердина 5.Эту квартиру можно приобрести в ипотеку по сниженной ставке Расположена на 4 этаже 5-этажного дома, полностью готова к воплощению ваших дизайнерских идей.интересная...
    • 58 м²
    • 3-ком
    • 4/5 эт.
    • кирпичный
    2 800 000 Р
    Агент
    +7 (917) Показать номер
    Посмотреть контакты
    2-к кв. Башкортостан, Кумертау ул. Машиностроителей (53.8 м) - Фото 1
    2-к кв. Башкортостан, Кумертау ул. Машиностроителей (53.8 м) - Фото 2
    2-комнатная квартира, общая площадь 53м², жилая 31м², кухня 8м²

    Арт.Продаётся уютная двухкомнатная квартира по ул.Машиностроителей общей площадью 53.8 кв.м., расположенная на четвёртом этаже пятиэтажного кирпичного дома, построенного в 1984 году. Жилая площадь составляет 31 кв.м, а кухня 8 кв.м. Квартира с косметическим...
    • 53 м²
    • 2-ком
    • 4/5 эт.
    • кирпичный
    2 700 000 Р
    Агент
    +7 (917) Показать номер
    Посмотреть контакты
    3-к кв. Башкортостан, Кумертау Лесная ул. (62.6 м) - Фото 1
    3-к кв. Башкортостан, Кумертау Лесная ул. (62.6 м) - Фото 2
    3-комнатная квартира, общая площадь 62м², жилая 35м², кухня 7м²

    Арт.В продаже для Вас квартира новой планировки в экологически чистом, спокойном районе нашего города В квартире тепло и светло, просторно и вместительно С лоджии Вам будут обеспечены самые лучшие виды на лес, трамплин-как на ладони, шикарные закаты...
    • 62 м²
    • 3-ком
    • 5/5 эт.
    • кирпичный
    2 900 000 Р
    Агент
    +7 (917) Показать номер
    Посмотреть контакты

    Не нашли подходящего объявления?

    Оставьте заявку, и наши риэлторы подберут квартиру в районе Кумертау

    (0)