7 500 000 Р 93 030 $ или 80 260

Информация о коттедже

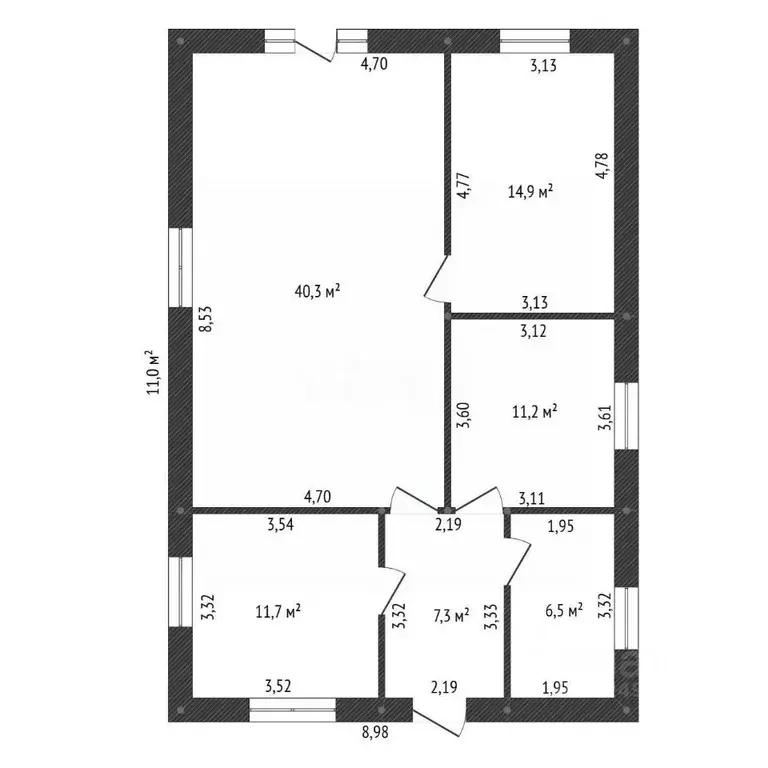
126 м2
Площадь
2
Этажность
8 cоток
Участок

Дополнительная информация

Дом продаётся вместе с участком
есть
Развернуть
Агент
+7 (917) 431-86-74
Начать чат с агентом

Дом в Башкортостан, Ишимбайский район, с. Ишеево (126 м)

Продается хороший просторный дом 126 кв. м. в Новом Ишеево. Площадь земельного участка 8 соток. Дом строился для себя. Ремонт не завершен. Во дворе имеется огромный хозблок. В нем совмещены гараж с автоматическими воротами, хорошая баня, летний домик, сарай. Электроснабжение проведено на 380 в., скважина, газофикация проходит по улице, септик имеется. Соседи активно строятся. В основном все молодые семьи. В этом году планируется отпыпка дороги. Очень красивые места. Идеально подходит для семьи. Нет городской суеты. Тихо спокойно. Участок находится в середине поселка. Шума и пыли от главной дороги нет. Не топит. Дорога в зимний период чистится. От города минут 5 езды. Помогу одобрить ипотеку. Юридическое сопровождение документов. Код пользователя: 141816Номер в базе: 8383396

Читать полностью

    Для того, чтобы купить 2-этажный коттедж по адресу: Ишеево, позвоните по телефону +7 (917) 431-86-74. Торопитесь! Объявление №50016631935 о продаже двухэтажного коттеджа опубликовано 27 марта 2026.

    Позвонить Написать
    7 500 000 Р93 030 $ или 80 260
    Агент
    +7 (917) 431-86-74
    Начать чат с агентом
    Похожие предложения
    Дом в Башкортостан, Стерлитамак Набережная ул., 42 (62 м) - Фото 1
    Дом в Башкортостан, Стерлитамак Набережная ул., 42 (62 м) - Фото 2
    1 этаж, общая площадь 62м², участок 21 сотка

    id:288. Продам жилой дом и земельный участок. Одноэтажное здание площадью 62 квадратных метра расположено на участке в 21 сотку, что позволяет наслаждаться простором и свободой. В доме три комнаты, есть газовое отопление, вода, канализация. Чистая продажа....
    • 1 эт.
    • 62 м²
    • 21 сот.
    7 450 000 Р
    Агент
    +7 (917) Показать номер
    Посмотреть контакты
    Продажа дома, Нагаево, Самобытный переулок - Фото 1
    с чистовой отделкой, 2 этажа, общая площадь 150м², год постройки 2025, участок 6.7 соток

    Объявление №44920. Предлагаем вашему вниманию отличный дом, по хорошей цене, в отличной локации! Не упустите шанс приобрести коттедж в одной из самых востребованных локаций п. Нагаево. В 10 минутах ходьбы от данной улицы выделено место и прошло межевание...
    • 2 эт.
    • 150 м²
    • 6.7 сот.
    • свет
    7 500 000 Р
    Агент
    +7 (962) Показать номер
    Посмотреть контакты
    Продажа дома, Иглино, Иглинский район, ул. Пушкина - Фото 1
    Продажа дома, Иглино, Иглинский район, ул. Пушкина - Фото 2
    Продажа дома, Иглино, Иглинский район, ул. Пушкина - Фото 3
    Продажа дома, Иглино, Иглинский район, ул. Пушкина - Фото 4
    Продажа дома, Иглино, Иглинский район, ул. Пушкина - Фото 5
    Продажа дома, Иглино, Иглинский район, ул. Пушкина - Фото 6
    Продажа дома, Иглино, Иглинский район, ул. Пушкина - Фото 7
    Продажа дома, Иглино, Иглинский район, ул. Пушкина - Фото 8
    Продажа дома, Иглино, Иглинский район, ул. Пушкина - Фото 9
    Продажа дома, Иглино, Иглинский район, ул. Пушкина - Фото 10
    Продажа дома, Иглино, Иглинский район, ул. Пушкина - Фото 11
    Продажа дома, Иглино, Иглинский район, ул. Пушкина - Фото 12
    с чистовой отделкой, 1 этаж, общая площадь 100м², год постройки 2025, участок 7.5 соток

    Объявление №45546. Продается просторный каменный дом в СНТ «Здоровье», с. Иглино — идеален для большой семьи! Общая площадь дома: 80 м² Участок:7,5 соток (право собственности, межевание есть) Материал стен: теплоэффективный блок...
    • 1 эт.
    • 100 м²
    • 7.5 сот.
    • свет
    7 500 000 Р
    Агент
    +7 (962) Показать номер
    Посмотреть контакты
    Продажа дома, Иглино, Иглинский район, ул. Якутова - Фото 1
    Продажа дома, Иглино, Иглинский район, ул. Якутова - Фото 2
    Продажа дома, Иглино, Иглинский район, ул. Якутова - Фото 3
    Продажа дома, Иглино, Иглинский район, ул. Якутова - Фото 4
    Продажа дома, Иглино, Иглинский район, ул. Якутова - Фото 5
    Продажа дома, Иглино, Иглинский район, ул. Якутова - Фото 6
    Продажа дома, Иглино, Иглинский район, ул. Якутова - Фото 7
    Продажа дома, Иглино, Иглинский район, ул. Якутова - Фото 8
    Продажа дома, Иглино, Иглинский район, ул. Якутова - Фото 9
    Продажа дома, Иглино, Иглинский район, ул. Якутова - Фото 10
    Продажа дома, Иглино, Иглинский район, ул. Якутова - Фото 11
    Продажа дома, Иглино, Иглинский район, ул. Якутова - Фото 12
    Продажа дома, Иглино, Иглинский район, ул. Якутова - Фото 13
    Продажа дома, Иглино, Иглинский район, ул. Якутова - Фото 14
    Продажа дома, Иглино, Иглинский район, ул. Якутова - Фото 15
    Продажа дома, Иглино, Иглинский район, ул. Якутова - Фото 16
    Продажа дома, Иглино, Иглинский район, ул. Якутова - Фото 17
    Продажа дома, Иглино, Иглинский район, ул. Якутова - Фото 18
    Продажа дома, Иглино, Иглинский район, ул. Якутова - Фото 19
    с чистовой отделкой, 1 этаж, общая площадь 80м², год постройки 2025, участок 7.5 соток

    Объявление №45770. Продается новый каменный дом в чистовой отделке в СНТ Здоровье с. Иглино Предлагаем купить дом для большой и дружной семьи, который позволит вам разместить всех членов семьи в отдельных комнатах. Основные характеристики: Площадь дома:...
    • 1 эт.
    • 80 м²
    • 7.5 сот.
    • свет
    7 500 000 Р
    Агент
    +7 (962) Показать номер
    Посмотреть контакты
    Дом в Октябрьский, Заитовская улица, 31 (105 м) - Фото 1
    Дом в Октябрьский, Заитовская улица, 31 (105 м) - Фото 2
    1 этаж, общая площадь 105м², участок 6 соток

    Объявление №1928. В микрорайоне Заитово предлагаю вашему вниманию дом 105 кв.м. в котором уже сделано самое сложное и дорогое Осталось только добавить финишные покрытия по своему вкусу. Это идеальный вариант для тех, кто хочет жить в экологически чистом...
    • 1 эт.
    • 105 м²
    • 6 сот.
    7 500 000 Р
    Агент
    +7 (965) Показать номер
    Посмотреть контакты

    Не нашли подходящего объявления?

    Оставьте заявку, и наши риэлторы подберут купить дом в районе Ишеево

    (0)