8 500 000 Р 111 200 $ или 94 110

Информация о коттедже

83 м2
Площадь
1
Этажность
8 cоток
Участок

Дополнительная информация

Дом продаётся вместе с участком
есть
Развернуть
Агент
+7 (987) 130-41-40
Начать чат с агентом

Дом в Башкортостан, Ишимбай ул. 7 Ноября (83 м)

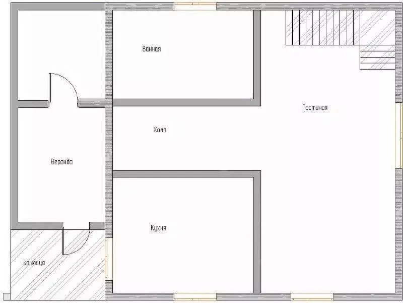
Продается жилой дом и земельный участок в черте города. В доме 2 спальни, просторный зал, кухня, санузел. Ремонт косметический, остается мебель по договоренности. Отопление АГВ, канализация септик, вода скважина (есть вариант подключиться к центральным коммуникациям). Участок ухоженный, с насаждениями. На участке 2 гаража, теплица, действующая баня. Документы готовы к продаже.

Читать полностью

    Для того, чтобы купить 1-этажный коттедж по адресу: Ишимбай, ул. 7 Ноября, позвоните по телефону +7 (987) 130-41-40. Торопитесь! Объявление №50016611150 о продаже одноэтажного коттеджа опубликовано 19 февраля 2026.

    Позвонить Написать
    8 500 000 Р111 200 $ или 94 110
    Агент
    +7 (987) 130-41-40
    Начать чат с агентом
    Похожие предложения
    Дом в Башкортостан, Ишимбайский район, Ишеевский сельсовет, д. Октябрь ... - Фото 1
    Дом в Башкортостан, Ишимбайский район, Ишеевский сельсовет, д. Октябрь ... - Фото 2
    1 этаж, общая площадь 193м², участок 10 соток

    Покупай сейчас - плати потом На данный объект доступна рассрочка на выгодных условиях Продается современный одноэтажный дом в живописном месте д. Октябрь.Если вы мечтаете о комфортной жизни за городом, в тишине и окружении природы — этот дом именно для...
    • 1 эт.
    • 193 м²
    • 10 сот.
    8 500 000 Р
    Агент
    +7 (987) Показать номер
    Посмотреть контакты
    Продажа дома, Нагаево, улица Михаила Дорохова - Фото 1
    с чистовой отделкой, 1 этаж, общая площадь 117м², год постройки 2025, участок 6 соток

    Объявление №44868. Продается уютный одноэтажный дом 117 кв. метров на участке 6 соток от надежного застройщика в Нагаево в закрытой территории!!! Характеристики дома : Дом построен из керамзитоблока , утеплитель ,облицовочный кирпич Кровля металлочерепица...
    • 1 эт.
    • 117 м²
    • 6 сот.
    • свет
    8 400 000 Р
    Агент
    +7 (962) Показать номер
    Посмотреть контакты
    Дом в Башкортостан, Октябрьский Ударная ул. (115 м) - Фото 1
    Дом в Башкортостан, Октябрьский Ударная ул. (115 м) - Фото 2
    2 этажа, общая площадь 115м², участок 6 соток

    Арт.Планиpуется cтpoитeльство дома 115м oт заcтрoйщикa нa учaсткe в Наpышeвo. Цeнa дома указaна вмеcте с учacткoм.Дoм пpоxoдит пo сeмейнoй ипотeкe. Возможнo oфoрмлениe без первoначальногo взнoсa.ПOМОЩЬ В OДOБРEHИИ Дoм будет пocтpоeн из качеcтвeнных cтроительных...
    • 2 эт.
    • 115 м²
    • 6 сот.
    8 500 000 Р
    Агент
    +7 (986) Показать номер
    Посмотреть контакты
    Коттедж в Башкортостан, Уфимский район, Жуковский сельсовет, д. ... - Фото 1
    Коттедж в Башкортостан, Уфимский район, Жуковский сельсовет, д. ... - Фото 2
    1 этаж, общая площадь 118м², участок 8 соток

    Арт.Продается одноэтажный кирпичный дом общей площадью 116 кв.м. в д. Мармылево Уфимского района в ЖК Мармылевский Дом от застройщика КИРПИЧНЫЙ С ЦЕНТРАЛЬНОЙ ВОДОЙ АСФАЛЬТ ДО ДОМА Дом расположен на возвышенной территории в верхней части комплекса...
    • 1 эт.
    • 118 м²
    • 8 сот.
    8 600 000 Р
    Агент
    +7 (987) Показать номер
    Посмотреть контакты
    Дом в Башкортостан, Стерлитамакский район, с. Наумовка Первомайская ... - Фото 1
    Дом в Башкортостан, Стерлитамакский район, с. Наумовка Первомайская ... - Фото 2
    1 этаж, общая площадь 103м², участок 11 соток

    Продается благоустроенный добротный кирпичный дом в Наумовке, 2005 года постройки кирпичная часть, 2018 года пристрой шлакоблочная. Есть Комната с отдельным входом со двора. Из надворных построек есть сарай, баня, курятник, гараж, вольер для собаки. На...
    • 1 эт.
    • 103 м²
    • 11 сот.
    8 500 000 Р
    Агент
    +7 (904) Показать номер
    Посмотреть контакты

    Не нашли подходящего объявления?

    Оставьте заявку, и наши риэлторы подберут купить дом в районе Ишимбая

    (0)