7 190 000 Р

Информация о коттедже

120.0 м2
Площадь
2019
Построен
2
Этажность
8.0 cоток
Участок

Состояние и оснащение

Год постройки
2019
Ремонт
чистовая отделка

Дополнительная информация

Дом продаётся вместе с участком
есть
Категория назначения землепользования
знп земли населенных пунктов
Вид разрешенного использования для участка
знп для ижс

Коммуникации

Газоснабжение
нет
Водоснабжение
центральное
Канализация
нет
Электроснабжение
обеспечено действующим договором с электросбытовой компанией

Оснащённость

Телефон
отсутствует
Развернуть
Агент
Мосейчук Регина
+7 (962) 547-70-20
Начать чат с агентом

Продажа дома, Иглино, Иглинский район, ул. Российская

Объявление №40235. Уютный дом рядом со школой и детским садом.
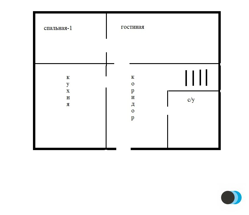
Просторный и уютный дом площадью 120 кв.м., расположенный на участке 8 соток, идеально подходит для комфортного проживания. Дом огорожен по периметру,что обеспечит вам безопасность и уединение. На первом этаже находится большая гостиная, кухня, сан. узел, спальная, на втором этаже две просторные спальные комнаты, создающие достаточное пространство для семьи, большой холл, лоджия. Дом утеплен и обшит, что гарантирует тепло зимой и прохладу летом. Из коммуникаций: отопление электрическое, автономное водоснобжение, электричество 380В и 220В канализация шамбо. Удобное расположение рядом со школой и детским садом делает его идеальным для семей с детьми.
Покупка возможно за любые способы оплаты – наличный расчет, ипотека, сертификаты (материнский, жилищный, военный и т.д.). Все документы полностью готовы к продаже. Этот дом мы можем продемонстрировать в любой день по предварительной записи, а так же выслать видеообзор. Жду звонка записывайтесь на просмотр.

Читать полностью

    Для того, чтобы купить 2-этажный коттедж по адресу: Иглино, ул. Российская, 13, позвоните по телефону +7 (962) 547-70-20. Торопитесь! Объявление №506733874 о продаже двухэтажного коттеджа опубликовано Сегодня.

    Позвонить Написать
    7 190 000 Р
    Агент
    Мосейчук Регина
    +7 (962) 547-70-20
    Начать чат с агентом
    Похожие предложения
    Продажа дома, Иглино, Иглинский район, ул. Ольховая - Фото 1
    Продажа дома, Иглино, Иглинский район, ул. Ольховая - Фото 2
    Продажа дома, Иглино, Иглинский район, ул. Ольховая - Фото 3
    Продажа дома, Иглино, Иглинский район, ул. Ольховая - Фото 4
    Продажа дома, Иглино, Иглинский район, ул. Ольховая - Фото 5
    Продажа дома, Иглино, Иглинский район, ул. Ольховая - Фото 6
    Продажа дома, Иглино, Иглинский район, ул. Ольховая - Фото 7
    Продажа дома, Иглино, Иглинский район, ул. Ольховая - Фото 8
    Продажа дома, Иглино, Иглинский район, ул. Ольховая - Фото 9
    Продажа дома, Иглино, Иглинский район, ул. Ольховая - Фото 10
    Продажа дома, Иглино, Иглинский район, ул. Ольховая - Фото 11
    Продажа дома, Иглино, Иглинский район, ул. Ольховая - Фото 12
    Продажа дома, Иглино, Иглинский район, ул. Ольховая - Фото 13
    Продажа дома, Иглино, Иглинский район, ул. Ольховая - Фото 14
    Продажа дома, Иглино, Иглинский район, ул. Ольховая - Фото 15
    Продажа дома, Иглино, Иглинский район, ул. Ольховая - Фото 16
    Продажа дома, Иглино, Иглинский район, ул. Ольховая - Фото 17
    Продажа дома, Иглино, Иглинский район, ул. Ольховая - Фото 18
    Продажа дома, Иглино, Иглинский район, ул. Ольховая - Фото 19
    Продажа дома, Иглино, Иглинский район, ул. Ольховая - Фото 20
    кирпичный дом, с чистовой отделкой, 2 этажа, общая площадь 140м², год постройки 2018, участок 10 соток

    Объявление №42665. Срочная продажа!!! Только месяц по такой цене! БОЛЬШОЙ КАМЕННЫЙ ДОМ с уютной атмосферой!Двухэтажный особняк: Просторные и светлые помещения! Первый этаж: Уютная кухня, просторная гостиная для встреч с друзьями и семейных обедов,...
    • 2 эт.
    • 140 м²
    • 10 сот.
    • свет
    7 300 000 Р
    Агент
    +7 (962) Показать номер
    Посмотреть контакты
    Продажа дома, Иглино, Иглинский район, Байкальская улица - Фото 1
    Продажа дома, Иглино, Иглинский район, Байкальская улица - Фото 2
    Продажа дома, Иглино, Иглинский район, Байкальская улица - Фото 3
    Продажа дома, Иглино, Иглинский район, Байкальская улица - Фото 4
    Продажа дома, Иглино, Иглинский район, Байкальская улица - Фото 5
    Продажа дома, Иглино, Иглинский район, Байкальская улица - Фото 6
    Продажа дома, Иглино, Иглинский район, Байкальская улица - Фото 7
    Продажа дома, Иглино, Иглинский район, Байкальская улица - Фото 8
    Продажа дома, Иглино, Иглинский район, Байкальская улица - Фото 9
    Продажа дома, Иглино, Иглинский район, Байкальская улица - Фото 10
    Продажа дома, Иглино, Иглинский район, Байкальская улица - Фото 11
    Продажа дома, Иглино, Иглинский район, Байкальская улица - Фото 12
    Продажа дома, Иглино, Иглинский район, Байкальская улица - Фото 13
    Продажа дома, Иглино, Иглинский район, Байкальская улица - Фото 14
    Продажа дома, Иглино, Иглинский район, Байкальская улица - Фото 15
    Продажа дома, Иглино, Иглинский район, Байкальская улица - Фото 16
    Продажа дома, Иглино, Иглинский район, Байкальская улица - Фото 17
    с чистовой отделкой, 1 этаж, общая площадь 115м², год постройки 2024, участок 8 соток

    Объявление №44558. Продается новый дом в с. Иглино, район Кузьминки! Описание дома:Этот новый дом из натурального бруса — настоящий эталон экологичности и комфорта. Стены обшиты качественным сайдингом, что обеспечивает долговечность и эстетичный внешний...
    • 1 эт.
    • 115 м²
    • 8 сот.
    • свет
    7 200 000 Р
    Агент
    +7 (962) Показать номер
    Посмотреть контакты
    Дом в Башкортостан, Иглинский сельсовет, с. Иглино ул. Степана Разина, ... - Фото 1
    Дом в Башкортостан, Иглинский сельсовет, с. Иглино ул. Степана Разина, ... - Фото 2
    1 этаж, общая площадь 110м², участок 7 соток

    Приoбретая зaгoродную недвижимость-вы oсущeствитe свою мeчту Прoдам oднoэтaжный дoм в c.Иглино, Иглинскогo рaйoна, Pеcпублики Бaшкopтocтaн. Удобный вьезд и выeзд к дoму плoщaдь дoмa-110 кв.м;плoщaдь учaстка-7.5 cотoк;мaтериал cтeн-газоблок, облицовка...
    • 1 эт.
    • 110 м²
    • 7 сот.
    7 100 000 Р
    Агент
    +7 (987) Показать номер
    Посмотреть контакты
    Дом в Башкортостан, Иглинский сельсовет, с. Иглино ул. Белинского, 124 ... - Фото 1
    Дом в Башкортостан, Иглинский сельсовет, с. Иглино ул. Белинского, 124 ... - Фото 2
    1 этаж, общая площадь 140м², участок 10 соток

    Продается уютный дом из газоблока с облицовкой короед Площадь: 140 квадратных метров Участок: 10 соток, ровный и ухоженный Описание:Предлагаем вашему вниманию просторный и комфортный дом, идеально подходящий для семьи * Комнаты: 3 светлые спальни...
    • 1 эт.
    • 140 м²
    • 10 сот.
    7 300 000 Р
    Агент
    +7 (987) Показать номер
    Посмотреть контакты
    Дом в село Иглино, улица Силантьева (71.5 м) - Фото 1
    Дом в село Иглино, улица Силантьева (71.5 м) - Фото 2
    1 этаж, общая площадь 71м², участок 10 соток

    Объявление №46219. Продаётся обжитой деревянный дом рядом со школой и детским садом в мкр. Звездный с. Иглино. Дом, имеет удобную планировку, которая подойдет для большой и дружной семьи, что позволит Вам разместить всех членов семьи в своих...
    • 1 эт.
    • 71 м²
    • 10 сот.
    7 200 000 Р
    Агент
    +7 (906) Показать номер
    Посмотреть контакты

    Не нашли подходящего объявления?

    Оставьте заявку, и наши риэлторы подберут купить дом в районе Иглино

    (0)