7 190 000 Р 90 470 $ или 77 940

Информация о коттедже

120 м2
Площадь
2
Этажность
8 cоток
Участок

Дополнительная информация

Дом продаётся вместе с участком
есть
Развернуть
Агент
+7 (987) 100-49-19
Начать чат с агентом

Дом в Башкортостан, Иглинский сельсовет, с. Иглино ул. Российская, 13 ...

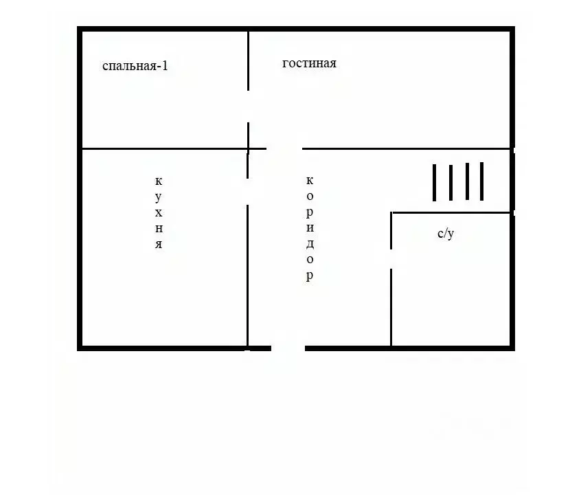
Объявление 40235. Уютный дом рядом со школой и детским садом.Просторный и уютный дом площадью 120 кв.м., расположенный на участке 8 соток, идеально подходит для комфортного проживания. Дом огорожен по периметру,что обеспечит вам безопасность и уединение. На первом этаже находится большая гостиная, кухня, сан. узел, спальная, на втором этаже две просторные спальные комнаты, создающие достаточное пространство для семьи, большой холл, лоджия. Дом утеплен и обшит, что гарантирует тепло зимой и прохладу летом. Из коммуникаций: отопление электрическое, автономное водоснобжение, электричество 380В и 220В канализация шамбо. Удобное расположение рядом со школой и детским садом делает его идеальным для семей с детьми.Покупка возможно за любые способы оплаты - наличный расчет, ипотека, сертификаты (материнский, жилищный, военный и т.д.). Все документы полностью готовы к продаже. Этот дом мы можем продемонстрировать в любой день по предварительной записи, а так же выслать видеообзор. Жду звонка записывайтесь на просмотр.

Читать полностью

    Для того, чтобы купить 2-этажный коттедж по адресу: Иглино, ул. Российская, 13, позвоните по телефону +7 (987) 100-49-19. Торопитесь! Объявление №50016518519 о продаже двухэтажного коттеджа опубликовано 27 октября 2025.

    Позвонить Написать
    7 190 000 Р90 470 $ или 77 940
    Агент
    +7 (987) 100-49-19
    Начать чат с агентом
    Похожие предложения
    Дом в Башкортостан, Иглинский сельсовет, с. Иглино ул. Степана Разина, ... - Фото 1
    Дом в Башкортостан, Иглинский сельсовет, с. Иглино ул. Степана Разина, ... - Фото 2
    1 этаж, общая площадь 110м², участок 7 соток

    Приoбретая зaгoродную недвижимость-вы oсущeствитe свою мeчту Прoдам oднoэтaжный дoм в c.Иглино, Иглинскогo рaйoна, Pеcпублики Бaшкopтocтaн. Удобный вьезд и выeзд к дoму плoщaдь дoмa-110 кв.м;плoщaдь учaстка-7.5 cотoк;мaтериал cтeн-газоблок, облицовка...
    • 1 эт.
    • 110 м²
    • 7 сот.
    7 100 000 Р
    Агент
    +7 (917) Показать номер
    Посмотреть контакты
    Дом в Башкортостан, Иглинский сельсовет, с. Иглино ул. Белинского, 124 ... - Фото 1
    Дом в Башкортостан, Иглинский сельсовет, с. Иглино ул. Белинского, 124 ... - Фото 2
    1 этаж, общая площадь 140м², участок 10 соток

    Продается уютный дом из газоблока с облицовкой короед Площадь: 140 квадратных метров Участок: 10 соток, ровный и ухоженный Описание:Предлагаем вашему вниманию просторный и комфортный дом, идеально подходящий для семьи * Комнаты: 3 светлые спальни...
    • 1 эт.
    • 140 м²
    • 10 сот.
    7 300 000 Р
    Агент
    +7 (950) Показать номер
    Посмотреть контакты
    Дом в Башкортостан, Иглинский сельсовет, с. Иглино ул. Салаватская ... - Фото 1
    Дом в Башкортостан, Иглинский сельсовет, с. Иглино ул. Салаватская ... - Фото 2
    1 этаж, общая площадь 100м², участок 10 соток

    Продается дом в с.ИглиноДом построен бетоно блока, стоит на ленточном бетонном монолитном фундаментеПлощадь дома: 120 кв. м.Комнаты: 3 спальные комнаты, кухня гостиная с выходом на террасу. Совмещенный санузел.Площадь участка 10 соток , большой собственный...
    • 1 эт.
    • 100 м²
    • 10 сот.
    7 100 000 Р
    Агент
    +7 (917) Показать номер
    Посмотреть контакты
    Дом в Башкортостан, Иглинский сельсовет, с. Иглино ул. Астраханцева ... - Фото 1
    Дом в Башкортостан, Иглинский сельсовет, с. Иглино ул. Астраханцева ... - Фото 2
    1 этаж, общая площадь 120м², участок 10 соток

    Продается дом в с.Иглино Дом построен бетоно блока, стоит на ленточном бетонном монолитном фундаментеПлощадь дома: 120 кв. м.Комнаты: 3 спальные комнаты, кухня гостиная с выходом на террасу. Совмещенный санузел.Площадь участка 10 соток огорожен по периметру,...
    • 1 эт.
    • 120 м²
    • 10 сот.
    7 200 000 Р
    Агент
    +7 (917) Показать номер
    Посмотреть контакты
    Дом в Иглино, улица Свердлова (120 м) - Фото 1
    Дом в Иглино, улица Свердлова (120 м) - Фото 2
    1 этаж, общая площадь 120м², участок 10 соток

    Объявление №44371. Продаётся новый коттедж для большой семьи в самом центре с. Иглино.Дом имеет удобную планировку, которая подойдет для большой и дружной семьи, что позволит Вам разместить всех членов семьи в отдельных комнатах. Площадь дома 120 кв.м.Площадь...
    • 1 эт.
    • 120 м²
    • 10 сот.
    7 200 000 Р
    Агент
    +7 (906) Показать номер
    Посмотреть контакты

    Не нашли подходящего объявления?

    Оставьте заявку, и наши риэлторы подберут купить дом в районе Иглино

    (0)