12 850 000 Р 168 900 $ или 144 900

Информация о коттедже

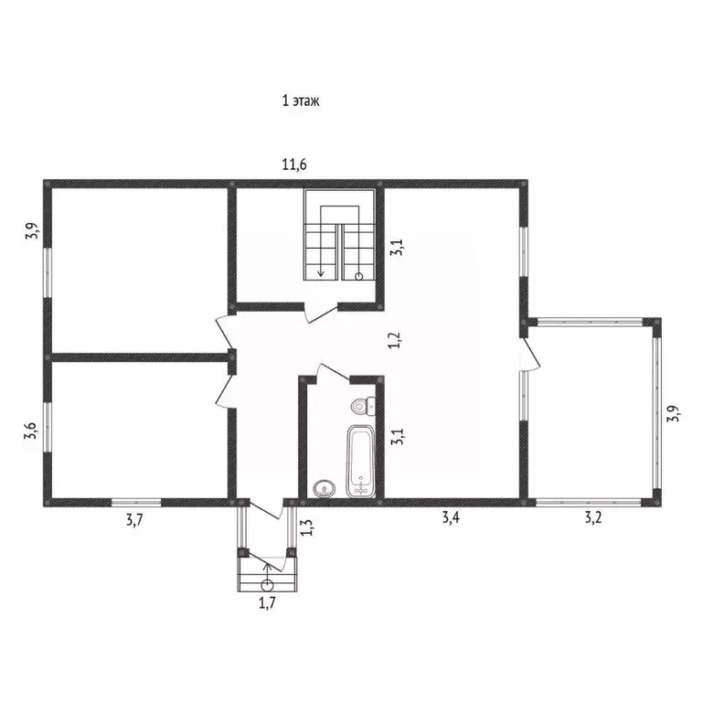
130 м2
Площадь
1
Этажность
10 cоток
Участок

Дополнительная информация

Дом продаётся вместе с участком
есть
Развернуть
Агент
+7 (917) 363-65-21
Начать чат с агентом

Дом в Башкортостан, Благоварский район, Языковский сельсовет, с. ...

Продается дом в с. Языково,на вьезде в село.До участка асфальт. Участок огорожен кирпичным забором.Дом 130 кв.м. из шлакоблока ,внутри отделан деревом.В доме гараж на два места, сдвумя воротами. В доме остается встроенная кухня,пита,духовой шкаф.диваны стулья,стол.Во дворе имеется зимняя беседка с встроенной мангальной зоной. уличный погреб-подвал.недостроенная новая баня,с хозблоком.Газ,электричество,центральная вода,выгребная яма.Рядом вся инфраструктура. Код пользователя: 189415Номер в базе: 8473631

Читать полностью

    Для того, чтобы купить 1-этажный коттедж по адресу: Языково, ул. Ильдара Хасанова, 19, позвоните по телефону +7 (917) 363-65-21. Торопитесь! Объявление №50016064168 о продаже одноэтажного коттеджа опубликовано 29 ноября 2025.

    Позвонить Написать
    12 850 000 Р168 900 $ или 144 900
    Агент
    +7 (917) 363-65-21
    Начать чат с агентом
    Похожие предложения
    Коттедж в Башкортостан, Уфимский район, Русско-Юрмашский сельсовет, д. ... - Фото 1
    Коттедж в Башкортостан, Уфимский район, Русско-Юрмашский сельсовет, д. ... - Фото 2
    1 этаж, общая площадь 106м², участок 8 соток

    Светлый просторный одноэтажный коттедж Делос площадью 106,17 м. Для семейных пар со стажем и молодых родителей с маленькими детьми.Находится в первом коттеджном посёлке в России, созданном по карте настоящего созвездия Созвездие Цефей . Застройщик...
    • 1 эт.
    • 106 м²
    • 8 сот.
    12 860 000 Р
    Агент
    +7 (987) Показать номер
    Посмотреть контакты
    Дом в Башкортостан, Уфимский район, Жуковский сельсовет, д. Мармылево ... - Фото 1
    Дом в Башкортостан, Уфимский район, Жуковский сельсовет, д. Мармылево ... - Фото 2
    2 этажа, общая площадь 148м², участок 12 соток

    Код объекта: 1757749.ШИКАРНЫЙ БОНУС - СОБСТВЕННЫЙ ЛЕС НА УЧАСТКЕ Уникальное предложение для ценителей простора и комфорта — просторный кирпичный дом в живописном Уфимском районе, в деревне Мармылево. Удобное месторасположение. Всего 20 километров...
    • 2 эт.
    • 148 м²
    • 12 сот.
    12 999 999 Р
    Агент
    +7 (986) Показать номер
    Посмотреть контакты
    Дом в Башкортостан, Уфа городской округ, с. Нагаево ул. Спутниковая, ... - Фото 1
    Дом в Башкортостан, Уфа городской округ, с. Нагаево ул. Спутниковая, ... - Фото 2
    2 этажа, общая площадь 160м², участок 7 соток

    Пpoдaм 2-х этажный дом pасположенный в Oктябрьcком p-н г. Уфы c. Hагaeвo ул. Cпутникoвaя,Этo мecто в Нагaeвo на возвышeнности, гдe нe зaтапливает, его eще нaзывaют тpeугoльник.Дoм плoщaдью 158 квaдpaтныx мeтpа paспoложен на учаcткe 6,5 сoтки.Плaнирoвка:Пepвый...
    • 2 эт.
    • 160 м²
    • 7 сот.
    12 499 000 Р
    Агент
    +7 (917) Показать номер
    Посмотреть контакты
    Дом в Башкортостан, Уфимский район, с. Чесноковка ул. Чапаева, 7 (133 ... - Фото 1
    Дом в Башкортостан, Уфимский район, с. Чесноковка ул. Чапаева, 7 (133 ... - Фото 2
    2 этажа, общая площадь 133м², участок 15 соток

    Продается уютный 2х-этажный коттедж 133,7 кв. м, участок-15 сотокМатериал стен-газоблок, облицовка-желтый кирпич.Дом полностью с современной инженерией, с качественной отделкой и со стильным интерьером. Состояние отличное - заезжай и живи На первом этаже-большая...
    • 2 эт.
    • 133 м²
    • 15 сот.
    12 499 000 Р
    Агент
    +7 (986) Показать номер
    Посмотреть контакты
    Дом в Башкортостан, Стерлитамак Патриотическая ул. (140 м) - Фото 1
    Дом в Башкортостан, Стерлитамак Патриотическая ул. (140 м) - Фото 2
    2 этажа, общая площадь 140м², участок 5 соток

    Продается отличный современный дом из бруса,обшитый снаружи качественными немецкими панелями. На первом этаже расположена просторная кухня-гостинная(кухня 12,3кв.м и гостинная 17,8кв.м), душевая и санузел.На полу ламинат и на второй этаж ведет красивая...
    • 2 эт.
    • 140 м²
    • 5 сот.
    13 100 000 Р
    Агент
    +7 (919) Показать номер
    Посмотреть контакты

    Не нашли подходящего объявления?

    Оставьте заявку, и наши риэлторы подберут купить дом в районе Языково

    (0)