3 600 000 Р 44 320 $ или 38 360

Информация о квартире

63 м2
Площадь
49 м2
Жилая
9 м2
Кухня
3
Комнаты
5
Этаж
5
Этажность

Дополнительная информация

Тип дома
кирпичный
Развернуть
Агент
+7 (950) 931-42-13
Начать чат с агентом

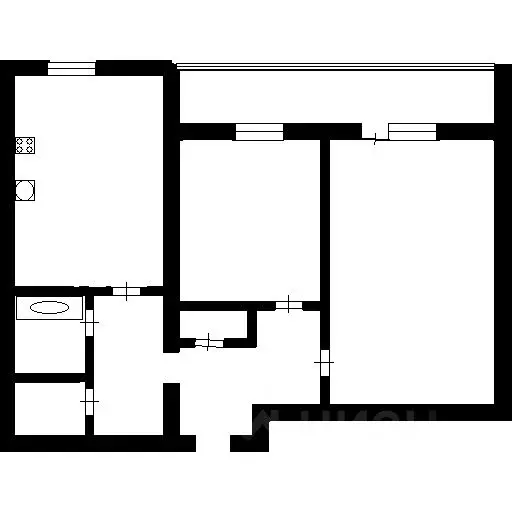
3-к кв. Башкортостан, Дюртюли Садовая ул., 11 (63.0 м)

Продаётся уютная трехкомнатная квартира во вторичном жилом доме на пятом этаже. Площадь квартиры составляет 63 квадратных метра, из которых на кухню приходится 9 квадратных метров. Этот вариант подойдет как для молодой семьи, так и для молодых людей.В настоящее время в квартире имеется стандартный ремонт. Просторная кухня позволит готовить и проводить время с комфортом, а уютная гостиная и две спальни создадут атмосферу уюта и спокойствия. В квартире очень удобное планировочное решение, что делает ее еще более привлекательной.Особое внимание стоит уделить сочетанию цены и качества данного варианта. Это отличное предложение для тех, кто хочет приобрести квартиру в городе с хорошим ремонтом и по приемлемой цене. Данная квартира является настоящей находкой для тех, кто ищет стильное и современное жилье.Также следует отметить удобное расположение дома, рядом с которым находятся школы, детские сады, магазины. Отличная транспортная доступность позволит легко добираться до любой точки города. В целом, данная квартира предлагает идеальное сочетание всех необходимых качеств для комфортного проживания.Предлагаемая квартира обладает всеми удобствами для комфортного проживания и приятного времяпрепровождения. Покупка данного варианта станет отличным инвестиционным решением, так как квартира находится в хорошем состоянии и не требует дополнительных затрат на ремонт. Реальному покупателю торг.Номер объекта: 1/538808/22099

Читать полностью

    Для того, чтобы купить трехкомнатную квартиру по адресу: Дюртюли, Садовая ул., 11, позвоните по телефону +7 (950) 931-42-13. Торопитесь! Объявление №30091107530 о продаже трехкомнатной квартиры опубликовано 2 дня назад.

    Позвонить Написать
    3 600 000 Р44 320 $ или 38 360
    Агент
    +7 (950) 931-42-13
    Начать чат с агентом
    Похожие предложения
    3-к кв. Башкортостан, Дюртюли Первомайская ул., 5 (57.8 м) - Фото 1
    3-к кв. Башкортостан, Дюртюли Первомайская ул., 5 (57.8 м) - Фото 2
    3-комнатная квартира, общая площадь 57м², жилая 47м², кухня 5м²

    Предлагаем вашему вниманию уютную и стильную квартиру вторичку на первом этаже пятиэтажного дома. Площадь квартиры составляет 57.8 квадратных метров, из которых на кухню приходится 5.2 квадратных метра.Вся мебель остается. Этот модный и презентабельный...
    • 57 м²
    • 3-ком
    • 1/5 эт.
    • кирпичный
    3 700 000 Р
    Агент
    +7 (950) Показать номер
    Посмотреть контакты
    2-к кв. Башкортостан, Дюртюли ул. Ленина, 3/1 (50.2 м) - Фото 1
    2-к кв. Башкортостан, Дюртюли ул. Ленина, 3/1 (50.2 м) - Фото 2
    2-комнатная квартира, общая площадь 50м², жилая 37м², кухня 8м²

    Продаётся прекрасная 2-х комнатная квартира на 5 этаже 5-ти этажного дома. Общая площадь квартиры составляет 50.2 кв.м. Этот вариант станет идеальным выбором для тех, кто ценит комфорт и стиль.В квартире сделан стандартный ремонт, что позволит новым владельцам...
    • 50 м²
    • 2-ком
    • 5/5 эт.
    • кирпичный
    3 700 000 Р
    Агент
    +7 (917) Показать номер
    Посмотреть контакты
    3-к кв. Башкортостан, Дюртюли Садовая ул., 23/2 (57.0 м) - Фото 1
    3-к кв. Башкортостан, Дюртюли Садовая ул., 23/2 (57.0 м) - Фото 2
    3-комнатная квартира, общая площадь 57м², жилая 43м², кухня 9м²

    Продаётся уютная трехкомнатная квартира во вторичном жилом комплексе. Квартира расположена на 1 этаже 5-этажного дома и общей площадью 57 квадратных метров. Кухня занимает 9 квадратных метров. В квартире выполнен свежий современный ремонт, который делает...
    • 57 м²
    • 3-ком
    • 1/5 эт.
    • кирпичный
    3 500 000 Р
    Агент
    +7 (917) Показать номер
    Посмотреть контакты
    2-к кв. Башкортостан, Аургазинский район, с. Толбазы ул. Ленина, 123 ... - Фото 1
    2-к кв. Башкортостан, Аургазинский район, с. Толбазы ул. Ленина, 123 ... - Фото 2
    2-комнатная квартира, общая площадь 51м², жилая 29м², кухня 16м²

    Продаётся двухкомнатная квартира в двухэтажном, восьми квартирном доме. Дом находится в центре с. Толбазы, Аургазинском районе, в 80 км от города Уфа, и 50 км. от г. Стерлитамак, в живописном месте. Рядом парк, магазины, школы, садик, аптеки, колледж,...
    • 51 м²
    • 2-ком
    • 1/2 эт.
    3 500 000 Р
    Агент
    +7 (987) Показать номер
    Посмотреть контакты
    3-к кв. Башкортостан, Аургазинский район, с. Толбазы Партизанская ул., ... - Фото 1
    3-к кв. Башкортостан, Аургазинский район, с. Толбазы Партизанская ул., ... - Фото 2
    3-комнатная квартира, общая площадь 66м², жилая 50м², кухня 8м²

    Ваша новая просторная 3-комнатная квартира ждет вас в обжитом и зеленом Аургазинском районе , с Толбазы Представьте себе жизнь, где все необходимое находится под рукой: престижный Лицей 1, детский сад для ваших малышей, центральная районная больница для...
    • 66 м²
    • 3-ком
    • 2/2 эт.
    3 500 000 Р
    Агент
    +7 (917) Показать номер
    Посмотреть контакты

    Не нашли подходящего объявления?

    Оставьте заявку, и наши риэлторы подберут квартиру в районе Дюртюлей

    (0)